Top.Mail.Ru

Вологодская область область, город Сокол

Описание проекта:

Этажность
1 этаж
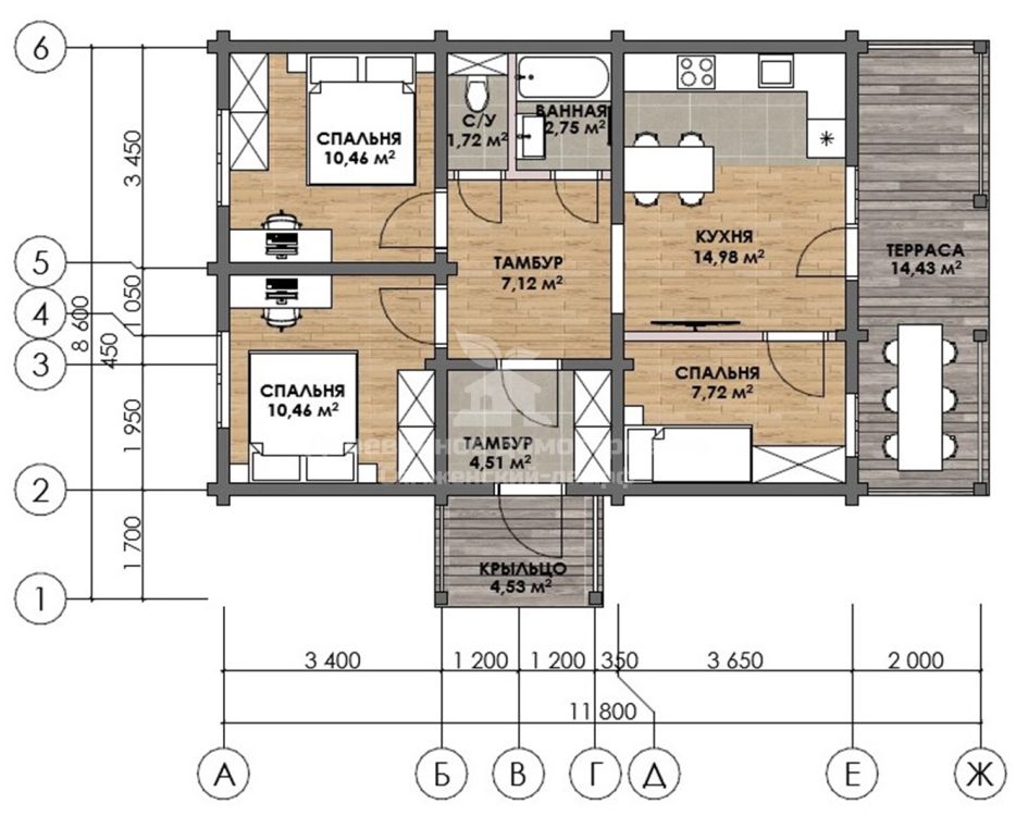
Габариты
8,6 х 11,8
Общая площадь
75.00 м2
Сроки
60 дней
Хочу такой же
Подробнее о проекте

В городе Сокол Вологодской области завершили сборку одноэтажного дома из профилированного бруса камерной сушки.
За основу взяли проект «Янтарь» из нашего каталога и доработали его под конкретную семью и их задачи.

Что изменили в проекте:
- отзеркалили планировку, чтобы дом «сел» на участок
- оптимизировали смету за счёт каркасных перегородок
- добавили третью, компактную спальню

Фундамент-плита был залит силами местных подрядчиков, но с нюансом: осевые размеры сруба перепутали с габаритами плиты. В итоге мы не спорили, а адаптировали проект под уже существующий фундамент, чтобы заказчице не пришлось переделывать дорогую часть работ.

Сборку вела опытная бригада Александра Дьякова. Дом был собран за пару недель, параллельно выполнили утепление потолков по балкам.

Мы используем только сухой пиломатериал, закрываем балки от осадков и сразу закладываем утепление:
- общая толщина — 250 мм
- обязательное перехлёстное утепление 50 мм поперёк балок
- все стыки пароизоляции проклеены скотчем Delta
- установлен люк-лестница Fakro для доступа на чердак

Также смонтировали пластиковые окна Rehau с деревянными наличниками и входную металлическую дверь (её предоставила заказчица). Для монтажа использовали надёжную зимнюю пену Soudal.

На этом этапе работы завершены. Дом сдан в комплектации «тёплый контур», дальнейшую отделку заказчики будут выполнять самостоятельно.

Если вы тоже хотите дом из бруса, который подстраивается под реальность, а не ломает её — напишите нам в сообщения или оставьте заявку. Подберём проект и доработаем его под ваш участок и бюджет.

Подробнее о проекте:
- Адрес строительства: Вологодская область область, город Сокол.
- Дата установки: 13 января 2026 года.
- Габариты: 8,6 х 11,8
- Площадь дома: 75 кв.м
- Стоимость дома в комплектации “теплый контур”, как на фото (фундамент- ж/б плита-заказчица установила самостоятельно, стены из проф.бруса толщиной 190 мм, кровля металлочерепица GrandLine, утепление потолка по балкам 250 мм, окна Рехау ГОСТ 70мм) - 4,3 млн рублей. Цена актуальна на 19.01.2026.

Работу выполнили
Бригада Александра Дьякова

Рыбин Александр, Дьяков Александр, Дьяков Иван

Специалисты работают с рубленым бревном: подготавливают материал и собирают срубы. Контролируют каждый этап строительства, чтобы получить качественный результат. Самая опытная бригада в нашем коллективе. Мастера поддерживают высокие стандарты качества срубов компании.

Хочу такой же

Оставьте заявку и получите
консультацию специалиста

Если у вас остались вопросы по проекту, Вы можете задать их
нашему инженеру по телефону 8 800 500 62 39 или оставить
заявку на обратный звонок

Отзывы клиентов

Марина Никулина
, д. Городок Новгородской области
Осенью 2015 года мы приобрели участок в Новгородской области и весной 2016 задумались о строительстве дома. Очень долго искали в интернете подходящий проект дома из бревна, пока не зашли на сайт ООО «Сямженский Лес». Проект «Ксения» вполне соответствовал нашим пожеланиям, и я отправила письмо.  Мне перезвонил Андрей и предложил съездить в д. Углово к Руслану, где уже установили сруб дома-бани по размерам близкий к нашему проекту. Мы поехали, не уточнив адреса, но сруб нашли сразу, и все сомнения по поводу выбора строителей отпали.  Через неделю, в конце мая мы встретились с Андреем и Игорем и подписали договор на изготовление и доставку сруба, потом подписали…
Алексей и Анастасия Жигулины
, Московская область, Троицкий район, д. Малыгино
Добрый день! С удовольствием делимся своими впечатлениями от работы с ООО"Сямженский Лес". Решившись на строительство дома для своей семьи, понимаешь всю важность, сложность и ответственность предстоящих работ. Пытаешься узнать как можно больше, понять для себя, что нужно, а что нет. На тщательный выбор проекта ушли месяцы, а на выбор подрядчика - полгода. Выбирали из нескольких десятков фирм по многим факторам - по ценам, по отзывам, по объектам. В итоге определили для себя несколько "финалистов" и ездили по построенным ими объектам, смотрели на качество, беседовали с хозяевами построенных домов. Когда настало время ехать на производственную площадку, первыми рванули к…
Андрей и Елена Распутины
, город Тотьма, Вологодская область
Андрей оставил для нас видео-отзыв о сотрудничестве с нами, видео вы можете посмотреть по ссылке ниже: https://youtu.be/7FxAvhD_HpE почта: a_rasputin@mail.ru  
Герман и Татьяна Акуловы
, деревня Ивашево, Ногинский район, Московская область.
Всем доброго дня. Хотели бы от всей семьи поблагодарить компанию «Сямженский лес» и лично Андрея и Игоря Белоглазовых за проделанную работу по возведению бани из оцилиндровонного бревна на нашем участке в М.О. Ногинском районе д. Ивашево. Познакомились мы с Андреем и Игорем на выставке в «Крокус Экспо» осенью 2019г. Очень оперативно была предоставлена смета на строительство бани (фундамент по проекту возведен ранее). Были предоставлены на выбор для ознакомления несколько готовых близлежащих объектов, построенных компанией «Сямженский лес». Мы съездили в г. Орехово-Зуево МО на объект, пообщались с заказчиками, получили положительные отзывы и решили о дальнейшем…
Белоусов О.
, ДПК Ольшаники, Выборгский район, Ленинградская область.
Заказывали у компании «Сямженский лес» сруб дома из бревна ручной рубки , диаметр 28-30 см. Первоначально заказ хотели отдать другому подрядчику, но в последний момент передумали и не пожалели. Работы все были выполнены в срок, даже немного с опережением, стоимость зафиксировна в договоре и не менялась, никаких доп. расходов. На протяжении строительства нам направляли фото и видео отчеты с производственной площадки. Сборка дома и монтаж металлочерепицы заняло около двух недель, после стройки все убрали. В течении всего времени были на связи и оперативно решали все вопросы. Качество на высшем уровне! На этом наше сотрудничество не закончено, впереди внутренняя отделка и…
Светлана Ш.
, деревня Княжево, Котласский район, Архангельская область
Здравствуйте. Искали компанию, которая самостоятельно заготавливает лес и производит современный строительный материал, более выгодный по цене в сравнении с клееным брусом. А также займется возведением дома. Остановились на компании ООО «Сямженский лес», так как на официальном сайте максимально подробно и доступно предоставлена вся информация о возможностях этой компании, есть реальные положительные отзывы и очень много отснято видео с построенных объектов. На основании наших эскизов компания разработала индивидуальный проект и построила дом в два этажа из профилированного бруса камерной сушки сечением 190мм х190мм. Хотим выразить огромную благодарность ВСЕМУ коллективу…
Кирилл Шибалов
, Вологодская область, Вологодский район, коттеджный посёлок Облака
Я пол года искал компанию подрядчика для строительства дома из газобетона, пообщался с различными представителями этого направления строительства и, мягко говоря, не был доволен общением. В связи с этим, решил тот же проект реализовать в профилированном брусе, тем более, что у компании "Сямженский лес" есть в готовых проектах именно то что мы хотели - "Скандинавия"!В начале декабря мы в первый раз обсудили проект с Андреем, а уже в конце согласовали проект и подписали договор (в семейную ВТБ с эскроу). Изменения в типовой проект (отказ от постирочной в пользу увеличения двух санузлов, добавление нижнего венца бруса для теплого пола и т.д.) делали бесплатно.10 января было…
Карина Саватьева
, Московская обл, г.Серпухов
Хочу рассказать о своем доме по индивидуальному проекту. Сруб я заказала заблаговременно зимой, из зимнего леса. Бревна были хорошо обработаны и правильно подобраны. Летом бригада мастеров установила дом под крышу. Очень довольна работой. Ребята молодые, энергичные, подгонять не надо. Готова предоставить информацию: c-karina@bk.ru
Марина и Сергей
, д. Дубки Владимирская обл.
Присоединяемся к положительным отзывам о компании Сямженский лес. Мы встречались с Андреем и Игорем глубокой весной, ещё снег лежал на участке. Встретились и ознакомились с подъездом к нашему участку, ребята предложили оценить их работу в Сергиево-Посадском р-не. Мы съездили и нам понравилось, там же и подписали договор. Наш проект дома Михаил был уменьшен, Андрей всегда на связи, все объяснил и предоставил проект в 3D. Нам пошли на встречу в поэтапной оплате, спасибо им за это. Бригада Александра рубили и собирали дом, мы довольны. Сроки все выполнены согласно договору, так же что для нас было немаловажно сумма по договору фиксированная. Желаем процветания и не потерять…
Татьяна Красева
, д.Садовниково Сергиево-Посадский район Московской области
Наш дом был по индивидуальном проекту. Выбирали компанию только из северных регионов. И случайно нам попался "Сямженский лес". Получили предварительно смету. Она оказалась в хорошей ценовой категории. Связались с Андреем, обсудили все детали. Через 2 дня получили проект, полную смету и 3D макет. Все понравилось. Когда поставили фундамент, приехали Андрей и Игорь. Заключили договор. Когда рубили дом, Андрей присылал фото и видео. По договору у нас бревна 28-30 см, а в итоге 28-36. Доплаты не потребовали. Спасибо большое строителям: Евгений, Василий, Михаил и крановщику. Дом поставили за 3 недели. Красавец. Очень аккуратно. Все восхищаются. Всём рекомендую обращаться в эту…
Сергей И Татьяна Болотских
, город Орехово- Зуево, Московская область
Мы хотим поблагодарить ООО "Сямженский лес" за качественную и ответственную работу по строительству нашего дома и конкретно Андрея и Игоря Белоглазовых и строительную бригаду под руководством Дениса Будрина. Искать строительную компанию мы начали с осени 2017г., не могли найти подходящий для нас проект. Случайно попался сайт "Сямженского леса". Созвонились с проектировщиком Сергеем. Он по нашим параметрам изготовил нам проект дома (бесплатно). Затем к нам на дачный участок в СНТ приехал Андрей и на месте мы оговорили разные технические моменты, т.к. участок в старом СНТ (более 50 лет), на месте стоит старый щитовой домик, который нам предстояло сначала снести и на это же…
Александр Иванов
, посёлок 62-й км, город Хотьково Московской области.
Всем доброго дня! Наконец-то настал этот день,когда мы всей семьей можем испытывать огромную радость,глядя на результат работы компании "Сямженский лес". Дом,который построила бригада Александра Дьякова получился лучше,чем мечтали,а бригада Евгения Муравьева дополнила результат кровельными работами. Так же хотим поблагодарить Дмитрия Ивановича, Андрея и Игоря Белоглазовых ,Сергея Поскотинова и весь коллектив компании "Сямженский лес"-профессионалов своего дела от момента общения до момента дома на участке.
Татьяна Смирнова
, Коттеджный поселок Сосновый берег, Вологодский район, Вологодская область.
Заказывали с мужем в 2018 году в "Сямженском лесе" дом из профилированного бруса камерной сушки. Качеством материала, доставкой и сборкой остались довольны. Отделку выполнили своими силами, в доме живем вторую зиму- полет нормальный) На 2022 год уже заказали баню, в этом году доделаем фундамент и вновь ждем Сямженский лес в гости. Отзыв с карточки организации в яндекс: https://yandex.ru/profile/1613250437  
Иван Г.
, садовое товарищество Темп, Кольский район, Мурманская область.
Добрый вечер! Хочу поблагодарить компанию Сямженский лес за великолепно выполненную работу при проектировании и строительстве моей бани! Ответственный подход менеджера Михаила позволил в короткий срок разработать и согласовать проект, а слаженная работа бригады Александра Дьякова оставила исключительно положительные эмоции от изготовления, монтажа и результата строительства сруба в целом! Уверен, что вся команда профессионалов трудящихся в компании Сямженский лес - это результат огромного труда семейного дела, а желание делать свои проекты качественно, в срок и на долгие годы, всегда положительно оценивается довольными клиентами! Желаю Вам процветания, развития и успехов…
Константин
Испытал только положительные эмоции от проектирования и строительства бани в компании "Сямженский лес". Баню построили в июне 2025 года.ПроектированиеУчли все мои пожелания, предложили оптимальные варианты реализации, ответили и проконсультировали по всем вопросам, которые возникали в процессе проектирования.СтроительствоВ назначенный день приехала бригада отличных мастеров. На следующий день без моего участия бригада грамотно организовала и осуществила приемку комплекта бруса для бани и кровли для крыши. В установленные сроки мастера собрали баню и сделали монтаж кровли. Даже удивился, насколько спокойно и беспроблемно прошло строительствоСпасибо за отличную работу!…
Михаил Сергеев
, Московская обл, г.Серпухов
В декабре купили вторую машину в семью. Стали сразу же задумываться над строительством гаража на 2 машины. Так как дом у нас из рубленного бревна, то и гараж решили сделать из бревна. Позвонили в "Сямженский лес", в этот же день получили наглядный проект гаража и его стоимость. Когда ехал с Архангельска, с командировки, заскочил в Сямжу. Утвердили проект, заключили договор. Сруб привезли в срок, качеством рубки доволен, замечаний нет! Готов подтвердить информацию тел.8-953-512-17-00
Анатолий и Марина К.
, д.Кольцеево Вологодской области
Добрый день, уважаемые читатели!  Хотелось бы отметить слаженную и качественную работу компании Сямженский Лес. Все этапы работы от выбора проекта, до монтажа сруба проводились в установленные сроки. На наши предложения и вопросы мы оперативно получали ответы и разъяснения от Андрея и Александра. Мы остались довольны первым этапом работ, будем продолжать сотрудничать в 2017 году. Если Вы думаете с кем нужно строить, то строить нужно с Сямженским Лесом. anatoliy.korykin@gmail.com 
Софья Анатольевна Дашкова
, г.Дмитров Московская область
ОГРОМНОЕ СПАСИБО И НИЗКИЙ ПОКЛОН КОМПАНИИ СЯМЖЕНСКИЙ ЛЕС.Ни одного дня мы не пожалели,что именно с этой компанией мы заключили договор и нам построили замечательный дом.Очень благодарны Андрею и Игорю за их терпение,так как мы в самом начале долго выбирали проект и думали из чего строить дом.В дальнейшем тоже было очень много глупых вопросов и сомнений.Спасибо Вам за терпение!!! В сентябре нам доставили очень высокого качества брус и построили замечательный дом.Бригада нам досталась самая лучшая!!!как мы и просили.Артем бригадир,Юрий и Сергей.Они настоящие профессионалы своего дела.Работают слаженно,качественно,все делают на совесть.На каждый наш вопрос ответят,учтут все…
Дмитрий и Марина Сазоновы
, деревня Тамбицы, Республика Карелия
Весной 2015 года мы с супругом задумались о строительстве дома в Карелии. Начали подбирать компанию, проект, думать, какой он должен быть по объему. Летом того же года нашли в интернете информацию про "Сямженский лес". Созвонились с Андреем Белоглазовым, получили приглашение посетить их производство, что и сделали. Посмотрели как организована работа, обсудили разные варианты как проекта, так и порядка производства работ. Осенью 2017 созрели и начали работать над конкретным проектом. С нами работал Андрей и Екатерина. В итоге, после целого ряда согласований, мнений, обсуждений, мы получили, на наш взгляд, идеальный проект. При этом он был привязан к уже существующему…
Марченков Дмитрий
, Дом, Московская область, Мытищинский район, деревня Пруссы
Выражаем сердечную благодарность компании "Сямженский лес" за сруб, который они построили нам в посёлке Пруссы, Мытищинского района, Московской области. Отмечаем хорошо поставленную организацию работ, высокое качество и дисциплина труда. Особая благодарность Белоглазову Андрею Дмитриевичу, звену из трёх плотников: Будрин Денис, Мальгин Александр, Елисеев Денис. Спасибо техническому отделу компании за помощь в разработке проекта. Будем рады видеть вас на отделки сруба. Удачи.                               Марченков Дмитрий.…
Александр П.
, Коттеджный поселок Облака, Вологодская область.
Добрый день. Хочу отметить хорошую работу компании Сямженский лес. Заказывал дом из профилированного бруса камерной сушки. Организация работы отличная. Привезли домокомплект даже раньше оговоренного времени. Сборка производилась в зимний период в хорошие морозы. Не смотря на это сруб и крышу собрали довольно быстро. Отзыв с карточки организации в яндекс: https://yandex.ru/profile/1613250437
Наталья Ш.
, село Ершово, Одинцовский городской округ, Московская область.
Компания "Сямженский лес" построила для моей семьи дом "Скандинавия". Ребята скорректировали проект под наши пожелания, договорились и заключили договор в мае 2024, а 1 сентября 2024 года у меня уже был построен дом (все сроки были выдержаны прямо день-в-день). Дом из профилированного бруса камерной сушки, Одинцовский район Московской области. Мы выбрали "Сямженский лес" по следующим принципиальным для меня причинам: 1) собственное производство бруса 2) собственный проектировщик/инженер, разработавшие сами проект дома 3) уже имеющиеся построенные дома по этому проекту 4) сам проект дома - это на 100% именно то что я искала: расположение комнат, входной группы, выхода в…
Анна Попова
Строительство дома с компанией Сямженский лес прошло на высоком уровне на всех этапах.Очень понравилась оперативная работа при проектировании, постоянная взаимосвязь, вариации вариантов и готовность вносить изменения. Проект был индивидуальный, учли все потребности и пожелания 👍Далее при подготовке документации менеджер компании всегда координировал шаги, отвечал на вопросы по взаимодействию с банком. Работа с эскроу счетом прошла очень легко. У нас уже был неудачный опыт, когда представители другой строительной компании не могли подготовить необходимые для банка документы, и на этом всё закончилось. Здесь же, наоборот, всё было очень четко и максимально прозрачно. Самый…
Александр
, Московская обл. г.Чехов
Домом в целом доволен. Качественная рубка, бревна толстые, щелей нет. Рекомендую! Готов подтвердить информацию +7-915-277-42-51
Андрей и Валентина Сторожевы
, г.Троицк Московская обл.
Всем, привет!  Вот и мы стали обладателями прекрасного дома из бревна, построенного компанией Сямженский Лес. Выбирать тщательно строительную компанию мы начали в начале 2016г, пока случайно не увидели возведение бани у соседа по дачи. Познакомились с руководителем компании Андреем и бригадой сборщиков. Качество бревна, рубки и выполнения работ нам очень понравилось и у нас не осталось сомнений, что ВОТ ОНА - Строительная Компания, у которой мы закажем Наш Дом!!! В феврале мы встретились с Андреем и Игорем(главные Боссы компании - братья), выбрали проект и подписали договор. Ребята нам рассказали обо всех нюансах и проблемах, с которыми мы можем столкнуться,…
Юлия Модычева
, д. Семеновское, Можайский район , Московская область
24 июля 2017 года обратились в фирму «Сямженский Лес»с проектом о постройке дома. На следующий день получили ответ с проектом , сметой и договором. Списались о встрече и в начале августа они уже были у нас на участке. Заключили договор на возведении фундамента и постройке дома. Место положения нашего участка осложнено для подъезда тяжелой техники, но ребята справились со всеми трудностями, особенно с тяжелым грунтом . Приносим благодарность за это бригаде Артема, которые и вырыли и залили фундамент . Сруб срубили в сроки, оговоренные договором, привезли к нам на участок 8 октября 2017 года. Опять возникли трудности с выгрузкой сруба, в связи с непрекращающимися дождями,…
Александр Прокопенко
, деревня Хреновая, Смоленская область
В 2017 году мы с женой решили построить баню на нашем участке в Смоленской области. Как оказалось дело это совсем не простое. Мало иметь желание и необходимую сумму денег, надо еще определиться с проектом и самое главное с теми кто это воплотит в жизнь.  Мы начитались много всего интересного в интернете про проекты, про материалы и конечно же про строительные организации. Жена нашла компанию Сямженский лес и показала мне в интернете их сайт. Первое впечатление было очень положительным. Понятный и структуированный сайт с реальными отзывами людей, которые воспользовались услугами этой компании. Двоим клиентом Сямженского леса мы звонили и даже к одному из них мы…
Чистякова Елена
, Вологодская обл., Устюженский р-он, д.Глины
Добрый день! Извиняемся, что запоздали с отзывом, но считаем необходимым написать о своих положительных  впечатлениях о сотрудничестве с ООО «Сямженский лес».  Выражаем огромную  благодарность компании за выполненную работу по строительству нашего дома из рубленного бревна! Хочется отметить добросовестность, профессионализм, качество и сроки исполнения работ. Купив участок на берегу реки, мы сразу решились на строительство дома для своей семьи. Начитавшись положительных отзывов о ООО «Сямженский лес», написали письмо о просьбе посчитать стоимость проекта, который нашли в интернете. Нам очень быстро ответили, и совершенно бесплатно был составлен проект с…
Александр М.
, деревня Охотино, Сергиево-Посадский район, Московская область.
Всем добрый день! Ещё в 2020 году обратился в компанию Сямженский лес для строительства дома из рубленного бревна. Готового проекта не было, но было несколько картинок из интернета с понравившимися планировками. По этим картинкам специалистами Сямженского леса был не только отрисован полностью проект, но и была сделана его видео визуализация. За все это отдельное спасибо Сергею. За его терпение, скрупулёзный подход и неравнодушное отношение к клиенту! В 2021 году ребята приступили к изготовлению сруба на своей площадке. Возможности подъехать на производство у меня не было, но ребята присылали подробнейшие видео отчеты. За это тоже отдельное спасибо. А уже в апреле ребята…
Елена В.
, коттеджный посёлок Боково, Богородский городской округ, Московская область.
Выражаем с мужем огромную благодарность команде Компании «Сямженский лес» за проделанную работу по строительству нашего дома. Мы с супругом искали того самого своего подрядчика на протяжение 2 месяцев. Сделали свой выбор в пользу Вас и не ошиблись! Грамотные с точки зрения практики разъяснения каждого этапа, детальная разработка самого проекта и ответственный подход к работе. Да еще у ребят свое производство-деревообрабатывающее предприятие. То есть, все этапы находятся под строгим контролем, что очень подкупает и располагает. Все это в совокупности и привело к тому результату, который мы ждали! Успехов Вам в Вашей деятельности! С удовольствием будем рекомендовать всем…

Статьи по этой теме

Проекты домов из профилированного бруса под ключ

Строительство домов из сухого профилированного бруса начинается с проектирования. И для того чтобы проект полностью устраивал вас не только на бумаге, но и в реализации, следует учесть множество нюансов. В этой статье вас ждут рекомендации опытных строителей, которые помогут избежать типовых ошибок при проектировании.

Как построить красивый брусовый дом с утеплением недорого?

Для того чтобы ответить на этот вопрос, нужно в первую очередь определиться с бюджетом строительства. Не стоит слишком занижать планку, иначе вы рискуете получить непрактичную постройку из плохих по качеству материалов. В то время как современный деревянный дом, сделанный с душой профессионалами своего дела, станет вашим местом силы. Именно такие дома строят по всей России мастера компании «Сямженский лес».

Домокомплекты из бруса от производителя: этапы производства

Построить надежный, крепкий и долговечный дом можно только из качественного материала. Компания «Сямженский лес» заготавливает древесину зимой – рубка деревьев проходит с декабря по март. Такой период выбран неслучайно. В зимние месяцы под воздействием низких температур останавливается сокодвижение, а значит, брус высохнет равномерно и быстро.