Top.Mail.Ru

Московская область, Наро-Фоминский район, д. Алабино.

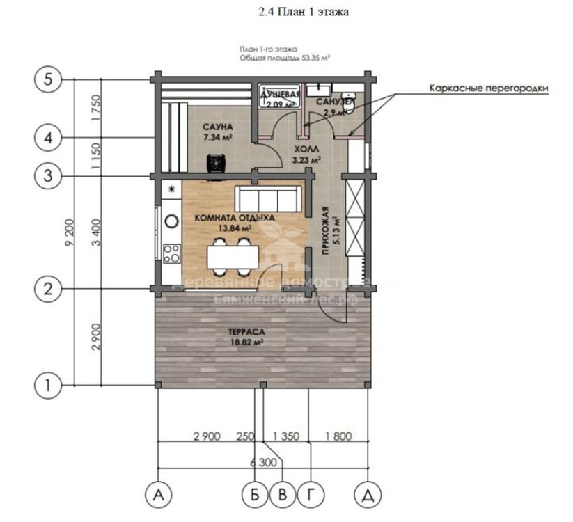
Описание проекта:

Этажность
1 этаж
Габариты
6х9
Общая площадь
53.00 м2
Сроки
60 дней
Хочу такой же
Подробнее о проекте

Строительный год 2026 для нас начался с проверки на прочность.

Не большим домом и не сложным объектом — а небольшой баней 6х9 из профилированного бруса в Московской области.

На первый взгляд всё просто:
лаконичная форма, невысокие стены, минимальная комплектация.

Но именно такие объекты лучше всего показывают, как компания работает на самом деле, без скидок на масштаб.

Заказчица Екатерина из Москвы выбирала подрядчика вдумчиво и долго. Всё лето — поездки по производствам, выезды на строящиеся объекты, осмотры в сопровождении технадзора. Не на словах, а по факту: качество бруса, сборки, отношение к деталям.

Решающим стал выезд прошлым летом на объект в Ногинском районе, где работала бригада Евгения Муравьёва.

Посмотрели дом вживую, задали вопросы, проверили узлы — и выбор был сделан. Строиться — с нами и именно с этой бригадой.
Для стен выбрали максимальное сечение профилированного бруса — 190х190 мм.

Домокомплект доставили и выгрузили ещё до праздников.
А с 12 января началась сборка. Хотя, если честно, сначала была не сборка, а подготовка участка:
— два дня расчистки снега (в Подмосковье его оказалось больше, чем в Вологде);
— ручной перенос целой фуры материалов к фундаменту — подъездов для тяжёлой техники нет;
— аккуратная подрезка веток рядом стоящих сосен, каждый спил — только после согласования с технадзором. Задача — сохранить деревья и при этом получить пространство для работы.

Когда участок был готов, процесс пошёл быстрее.
Но добавилась ещё одна особенность — технадзор заказчика решил внести изменения в проект уже после изготовления и доставки домокомплекта.

Мы спокойно к этому отнеслись.
С технадзорами мы работаем давно: строим по проекту, по нормативам, все узлы согласовываем заранее. В этом случае потребовались дополнительные согласования и переработка проекта — меняли высоты проёмов, расположение и узлы крепления балок.

Это заняло время, но для нас важнее результат, чем скорость «любой ценой».
Итог:
— заказчица Екатерина довольна,
— технадзор доволен,
— мы — тоже.

За три недели бригада Евгения Муравьёва полностью справилась с объектом.

А отдельное эстетическое удовольствие — крыша с металлическим кликфальцем глубокого зелёного цвета. На фоне высоких сосен она смотрится так, будто была здесь всегда.
Иногда именно небольшие проекты лучше всего показывают, как мы строим и зачем нам это качество.

Подробнее о проекте:
- Адрес строительства: Московская область, Наро-Фоминский район, д. Алабино.
- Дата установки: 09 февраля 2026.
- Габариты: 6х9
- Площадь: 53 кв.м
- Стоимость бани в комплектации, как на фото (фундамент-ж/б плита-заказчик залил самостоятельно, стены из проф.бруса толщиной 190мм, кровля кликфальц GrandLine, обсадные коробки для окон и дверей) - 2,4 млн рублей. Цена актуальна на 09.02.2025.

Хочу такой же

Оставьте заявку и получите
консультацию специалиста

Если у вас остались вопросы по проекту, Вы можете задать их
нашему инженеру по телефону 8 800 500 62 39 или оставить
заявку на обратный звонок

Отзывы клиентов

Ирина Смирнова
, д.Ченцы Переславский р-н Ярославской обл.
Хочется сказать большое спасибо всему коллективу " Сямженский лес" за отлично выполненную работу по проектированию, рубке, сборке и монтажу крыши. Все работы были выполнены качественно и точно в срок. Мы будем продолжать дальнейшее сотрудничество по отделке бани и строительству дома. 8-965-267-31-18
Надежда Юрьевна В.
, г.Подольск СНТ Ветеран-2
Приемлемая цена. Смету не завышали. Все работы обговаривают предварительно. Очень высокое качество рубленного дерева и самой сборки.Мастера профессионалы - работают аккуратно, быстро и без лишнего шума и пыли. Ни одного нарекания со стороны соседей. Работой довольны. gorayon13@yandex.ru  8-926-780-48-86  
Андреев Сергей
, Поселок Важский Архангельская область
Выражаем огромную благодарность бригаде строителей под руководством Фатиева Николая (Александр, Игорь и Иван), которые в десятидневный срок возвели дом из профилированного бруса в поселке Важский Архангельской области. Бригада трудилась от рассвета до заката, благо погода способствовала этому. Очень профессиональные и дисциплинированные ребята. Отдельная благодарность руководству компании за взаимопонимание и моментальное решение всех возникающих вопросов. Надеемся в дальнейшем на сотрудничество и будем рекомендовать вас друзьям и знакомым. СПАСИБО! тел. +7 911 309 4244 почта: brodyga@mail.ru
Сергей Танайлов
, Московская область, поселение Клёновское, СНТ Гавриково.
Всем доброго суток! Хочу выразить благодарность коллективу компании Сямженский лес, за проделанную работу по установке домокомплекта из профилированного бруса 190х140 камерной сушки, по доработанному проекту "Любовь" на территории СНТ "Гавриково", г. Москва. Отдельно хочется выразить благодарность: Андрею Белоглазову за понимание и личное участие в процессе строительства; Сергею Поскотинову, за терпение на этапе проектирования; И огромная благодарность бригаде Артема Бешаля, которая своевременно и без контроля, со стороны заказчика, выполнила работы по монтажу домокомплекта. Порадовало человеческое, и в тоже время деловое отношение руководства и работников компании.…
Александр Р.
, деревня Новое Село, Тихвинский район, Ленинградская область.
Всем добрый день! Хотим отметить очень хорошую работу компании ООО "Сямженский Лес". Мы обратились в эту компанию для постройки нам дачного дома из рубленого бревна в д. Новое Село Тихвинского р-на в Лен области, и считаем что мы сделали правильный выбор. Наш заказ был выполнен компанией в согласованные сроки, оперативно и на высоком уровне. В процессе работы было видно что компания настроена на качественную работу. При выборе компании нас заинтересовало то, что данная компания на рынке по строительству домов работает давно, а значит имеет в строительстве накопленный опыт и то, что компания выполняет весь комплекс работ по строительству дома (изготовление и сборка сруба…
Александр Е.
, посёлок Васильевское, Вологодский район, Вологодская область.
Очень качественная работа . Сделано хорошо красиво , очень понравилось. Бригада выполнили всё аккуратно, весь мусор обрезки убрали. Сделали всё отлично и в срок, рекомендую компанию очень понравилось 👍. Отзыв с карточки организации в Яндекс: https://yandex.ru/profile/1613250437
Татьяна Кулакова
, Калужская область, г. Сухиничи
Мечты сбываются!!!Мы с мужем в течение 7 месяцев обращались в разные строительные компании. Просматривая в интернете проекты, звонили, консультировались. Муж при поиске зашёл на страницу Сямженского леса. Дом Скандинавия, то что нам было нужно. В течение еще 6-ти месяцев мы, просматривая разные проекты, возвращались к Сямженскому лесу. В итоге съездили в Вологду. Заключили договор. И это здорово!!! Потому что их подход, организация и в итоге за 2 неделе построенный дом, превзошли все ожидания. Наш участок почти за 1000 км. Калужская область.Спасибо профессионалам Сямженского леса!   Отзыв с карточки организации на Яндекс https://yandex.ru/sprav/1613250437/p/edit/…
Алексей Гусев
, Череповец
Большое спасибо коллективу ООО "Сямженский лес" . На первом этапе с Андреем Белоглазовым качественно доработали проект бани с террасой и пристройкой в 1,5 этажа с учетом наших пожеланий . Затем опытная бригада во главе с Александром воплотила его в жизнь ( размер 6,5м*12,5м. ) Все работы выполнили в срок , материалы качественные , работа кипела , профессионализм налицо , конечный результат оправдал все ожидания ! Готов подтвердить информацию 8-921-252-08-20, gusev.cher@mail.ru
Мария и Алексей К.
, СНТ Зареченские Просторы Можайский р-н Московской области
Добрый день дорогие друзья! Позвольте и нам поделиться с вами переполняющей нас радостью! 26 июля 2017 года мы стали счастливыми обладателями двух этажного дома-бани. ОГРОМНОЕ СПАСИБО и НИЗКИЙ ПОКЛОН Андрею и Игорю, за их работу, за то как они ведут дела и за то, что вернули веру в людей. А теперь, если можно я подробнее расскажу о нашем сотрудничестве. После того, как мы стали жертвой мошенников, враги нам стали мерещиться на каждом углу. Поэтому мы заняли позицию доверяй, но проверяй. Перелопатив просторы интернета, мы остановились на компании «Сямженский лес» потому что, никакой отрицательной информации про эту компанию мы не нашли ВООБЩЕ. Все отзывы реальных клиентов…
Феоктистов Вячеслав Алексеевич
, деревня Жилино Московская область
Всем доброго дня! Хочу кратко поделиться впечатлениями о сотрудничестве с компанией «Сямженский лес» и о строительстве собственного дома. Очень долго выбирал строительную компанию, ездил по северным регионам России, в том числе и по Вологодской области, но как только в интернете изучил информацию о компании «Сямженский лес», решил остановиться на ней. Мошенников в наше время очень много: предлагают одно, а по факту совсем получаешь другое, особенно от производителей Московской области. Но после моего посещения офиса компании, после общения с Андреем Белоглазовым и в особенности после информационной экскурсии с Игорем Белоглазовым по производству , у меня отпали всякие…
Василий Г.
Хочу строить летом 2020 утепленную кухню. Естественно отправляю запрос и свой проект на пересчет во все компании. Кто-то отрабатывает для галочки, абы-бы как, кто-то просит деньги за проект.... НО "Сямженский лес" меня потряс качеством проработки бесплатного проекта , скоростью отклика - ЭТО СУПЕР!!! Еще отправляют ссылку на ютуб с визуализацией твоего эскизного проекта. Не знаю про качество в дереве, но в проектировании - Ребята, Вы реально ЛУЧШИЕ! Екатерине (инженеру проектировщику) - респект! Так держать!
Юрий Тонковский
, коттеджный поселок Родионцево, Вологодский район, Вологодская область.
Выражаю благодарность коллективу компании ООО "Сямженский лес" за профессионализм, порядочность, любовь к своему делу и уважительное отношение к заказчику!Решение о строительстве дома приняли не сразу, так как это хлопотно и затратно, но желание иметь свой дом и участок было огромное!С супругой начали подбирать фирму, которой смогли бы доверить строительство. Читали отзывы, ездили в офисы разных компаний, сравнивали цены на услуги. Думали долго..., Осенью 2020 года выбрали компанию "Сямженский лес", нам бесплатно сделали проект дома, подготовили смету, которая была прозрачна!В начале декабря подписали договор, а 9.04.21 сруб дома был готов к приемке.Все очень понравилось…
Елена Щ.
, деревня Скотное, Всеволожский район, Ленинградская область.
Хотелось бы поставить отметку «Отлично» за работу всего коллектива компании «Сямженский лес». Я долго искала, кто бы нам мог построить деревянный дом в Ленинградской области, обзванивала фирмы. Звонила по Санкт-Петербургу, Ленинградской области, Карелии, Вологодской области. И как только я поговорила пять минут с Михаилом проектировщиком, я поняла, что только этой фирме я могу доверить строительство дома. Михаил-проектировщик профессионал своего дела, знает досконально все тонкости строительства. Проект получился отличный, с учетом наших личных особенностей и пожеланий. Заключили договор, все обязательства по договору выполнены в срок. Видно, что руководители дорожат…
Ирина и Геннадий
, Республика Карелия, Прионежский район, СНТ Урозеро
Ирина и Геннадий — наши заказчики, для которых мы построили дом по проекту «Северное сияние».   История интересная: Ирина и Геннадий живут на Чукотке, а дом мы строили для них в Карелии, куда они планируют переезжать на постоянное место жительства. В этом видео - честное мнением о работе с нашей командой. Смотрите отзыв из первых уст — когда доверие заказчиков оправдывается результатом! Они полностью доверились нам на всех этапах строительства — и вот итог: положительный отзыв и благодарность за проделанную работу. Мы, в свою очередь, и дальше будем помогать и консультировать Ирину и Геннадия на каждом этапе завершения строительства дома.
Марина Никулина
, д. Городок Новгородской области
Осенью 2015 года мы приобрели участок в Новгородской области и весной 2016 задумались о строительстве дома. Очень долго искали в интернете подходящий проект дома из бревна, пока не зашли на сайт ООО «Сямженский Лес». Проект «Ксения» вполне соответствовал нашим пожеланиям, и я отправила письмо.  Мне перезвонил Андрей и предложил съездить в д. Углово к Руслану, где уже установили сруб дома-бани по размерам близкий к нашему проекту. Мы поехали, не уточнив адреса, но сруб нашли сразу, и все сомнения по поводу выбора строителей отпали.  Через неделю, в конце мая мы встретились с Андреем и Игорем и подписали договор на изготовление и доставку сруба, потом подписали…
Алексей и Анастасия Жигулины
, Московская область, Троицкий район, д. Малыгино
Добрый день! С удовольствием делимся своими впечатлениями от работы с ООО"Сямженский Лес". Решившись на строительство дома для своей семьи, понимаешь всю важность, сложность и ответственность предстоящих работ. Пытаешься узнать как можно больше, понять для себя, что нужно, а что нет. На тщательный выбор проекта ушли месяцы, а на выбор подрядчика - полгода. Выбирали из нескольких десятков фирм по многим факторам - по ценам, по отзывам, по объектам. В итоге определили для себя несколько "финалистов" и ездили по построенным ими объектам, смотрели на качество, беседовали с хозяевами построенных домов. Когда настало время ехать на производственную площадку, первыми рванули к…
Андрей и Елена Распутины
, город Тотьма, Вологодская область
Андрей оставил для нас видео-отзыв о сотрудничестве с нами, видео вы можете посмотреть по ссылке ниже: https://youtu.be/7FxAvhD_HpE почта: a_rasputin@mail.ru  
Герман и Татьяна Акуловы
, деревня Ивашево, Ногинский район, Московская область.
Всем доброго дня. Хотели бы от всей семьи поблагодарить компанию «Сямженский лес» и лично Андрея и Игоря Белоглазовых за проделанную работу по возведению бани из оцилиндровонного бревна на нашем участке в М.О. Ногинском районе д. Ивашево. Познакомились мы с Андреем и Игорем на выставке в «Крокус Экспо» осенью 2019г. Очень оперативно была предоставлена смета на строительство бани (фундамент по проекту возведен ранее). Были предоставлены на выбор для ознакомления несколько готовых близлежащих объектов, построенных компанией «Сямженский лес». Мы съездили в г. Орехово-Зуево МО на объект, пообщались с заказчиками, получили положительные отзывы и решили о дальнейшем…
Белоусов О.
, ДПК Ольшаники, Выборгский район, Ленинградская область.
Заказывали у компании «Сямженский лес» сруб дома из бревна ручной рубки , диаметр 28-30 см. Первоначально заказ хотели отдать другому подрядчику, но в последний момент передумали и не пожалели. Работы все были выполнены в срок, даже немного с опережением, стоимость зафиксировна в договоре и не менялась, никаких доп. расходов. На протяжении строительства нам направляли фото и видео отчеты с производственной площадки. Сборка дома и монтаж металлочерепицы заняло около двух недель, после стройки все убрали. В течении всего времени были на связи и оперативно решали все вопросы. Качество на высшем уровне! На этом наше сотрудничество не закончено, впереди внутренняя отделка и…
Светлана Ш.
, деревня Княжево, Котласский район, Архангельская область
Здравствуйте. Искали компанию, которая самостоятельно заготавливает лес и производит современный строительный материал, более выгодный по цене в сравнении с клееным брусом. А также займется возведением дома. Остановились на компании ООО «Сямженский лес», так как на официальном сайте максимально подробно и доступно предоставлена вся информация о возможностях этой компании, есть реальные положительные отзывы и очень много отснято видео с построенных объектов. На основании наших эскизов компания разработала индивидуальный проект и построила дом в два этажа из профилированного бруса камерной сушки сечением 190мм х190мм. Хотим выразить огромную благодарность ВСЕМУ коллективу…
Кирилл Шибалов
, Вологодская область, Вологодский район, коттеджный посёлок Облака
Я пол года искал компанию подрядчика для строительства дома из газобетона, пообщался с различными представителями этого направления строительства и, мягко говоря, не был доволен общением. В связи с этим, решил тот же проект реализовать в профилированном брусе, тем более, что у компании "Сямженский лес" есть в готовых проектах именно то что мы хотели - "Скандинавия"!В начале декабря мы в первый раз обсудили проект с Андреем, а уже в конце согласовали проект и подписали договор (в семейную ВТБ с эскроу). Изменения в типовой проект (отказ от постирочной в пользу увеличения двух санузлов, добавление нижнего венца бруса для теплого пола и т.д.) делали бесплатно.10 января было…
Карина Саватьева
, Московская обл, г.Серпухов
Хочу рассказать о своем доме по индивидуальному проекту. Сруб я заказала заблаговременно зимой, из зимнего леса. Бревна были хорошо обработаны и правильно подобраны. Летом бригада мастеров установила дом под крышу. Очень довольна работой. Ребята молодые, энергичные, подгонять не надо. Готова предоставить информацию: c-karina@bk.ru
Марина и Сергей
, д. Дубки Владимирская обл.
Присоединяемся к положительным отзывам о компании Сямженский лес. Мы встречались с Андреем и Игорем глубокой весной, ещё снег лежал на участке. Встретились и ознакомились с подъездом к нашему участку, ребята предложили оценить их работу в Сергиево-Посадском р-не. Мы съездили и нам понравилось, там же и подписали договор. Наш проект дома Михаил был уменьшен, Андрей всегда на связи, все объяснил и предоставил проект в 3D. Нам пошли на встречу в поэтапной оплате, спасибо им за это. Бригада Александра рубили и собирали дом, мы довольны. Сроки все выполнены согласно договору, так же что для нас было немаловажно сумма по договору фиксированная. Желаем процветания и не потерять…
Татьяна Красева
, д.Садовниково Сергиево-Посадский район Московской области
Наш дом был по индивидуальном проекту. Выбирали компанию только из северных регионов. И случайно нам попался "Сямженский лес". Получили предварительно смету. Она оказалась в хорошей ценовой категории. Связались с Андреем, обсудили все детали. Через 2 дня получили проект, полную смету и 3D макет. Все понравилось. Когда поставили фундамент, приехали Андрей и Игорь. Заключили договор. Когда рубили дом, Андрей присылал фото и видео. По договору у нас бревна 28-30 см, а в итоге 28-36. Доплаты не потребовали. Спасибо большое строителям: Евгений, Василий, Михаил и крановщику. Дом поставили за 3 недели. Красавец. Очень аккуратно. Все восхищаются. Всём рекомендую обращаться в эту…
Сергей И Татьяна Болотских
, город Орехово- Зуево, Московская область
Мы хотим поблагодарить ООО "Сямженский лес" за качественную и ответственную работу по строительству нашего дома и конкретно Андрея и Игоря Белоглазовых и строительную бригаду под руководством Дениса Будрина. Искать строительную компанию мы начали с осени 2017г., не могли найти подходящий для нас проект. Случайно попался сайт "Сямженского леса". Созвонились с проектировщиком Сергеем. Он по нашим параметрам изготовил нам проект дома (бесплатно). Затем к нам на дачный участок в СНТ приехал Андрей и на месте мы оговорили разные технические моменты, т.к. участок в старом СНТ (более 50 лет), на месте стоит старый щитовой домик, который нам предстояло сначала снести и на это же…
Александр Иванов
, посёлок 62-й км, город Хотьково Московской области.
Всем доброго дня! Наконец-то настал этот день,когда мы всей семьей можем испытывать огромную радость,глядя на результат работы компании "Сямженский лес". Дом,который построила бригада Александра Дьякова получился лучше,чем мечтали,а бригада Евгения Муравьева дополнила результат кровельными работами. Так же хотим поблагодарить Дмитрия Ивановича, Андрея и Игоря Белоглазовых ,Сергея Поскотинова и весь коллектив компании "Сямженский лес"-профессионалов своего дела от момента общения до момента дома на участке.
Татьяна Смирнова
, Коттеджный поселок Сосновый берег, Вологодский район, Вологодская область.
Заказывали с мужем в 2018 году в "Сямженском лесе" дом из профилированного бруса камерной сушки. Качеством материала, доставкой и сборкой остались довольны. Отделку выполнили своими силами, в доме живем вторую зиму- полет нормальный) На 2022 год уже заказали баню, в этом году доделаем фундамент и вновь ждем Сямженский лес в гости. Отзыв с карточки организации в яндекс: https://yandex.ru/profile/1613250437  
Иван Г.
, садовое товарищество Темп, Кольский район, Мурманская область.
Добрый вечер! Хочу поблагодарить компанию Сямженский лес за великолепно выполненную работу при проектировании и строительстве моей бани! Ответственный подход менеджера Михаила позволил в короткий срок разработать и согласовать проект, а слаженная работа бригады Александра Дьякова оставила исключительно положительные эмоции от изготовления, монтажа и результата строительства сруба в целом! Уверен, что вся команда профессионалов трудящихся в компании Сямженский лес - это результат огромного труда семейного дела, а желание делать свои проекты качественно, в срок и на долгие годы, всегда положительно оценивается довольными клиентами! Желаю Вам процветания, развития и успехов…
Константин
Испытал только положительные эмоции от проектирования и строительства бани в компании "Сямженский лес". Баню построили в июне 2025 года.ПроектированиеУчли все мои пожелания, предложили оптимальные варианты реализации, ответили и проконсультировали по всем вопросам, которые возникали в процессе проектирования.СтроительствоВ назначенный день приехала бригада отличных мастеров. На следующий день без моего участия бригада грамотно организовала и осуществила приемку комплекта бруса для бани и кровли для крыши. В установленные сроки мастера собрали баню и сделали монтаж кровли. Даже удивился, насколько спокойно и беспроблемно прошло строительствоСпасибо за отличную работу!…
Михаил Сергеев
, Московская обл, г.Серпухов
В декабре купили вторую машину в семью. Стали сразу же задумываться над строительством гаража на 2 машины. Так как дом у нас из рубленного бревна, то и гараж решили сделать из бревна. Позвонили в "Сямженский лес", в этот же день получили наглядный проект гаража и его стоимость. Когда ехал с Архангельска, с командировки, заскочил в Сямжу. Утвердили проект, заключили договор. Сруб привезли в срок, качеством рубки доволен, замечаний нет! Готов подтвердить информацию тел.8-953-512-17-00

Статьи по этой теме

Как отличить зимний брус для строительства дома?

Давно известно, что для строительства домов из бревна и бруса лучше всего подходит зимний лес. На это есть множество причин, о которых мы расскажем в нашей статье, а также поможем вам выбрать качественный зимний лес.

Усадка дома из бруса

Усадка бруса – это процесс, в течение которого дом садится. Но существует также другое понятие — усушка, когда дерево сохнет. Во время усадки древесина параллельно и сохнет, и садится. Поговорим, сколько же времени занимают эти процессы и что нужно учесть, чтобы деревянный дом усаживался правильно.

Утепление дома из бруса

Несмотря на высокие теплоизоляционные характеристики бруса, деревянные дома из этого материала требуют утепления. Обязательно следует утеплять дома из бруса толщиной менее 150 мм. Если вы выбрали материал от 150 мм, то вам тоже стоит задуматься об утеплении: в таком доме температура воздуха за сутки будет меняться всего лишь на два градуса. Это сделает проживание более комфортным и поможет снизить расходы на отопление.