Top.Mail.Ru

Баня, Вологодская область, Кирилловский район, д. Добрилово

Описание проекта:

Этажность
1 этаж
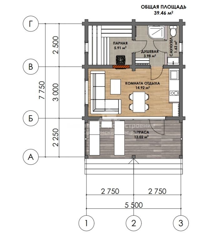
Габариты
5,5х8
Общая площадь
40.00 м2
Сроки
60 дней
Проект
Хочу такой же
Подробнее о проекте

В деревне Добрилово на берегу озера Егорьевское завершили сборку просторной бани.

У заказчика Павла здесь свой пирс и подход к воде — место само подсказывает, что баня должна быть особенной.

Павел долго выбирал формат: деревянная, каркасная, модульная или из газобетона. Неоднократно приезжал в нашу выставочную баню в Вологде у «Аксона» — она нравилась, но хотелось изменений.

Мы адаптировали проект под его запросы:
•  увеличили баню и террасу на 0,5 м,
•  перенесли вход прямо на террасу,
•  изменили планировку, чтобы в комнате отдыха появилось больше пространства под кухню и диван.

К моменту сборки заказчик подготовил участок и плитное основание.

На объект вышла особая бригада — мастера с нашего производства под руководством Александра Зайкина. Обычно они заняты на изготовлении, но в этот раз мы направили их именно на стройку, так как все строительные бригады были загружены.

Решение оказалось удачным: опытные производственники легко справились с задачей, а заодно на практике увидели, как ведут себя детали на монтаже — это помогает понимать, что стоит улучшать в работе цеха.

За 10 дней выполнили всю работу по сборке.
Крышу покрыли металлической фальцевой кровлей цвета графит - как же здорово она смотрится в сочетании с деревом, да и открытых саморезов на ней нет, а значит будет минимум протечек.

Сразу же утеплили крышу каменной ватой общей толщиной 250 мм, установили пластиковые окна Рехау, в парную поставили деревянное окно из лиственницы, стены обработали бесцветным антисептиком.

Павел остался очень доволен результатом. Он отметил, что баня получилась такой просторной, что в ней можно и жить. А в завершение с улыбкой попросил сделать фото рядом со своим новым строением.

Мы выполняем индивидуальные проекты любой сложности, учитывая все пожелания заказчика.
Подписывайтесь, задавайте вопросы по проектам — обсудим ваши идеи и реализуем их.
_________________
Подробнее о проекте:
• Адрес строительства: Вологодская область, Кирилловский район, д. Добрилово
• Дата установки: 13 августа 2025 года.
• Габариты: 5,5х8
• Площадь: 40 кв.м
• Стоимость бани в комплектации, как на фото(фундамент- ж/б плита-заказчик залил самостоятельно, стены из проф.бруса толщиной 190мм, кровля кликфальц GrandLine, утепление потолка по скатам 250мм, окна Рехау ГОСТ - 2,2 млн рублей. 
Цена актуальна на 18.08.2025.

 

Работу выполнили
Главный мастер на производстве

Александр Зайкин

С 2007 года работает в строительстве. Отвечает за работу трех производств: рубленого и оцилиндрованного бревна, а также профилированного бруса. Благодаря его управленческим и организаторским качествам, каждый домокомплект изготавливается точно в срок.

Хочу такой же

Оставьте заявку и получите
консультацию специалиста

Если у вас остались вопросы по проекту, Вы можете задать их
нашему инженеру по телефону 8 800 500 62 39 или оставить
заявку на обратный звонок

Отзывы клиентов

Карина Саватьева
, Московская обл, г.Серпухов
Хочу рассказать о своем доме по индивидуальному проекту. Сруб я заказала заблаговременно зимой, из зимнего леса. Бревна были хорошо обработаны и правильно подобраны. Летом бригада мастеров установила дом под крышу. Очень довольна работой. Ребята молодые, энергичные, подгонять не надо. Готова предоставить информацию: c-karina@bk.ru
Марина и Сергей
, д. Дубки Владимирская обл.
Присоединяемся к положительным отзывам о компании Сямженский лес. Мы встречались с Андреем и Игорем глубокой весной, ещё снег лежал на участке. Встретились и ознакомились с подъездом к нашему участку, ребята предложили оценить их работу в Сергиево-Посадском р-не. Мы съездили и нам понравилось, там же и подписали договор. Наш проект дома Михаил был уменьшен, Андрей всегда на связи, все объяснил и предоставил проект в 3D. Нам пошли на встречу в поэтапной оплате, спасибо им за это. Бригада Александра рубили и собирали дом, мы довольны. Сроки все выполнены согласно договору, так же что для нас было немаловажно сумма по договору фиксированная. Желаем процветания и не потерять…
Татьяна Красева
, д.Садовниково Сергиево-Посадский район Московской области
Наш дом был по индивидуальном проекту. Выбирали компанию только из северных регионов. И случайно нам попался "Сямженский лес". Получили предварительно смету. Она оказалась в хорошей ценовой категории. Связались с Андреем, обсудили все детали. Через 2 дня получили проект, полную смету и 3D макет. Все понравилось. Когда поставили фундамент, приехали Андрей и Игорь. Заключили договор. Когда рубили дом, Андрей присылал фото и видео. По договору у нас бревна 28-30 см, а в итоге 28-36. Доплаты не потребовали. Спасибо большое строителям: Евгений, Василий, Михаил и крановщику. Дом поставили за 3 недели. Красавец. Очень аккуратно. Все восхищаются. Всём рекомендую обращаться в эту…
Сергей И Татьяна Болотских
, город Орехово- Зуево, Московская область
Мы хотим поблагодарить ООО "Сямженский лес" за качественную и ответственную работу по строительству нашего дома и конкретно Андрея и Игоря Белоглазовых и строительную бригаду под руководством Дениса Будрина. Искать строительную компанию мы начали с осени 2017г., не могли найти подходящий для нас проект. Случайно попался сайт "Сямженского леса". Созвонились с проектировщиком Сергеем. Он по нашим параметрам изготовил нам проект дома (бесплатно). Затем к нам на дачный участок в СНТ приехал Андрей и на месте мы оговорили разные технические моменты, т.к. участок в старом СНТ (более 50 лет), на месте стоит старый щитовой домик, который нам предстояло сначала снести и на это же…
Александр Иванов
, посёлок 62-й км, город Хотьково Московской области.
Всем доброго дня! Наконец-то настал этот день,когда мы всей семьей можем испытывать огромную радость,глядя на результат работы компании "Сямженский лес". Дом,который построила бригада Александра Дьякова получился лучше,чем мечтали,а бригада Евгения Муравьева дополнила результат кровельными работами. Так же хотим поблагодарить Дмитрия Ивановича, Андрея и Игоря Белоглазовых ,Сергея Поскотинова и весь коллектив компании "Сямженский лес"-профессионалов своего дела от момента общения до момента дома на участке.
Татьяна Смирнова
, Коттеджный поселок Сосновый берег, Вологодский район, Вологодская область.
Заказывали с мужем в 2018 году в "Сямженском лесе" дом из профилированного бруса камерной сушки. Качеством материала, доставкой и сборкой остались довольны. Отделку выполнили своими силами, в доме живем вторую зиму- полет нормальный) На 2022 год уже заказали баню, в этом году доделаем фундамент и вновь ждем Сямженский лес в гости. Отзыв с карточки организации в яндекс: https://yandex.ru/profile/1613250437  
Иван Г.
, садовое товарищество Темп, Кольский район, Мурманская область.
Добрый вечер! Хочу поблагодарить компанию Сямженский лес за великолепно выполненную работу при проектировании и строительстве моей бани! Ответственный подход менеджера Михаила позволил в короткий срок разработать и согласовать проект, а слаженная работа бригады Александра Дьякова оставила исключительно положительные эмоции от изготовления, монтажа и результата строительства сруба в целом! Уверен, что вся команда профессионалов трудящихся в компании Сямженский лес - это результат огромного труда семейного дела, а желание делать свои проекты качественно, в срок и на долгие годы, всегда положительно оценивается довольными клиентами! Желаю Вам процветания, развития и успехов…
Константин
Испытал только положительные эмоции от проектирования и строительства бани в компании "Сямженский лес". Баню построили в июне 2025 года.ПроектированиеУчли все мои пожелания, предложили оптимальные варианты реализации, ответили и проконсультировали по всем вопросам, которые возникали в процессе проектирования.СтроительствоВ назначенный день приехала бригада отличных мастеров. На следующий день без моего участия бригада грамотно организовала и осуществила приемку комплекта бруса для бани и кровли для крыши. В установленные сроки мастера собрали баню и сделали монтаж кровли. Даже удивился, насколько спокойно и беспроблемно прошло строительствоСпасибо за отличную работу!…
Михаил Сергеев
, Московская обл, г.Серпухов
В декабре купили вторую машину в семью. Стали сразу же задумываться над строительством гаража на 2 машины. Так как дом у нас из рубленного бревна, то и гараж решили сделать из бревна. Позвонили в "Сямженский лес", в этот же день получили наглядный проект гаража и его стоимость. Когда ехал с Архангельска, с командировки, заскочил в Сямжу. Утвердили проект, заключили договор. Сруб привезли в срок, качеством рубки доволен, замечаний нет! Готов подтвердить информацию тел.8-953-512-17-00
Анатолий и Марина К.
, д.Кольцеево Вологодской области
Добрый день, уважаемые читатели!  Хотелось бы отметить слаженную и качественную работу компании Сямженский Лес. Все этапы работы от выбора проекта, до монтажа сруба проводились в установленные сроки. На наши предложения и вопросы мы оперативно получали ответы и разъяснения от Андрея и Александра. Мы остались довольны первым этапом работ, будем продолжать сотрудничать в 2017 году. Если Вы думаете с кем нужно строить, то строить нужно с Сямженским Лесом. anatoliy.korykin@gmail.com 
Софья Анатольевна Дашкова
, г.Дмитров Московская область
ОГРОМНОЕ СПАСИБО И НИЗКИЙ ПОКЛОН КОМПАНИИ СЯМЖЕНСКИЙ ЛЕС.Ни одного дня мы не пожалели,что именно с этой компанией мы заключили договор и нам построили замечательный дом.Очень благодарны Андрею и Игорю за их терпение,так как мы в самом начале долго выбирали проект и думали из чего строить дом.В дальнейшем тоже было очень много глупых вопросов и сомнений.Спасибо Вам за терпение!!! В сентябре нам доставили очень высокого качества брус и построили замечательный дом.Бригада нам досталась самая лучшая!!!как мы и просили.Артем бригадир,Юрий и Сергей.Они настоящие профессионалы своего дела.Работают слаженно,качественно,все делают на совесть.На каждый наш вопрос ответят,учтут все…
Дмитрий и Марина Сазоновы
, деревня Тамбицы, Республика Карелия
Весной 2015 года мы с супругом задумались о строительстве дома в Карелии. Начали подбирать компанию, проект, думать, какой он должен быть по объему. Летом того же года нашли в интернете информацию про "Сямженский лес". Созвонились с Андреем Белоглазовым, получили приглашение посетить их производство, что и сделали. Посмотрели как организована работа, обсудили разные варианты как проекта, так и порядка производства работ. Осенью 2017 созрели и начали работать над конкретным проектом. С нами работал Андрей и Екатерина. В итоге, после целого ряда согласований, мнений, обсуждений, мы получили, на наш взгляд, идеальный проект. При этом он был привязан к уже существующему…
Марченков Дмитрий
, Дом, Московская область, Мытищинский район, деревня Пруссы
Выражаем сердечную благодарность компании "Сямженский лес" за сруб, который они построили нам в посёлке Пруссы, Мытищинского района, Московской области. Отмечаем хорошо поставленную организацию работ, высокое качество и дисциплина труда. Особая благодарность Белоглазову Андрею Дмитриевичу, звену из трёх плотников: Будрин Денис, Мальгин Александр, Елисеев Денис. Спасибо техническому отделу компании за помощь в разработке проекта. Будем рады видеть вас на отделки сруба. Удачи.                               Марченков Дмитрий.…
Александр П.
, Коттеджный поселок Облака, Вологодская область.
Добрый день. Хочу отметить хорошую работу компании Сямженский лес. Заказывал дом из профилированного бруса камерной сушки. Организация работы отличная. Привезли домокомплект даже раньше оговоренного времени. Сборка производилась в зимний период в хорошие морозы. Не смотря на это сруб и крышу собрали довольно быстро. Отзыв с карточки организации в яндекс: https://yandex.ru/profile/1613250437
Наталья Ш.
, село Ершово, Одинцовский городской округ, Московская область.
Компания "Сямженский лес" построила для моей семьи дом "Скандинавия". Ребята скорректировали проект под наши пожелания, договорились и заключили договор в мае 2024, а 1 сентября 2024 года у меня уже был построен дом (все сроки были выдержаны прямо день-в-день). Дом из профилированного бруса камерной сушки, Одинцовский район Московской области. Мы выбрали "Сямженский лес" по следующим принципиальным для меня причинам: 1) собственное производство бруса 2) собственный проектировщик/инженер, разработавшие сами проект дома 3) уже имеющиеся построенные дома по этому проекту 4) сам проект дома - это на 100% именно то что я искала: расположение комнат, входной группы, выхода в…
Анна Попова
Строительство дома с компанией Сямженский лес прошло на высоком уровне на всех этапах.Очень понравилась оперативная работа при проектировании, постоянная взаимосвязь, вариации вариантов и готовность вносить изменения. Проект был индивидуальный, учли все потребности и пожелания 👍Далее при подготовке документации менеджер компании всегда координировал шаги, отвечал на вопросы по взаимодействию с банком. Работа с эскроу счетом прошла очень легко. У нас уже был неудачный опыт, когда представители другой строительной компании не могли подготовить необходимые для банка документы, и на этом всё закончилось. Здесь же, наоборот, всё было очень четко и максимально прозрачно. Самый…
Александр
, Московская обл. г.Чехов
Домом в целом доволен. Качественная рубка, бревна толстые, щелей нет. Рекомендую! Готов подтвердить информацию +7-915-277-42-51
Андрей и Валентина Сторожевы
, г.Троицк Московская обл.
Всем, привет!  Вот и мы стали обладателями прекрасного дома из бревна, построенного компанией Сямженский Лес. Выбирать тщательно строительную компанию мы начали в начале 2016г, пока случайно не увидели возведение бани у соседа по дачи. Познакомились с руководителем компании Андреем и бригадой сборщиков. Качество бревна, рубки и выполнения работ нам очень понравилось и у нас не осталось сомнений, что ВОТ ОНА - Строительная Компания, у которой мы закажем Наш Дом!!! В феврале мы встретились с Андреем и Игорем(главные Боссы компании - братья), выбрали проект и подписали договор. Ребята нам рассказали обо всех нюансах и проблемах, с которыми мы можем столкнуться,…
Юлия Модычева
, д. Семеновское, Можайский район , Московская область
24 июля 2017 года обратились в фирму «Сямженский Лес»с проектом о постройке дома. На следующий день получили ответ с проектом , сметой и договором. Списались о встрече и в начале августа они уже были у нас на участке. Заключили договор на возведении фундамента и постройке дома. Место положения нашего участка осложнено для подъезда тяжелой техники, но ребята справились со всеми трудностями, особенно с тяжелым грунтом . Приносим благодарность за это бригаде Артема, которые и вырыли и залили фундамент . Сруб срубили в сроки, оговоренные договором, привезли к нам на участок 8 октября 2017 года. Опять возникли трудности с выгрузкой сруба, в связи с непрекращающимися дождями,…
Александр Прокопенко
, деревня Хреновая, Смоленская область
В 2017 году мы с женой решили построить баню на нашем участке в Смоленской области. Как оказалось дело это совсем не простое. Мало иметь желание и необходимую сумму денег, надо еще определиться с проектом и самое главное с теми кто это воплотит в жизнь.  Мы начитались много всего интересного в интернете про проекты, про материалы и конечно же про строительные организации. Жена нашла компанию Сямженский лес и показала мне в интернете их сайт. Первое впечатление было очень положительным. Понятный и структуированный сайт с реальными отзывами людей, которые воспользовались услугами этой компании. Двоим клиентом Сямженского леса мы звонили и даже к одному из них мы…
Чистякова Елена
, Вологодская обл., Устюженский р-он, д.Глины
Добрый день! Извиняемся, что запоздали с отзывом, но считаем необходимым написать о своих положительных  впечатлениях о сотрудничестве с ООО «Сямженский лес».  Выражаем огромную  благодарность компании за выполненную работу по строительству нашего дома из рубленного бревна! Хочется отметить добросовестность, профессионализм, качество и сроки исполнения работ. Купив участок на берегу реки, мы сразу решились на строительство дома для своей семьи. Начитавшись положительных отзывов о ООО «Сямженский лес», написали письмо о просьбе посчитать стоимость проекта, который нашли в интернете. Нам очень быстро ответили, и совершенно бесплатно был составлен проект с…
Александр М.
, деревня Охотино, Сергиево-Посадский район, Московская область.
Всем добрый день! Ещё в 2020 году обратился в компанию Сямженский лес для строительства дома из рубленного бревна. Готового проекта не было, но было несколько картинок из интернета с понравившимися планировками. По этим картинкам специалистами Сямженского леса был не только отрисован полностью проект, но и была сделана его видео визуализация. За все это отдельное спасибо Сергею. За его терпение, скрупулёзный подход и неравнодушное отношение к клиенту! В 2021 году ребята приступили к изготовлению сруба на своей площадке. Возможности подъехать на производство у меня не было, но ребята присылали подробнейшие видео отчеты. За это тоже отдельное спасибо. А уже в апреле ребята…
Елена В.
, коттеджный посёлок Боково, Богородский городской округ, Московская область.
Выражаем с мужем огромную благодарность команде Компании «Сямженский лес» за проделанную работу по строительству нашего дома. Мы с супругом искали того самого своего подрядчика на протяжение 2 месяцев. Сделали свой выбор в пользу Вас и не ошиблись! Грамотные с точки зрения практики разъяснения каждого этапа, детальная разработка самого проекта и ответственный подход к работе. Да еще у ребят свое производство-деревообрабатывающее предприятие. То есть, все этапы находятся под строгим контролем, что очень подкупает и располагает. Все это в совокупности и привело к тому результату, который мы ждали! Успехов Вам в Вашей деятельности! С удовольствием будем рекомендовать всем…
Александр
, Московская обл. г.Чехов
Баня получилась большая, просторная, высокая. Все размеры по проекту. Нареканий нет.Готов предоставить информацию +7-915-277-42-51
Михаил Балагуров
, д.Ундозеро Вологодской области
Всем, кто будет читать мой отзыв, доброго дня.  О компании Сямженский Лес могу сказать пока только хорошее.  У нас очень непростой проект - большой дом в дремучих лесах на озерах. От ближайшего нормального населенного пункта ребята еще часа три ехали по лесовозной дороге.  Выбирали мы компанию, которая будет нам рубить дом по нашему индивидуальному проекту, очень тщательно и долго.  Выбрали Сямженский Лес съездили к ним на площадку в апреле и, приняв положительное решение, заключили договор.  Дом был срублен четко в оговоренные сроки, привезен на озера и собран в соответствие с проектом и графиком по договору.  Это первый новый дом в этой…
Владимир Г.
, Московская область, г. Дмитров
Нашел этих ребят случайно на сайте лесстроя. Хотел чтобы без посредников и чтобы строили наши простые мужики из северных регионов, т.е. ни московские барыги, ни друзья из солнечного Точикистона мне были не нужны. Сначала думал заказать только баню из рубленного бревна, потом переиграл и заказал баню из 20-й оцилиндровки. Чуть добавил и вместе с баней заказал оцилиндрованную беседку. Проектировщик Сергей долго менял проект по моей просьбе (переписывались по электронной почте), то двери не там, то окна не здесь. Все терпеливо выслушал и доработал. Молодец! Когда мы утрясли проекты обоих строений, на участок приехал Игорь Белоглазов. Мы пообщались, он промерил размеры моих…
Юрий и Ирина З.
, Московская область, городской округ Истра, ДП Дмитровский Рубеж.
Хочу поделиться опытом общения с компанией "Сямженский лес".  Обратились к ним в конце 2018г. по вопросу строительства бани по индивидуальному проекту. Приятно удивила оперативная реакция на наш запрос по электронной почте. Проектировщик Сергей ответил на ВСЕ наши многочисленные вопросы, в процессе работы с ним продумали вариант прокладки скрытой проводки, изменили высоту сруба, внутреннюю планировку относительно изначально предложенного нами проекта. Редкий случай, когда можешь получить столь развернутые ответы и рекомендации, подкреплённые схемами, чертежами, расчетами и 3D моделями!  Далее попросили контакты заказчиков по Новорижскому направлению, которые…
Евгений и Екатерина
, Тульская область, Ясногорский район, садовое товарищество Восход №79
Здравствуйте! Хотела бы оставить отзыв об ООО "Сямженский лес". Участок у нас находится в Тульской области и изначально собирались обратиться в местную фирму, но повстречавшись с представителями местных фирм, поездив, поговорив, поняли что надо искать что-то другое. Об ООО "Сямженский лес" уже знали, понравилось то, что в работе они используют северный лес, что имеют свое производство и самое главное, что это семейный бизнес. Я лично ездила в Вологду пообщаться и заключить договор. Общалась с Андреем Белоглазовым и Сергеем Поскотиновым. Вы знаете, было ощущение что я побывала у родственников: встретили на вокзале, привезли в офис, несмотря на ранний час, общались долго,…
Андрей Ш.
, деревня Букино, Зубцовский район, Тверская область.
Хотел бы поделиться положительным опытом сотрудничества с компанией Сямженский Лес. Строили дом из проф бруса 140х190 по индивидуальному проекту в труднодоступном месте Тверской губернии. Хочу сказать большое спасибо менеджеру Сергею за проект, расчёты и договор, руководителю Андрею за организацию доставки сруба и фотоотчет (кстати, для доставки и разгрузки непосредственно на месте был предоставлен вездеход манипулятор на базе камаза), и Денису и его бригаде - все работы были выполнены качественно и аккуратно, в соответствии с планом без единого дня задержки. Очень профессиональная и слаженная команда. Спасибо! Отзыв с карточки организации в яндекс: https://yandex.…
Александр С.
, деревня Пустынь, Чагодощенский район, Вологодская область.
Отзыв от заказчика Александра из деревни Пустынь Вологодской области. В октябре 2024 года мы построили для его семьи небольшой одноэтажный дом по проекту Янтарь. Спасибо заказчикам за доверие. Мы ценим обратную связь и будем стараться делать нашу работу ещё лучше.

Статьи по этой теме

Как выбрать фундамент для дома из бруса?

Основные типы фундамента для дома из бруса — свайный, ленточный и плитный. Соответственно, все они отличаются по стоимости. Для того чтобы правильно выбрать фундамент и по возможности сэкономить, учтите следующие рекомендации профессиональных строителей компании «Сямженский лес».

Усадка дома из бруса

Усадка бруса – это процесс, в течение которого дом садится. Но существует также другое понятие — усушка, когда дерево сохнет. Во время усадки древесина параллельно и сохнет, и садится. Поговорим, сколько же времени занимают эти процессы и что нужно учесть, чтобы деревянный дом усаживался правильно.

Дом с мансардным этажом

Мансардный этаж - пространство непосредственно под скатом кровли, которое превращено в полноценные жилые комнаты. Обустройство мансарды позволяет без значительного увеличения стоимости строительства превратить одноэтажный дом из бруса в двухэтажный и увеличить полезную площадь на 70-80%. Неудивительно, что такие проекты популярны.