Top.Mail.Ru

Дом, Вологодская область, Кирилловский муниципальный округ, деревня Кабачино

Описание проекта:

Этажность
1 этаж
Габариты
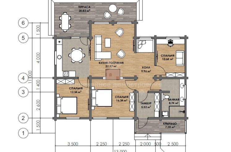
11х13
Общая площадь
143.00 м2
Сроки
60 дней
Хочу такой же
Подробнее о проекте

Современный дом из клееного бруса с панорамным остеклением и террасой. Построен на возвышенном участке в деревне Кабачино с видом на реку.

Дом расположен на участке с выраженным рельефом и панорамным видом на реку Шексна и монастырь на противоположном берегу. Локация удалённая и уединённая, что было ключевым фактором при выборе места для строительства.

Проект одноэтажного дома адаптирован под особенности участка и образ жизни семьи. Основной акцент сделан на раскрытие вида: в доме предусмотрено большое остекление и открытая терраса, ориентированная в сторону реки.

Дом выполнен из клееного бруса — технологичного материала с высокой стабильностью геометрии. Это решение позволяет реализовывать современные архитектурные проекты с большими оконными проёмами и комфортным микроклиматом.

За основу был взят ранее реализованный проект, который доработали с учётом конкретных условий участка и пожеланий заказчика.

Строительство началось в феврале. Из-за труднодоступности участка материалы завозились по промёрзшей дороге, что потребовало точного планирования сроков.

Фундамент выполнен на железобетонных сваях. Сборка дома велась в сложных погодных условиях, включая сильный ветер, но все работы были завершены в течение 2 месяцев.

Дом сдан в комплектации «тёплый контур»:
— утепление пола и потолка 250 мм
— кровля из металлочерепицы
— установлены окна и входная дверь

Проект демонстрирует, как современный дом из клееного бруса может органично вписываться в природное окружение и усиливать преимущества участка.


Подробнее о проекте:
- Адрес строительства: Вологодская область, Кирилловский муниципальный округ, деревня Кабачино
- Дата установки:23 апреля 2026.
- Габариты: дом из клееного бруса 11х13

Работу выполнили
Мастер отделочных работ

Денис Будрин

Работает в строительстве с 2009 года. Бригада под руководством профессионального отделочника Дениса Будрина выполняет практически любые виды отделки. Мастер использует современные и надежные материалы, дает ценные рекомендации заказчикам по своему профилю. Также занимается обустройством фундаментов и сборкой домокомплектов.

Хочу такой же

Оставьте заявку и получите
консультацию специалиста

Если у вас остались вопросы по проекту, Вы можете задать их
нашему инженеру по телефону 8 800 500 62 39 или оставить
заявку на обратный звонок

Отзывы клиентов

Адаменко Виктор
, Ярославская обл, Переславский р-н, д.Красногор
Все хорошо!!!  Готов подтвердить информацию +7-925-277-06-20
Андрей Володькин
, Клин Московской области
В середине лета 2016 года встал вопрос о постройке бани на участке,и начались поиски компании, к которой мог бы я обратиться.Но рынок сейчас настолько обширен, что это затянулось,до того момента пока не наткнулся на сайт "Сямженский лес",и начала вырисовываться полная картина. На сайте почитал отзывы,и позвонил. Андрей доступным языком все объяснил,рассказал,и что не мало важно, помог с проектом.После переговоров и обсуждений, Андрей пригласил в гости непосредственно посмотреть, как происходит заготовка леса и весь процесс вцелом.Это не маловажно многим,кто еще не доверяет людям.Встретили как пологается) горячим обедом и чаем.Посмотрев все,заключили договор и ,обсудив…
Наталья Егорова
, Московская область, Дмитровский район, деревня Филимоново
Выбор компании «Сямженский Лес» для строительства бани был для нашей семьи не случайным, уже имелся положительный опыт сотрудничества с этой компанией у коллеги по работе и соседей. На всех этапах строительства бани (бесплатное проектирование индивидуального проекта, заключение договора, доставка, сборка домокомплекта, монтаж кровли) мы имели дело с высококомпетентными сотрудниками, знающими свое дело на «5+». результатом остались довольны, ждем 2 месяца, чтобы можно было начать внутреннюю отделку, также с бригадой компании "Сямженский Лес".  8-917-515-03-61 Наталья почта: egorova_nata@inbox.ru  
Поликарпов Вадим
, Ленинградская область, Всеволожский район, КП Солнечная Долина
Крайне благодарен каждому сотруднику компании Сямженский лес за профессионализм, качество и оперативность.  Более года выбирали компанию, которая подготовит проект и выполнит строительство дома. На первоначальном этапе (фундаменте) решили обратиться к иной профильной компании и подготовить проект дома, но получили не полноценный результат (фундамент отличный, а проект дома имеет ряд ошибок и не обоснованных решений).  Приятно были удивлены полученному предложению специалистов компании Сямженский лес, которые оперативно подготовили отредактированный проект и выполнили 3D моделирование без какой-либо оплаты.  Этапы строительства дома удивили еще больше.…
Алексей и Ольга Д.
, Ленинградская область, Кингисеппский район, деревня Среднее Райково.
Хочу выразить благодарность коллективу компании "Сямженский лес", за хорошо выполненную работу по установке домокомплекта из профилированного бруса 190х140 камерной сушки, в деревне Среднее Райково, Кингисеппского района Ленинградской обл. Отдельно хочется выразить благодарность: Андрею Белоглазову, Сергею Поскотинову и бригаде Артема Бешеля, которая качественно и в срок выполнила работы по монтажу домокомплекта. Хочется подчеркнуть человеческое, и в тоже время деловое отношение руководства и работников компании при выполнении всех этапов работ. Прекрасно поставлена работа по проектированию и доставке домокомплекта. На сайте выложены реальные цены, а не рекламные "…
Юлия С.
, село Тарутино, Жуковский район, Калужская область
Строила баню в июле 23г., все прошло замечательно, рубленное бревно, построено по проекту, все отклонения со мной согласовывали. Когда выбирала компанию, пугало очень большое количество положительных отзывов, сразу кажется, что все куплено. На самом деле реальные отзывы, реальные люди, которые без ума от своих домов. Ездила смотрела построенные дома, сама выбрала их на карте и общалась с людьми. Минус наверно только один, стройматериалы берут с запасом и цены на доски - процентов на 10-20 выше рынка. Ну всегда есть возможность заказать это самим. По рубке - все отлично, вместо 24 диаметра в договоре - по факту у меня 28-30, для меня это плюс, но вдруг для кого-то это…
Валерий и Анна
, Вологодская область, Сокольский район, деревня Большой Кривец.
Для наших заказчиков, Валерия и Анны, построили дом по проекту «Марина» в 2023. Заказчики остались довольны и поделились с нами видео отзывом.Идея построить небольшой дом на берегу реки Сухоны пришла семейной паре достаточно давно. Анна и Валерий выбрали проект «Марина» из нашего каталога проектов. Фундамент заказчик залил самостоятельно, выбрав мелкозаглубленную ленту. Как только раствор набрал нужную прочность, мы привезли готовый домокомплект и приступили к сборке. Весь процесс занял 2 недели, включая покрытие крыши металлочерепицей и установку обсадных коробок на проемы.  Приглашаем вас в нашу выставочную баню, где мы всегда готовы обсудить все вопросы…
Леонид Кожокарь
, Тверская обл, г. Бологое
Сруб заказал в июле 2015 года.Договор заключили через интернет.Сруб срубили и привезли через месяц.Сруб собирал сам,порадовало качество рубки.Бревна точно подобраны по диаметру.Спасибо за работу.Готов предоставить информацию dreammakers@mail.ru
Елена Соболева
, Московская обл. Можайский район СНТ Крылатки
Дорогие друзья! Хочу поделиться с вами нашей маленькой историей. У нас очень большая семья и в ней было принято решение о строительстве на даче в Можайском районе новой летней кухни. Мы очень долго и тщательно искали на просторах интернета строительную компанию, которая бы смогла осуществить нашу мечту. После долгих поисков случайно наткнулись на сайт строительной компании Сямженский лес. Тут и остановились, чему несказанно рады! Предварительный проект нашего дома был у нас готов. Однако, при детальном рассмотрении специалистами компании в нем были выявлены некоторые недочеты и проект немного изменили и улучшили. Огромную благодарность хочется выразить Андрею, который не…
Наталья и Александр Симаковы
, Ивановская область, город Тейково
Наша история поиска строительной компании и строительства дома из рубленного бревна практически созвучна со многими положительными отзывами клиентов, партнёров или друзей компании ООО "Сямженский лес" написанными ранее. Поэтому историю трёхлетнего поиска строительной компании мы пропустим, ведь главное было найти и не разочароваться, не обмануться. И нам повезло мы стали клиентами и надеюсь друзьями компании ООО "Сямженский лес". В данном отзыве хочется выразить огромную признательность и сказать спасибо руководителю компании ООО "Сямженский лес" Андрею Белоглазову за проделанную работу по проектированию дома, организацию всего процесса изготовления и сборки сруба (дома…
Михайлов Алексей
, Московская область, Дмитровский район, деревня Редькино
РЕБЯТА, СПАСИБО БОЛЬШОЕ. Все четко, быстро, качественно! РЕКОМЕНДУЮ!!!!! mikhaylov.lesha@gmail.com
Александр Бирюков
, город Полярные Зори, Мурманская область.
Компания ООО «Сямженский лес» выполнила строительство дома в Мурманской области в г.Полярные Зори. Хотелось отметить наивысшее качество материала, профессионализм бригады по сборке и качество сборки, соблюдение сроков изготовления домокомплекта, доставки и сборки. Огромное спасибо компании. Буду заказывать баню;) Отзыв с https://yandex.ru/profile/1613250437
Елена Х.
, деревня Логиново, Павлово-Посадский городской округ, Московская область.
Построили большой терем в Сентябре 2023г. Бревно рубленое, отличного качества, дом смонтировали за неделю! Все остатки аккуратно сложили, опилки собрали и все за собой в вагончике убрали. Спасибо! На дом смотрю и Душа поет!!! Отзыв с карточки организации в Яндекс: https://yandex.ru/profile/1613250437
Алексей и Александра
, Московская область, посёлок Шаховская.
"Мы несколько лет искали компанию, которая построит для нас дом. Спрашивали у знакомых, ходили на выставки деревянного домостроения, но всегда было что-то не то.В интернете я увидела сайт компании Сямженский лес и решила позвонить…. После общения с инженером-проектировщиком Михаилом у меня не осталось сомнения, что Сямженский лес - именно та компания, которую мы искали.Михаил всегда был на связи, оперативно отвечал на вопросы, предлагал лучшие решения, очень компетентный специалист. Хочу поблагодарить его за проявленное терпение и индивидуальный подход. Михаил - настоящий эксперт!Проект согласован 👌, все этапы прозрачны и понятны. В январе нам на участок привезли…
Владимир Михайлович Чикунов
, Владимирская обл, Петушинский р-н, СНТ Восход
Заказ по доставке, установке сруба и материалов был выполнен качественно и в срок. Работа бригады оценивается на отлично, работали эффективно и качетсвенно. Качество постановленного сруба бани-отличное. Рекомендую ООО "Сямженский лес" для будующих заказчиков. тел. 8-985-338-99-64  novokosino88@mail.ru
Виталий Т.
, Вологодская область, Вологодский район, д. Ульяновка
"Всплыл как подснежник" - решение о постройке бани созрело моментально, в конце мая. Переживал, что у подрядчиков и леса не будет, и времени. Закинул проект для расчетов в несколько компаний Вологодской области. Что отличило "Сямженский Лес": 1) Отзывчивость и ответственный подход братьев Андрея и Игоря - тут и множество советов (и по фундаменту, и по покраске, и по отделке), и 24 часа на связи, и оперативность ответов. 2) Профессиональный подход, отличающийся от подхода других подрядчиков - оперативно был готов и проект и крайне подробная смета. Корректив в проект вносил много, да и материал выбирал по "цена - качество" - Андрей терпеливо откликался на любые изменения.…
Юрий и Елена Баруздины
, д. Палкино Грязовецкого района Вологодской области
Благодарим компанию "Сямженский лес" за качественную, аккуратную и оперативную работу по изготовлению и сборке сруба. Очень понравилась открытость и быстрое решение всех возникающих в процессе проектирования и строительства вопросов.Отдельная благодарность бригаде Николая, которая приятно удивила не только нас, заказчиков, но и соседей своей работоспособностью и чистоплотностью. Готовы рекомендовать компанию "Сямженский лес" другим потенциальным заказчикам. Молодцы! Ссылка на страницу в Вконтакте: https://vk.com/id19459277
Рудольф
, Ленинградская область, Всеволжский район, КП Оранжерейка
Присоединяюсь ко всем положительным отзывам. Профессиональное отношение к делу абсолютно всех сотрудников. Ведение проекта, сроки, качество сборки все на очень высоком уровне.  Проект вела Екатерина Шилова, строила бригада Александра Дьякова --- спасибо за вашу работу! 89213146244@yandex.ru
Дмитрий и Марина С.
, деревня Тамбицы, Медвежьегорский район, республика Карелия.
Два года назад мы заключили договор с Компанией "Сямженский лес" на строительство дома в деревне Тамбицы Медвежьегорского района Карелии. В том же 2018 году мастерами Компании был установлен сруб под усадку. В ноябре этого года пришло время очередного этапа - монтаж кровли. С невероятной скоростью, всего за 4 дня, бригада Александра Дьякова смонтировала кровлю из металлочерепицы площадью более 250 кв. метров со сложным профилем. С отменным качеством, отмеченным не только нами, но и местными жителями, совсем не чуждыми плотницкому делу. В это же время вошли работы по демонтажу временной кровли, монтажу и демонтажу лесов, тщательной уборке мусора. И даже сходить на рыбалку…
Сергей К.
, деревня Алешино, Пушкинский городской округ, Московская область
Всем добрый день ! Парни просто волшебники, принял работу 14.11.23. Сделали за 2 недели, думаю, было бы быстрее, но погода внесла коррективы. Спасибо, им огромное, Теперь, если что по дереву, это в Сямженский лес. Парни Андрей, Михаил, Денис, Денис, Александр - вы настоящие профессионалы!!! Отзыв с карточки организации в Яндекс: https://yandex.ru/profile/1613250437
Юрий и Виктория
, Вологодская область, Вологодский район, коттеджный поселок Родионцево.
В 2021 году построили для Юрия и его семьи дом из оцилиндрованного бревна диаметром 240 мм северного леса. Заказчики остались довольны и поделились с нами видеоотзывом о проделанной работе. Сборку сруба мы завершили 9 апреля 2021 года, крышу покрыли металлочерепицей «каскад», которую в народе называют «шоколадной плиткой». По запросу заказчика, смонтировали флюгер с аистами. В доме, на крыше которого свил гнездо аист, будут царить согласие и процветание, звучать счастливый детский смех.  
Андрей Стовба
, Московская обл. Сергиево-Посадский район д.Шапилово
В октябре 2015 года принял решение построить небольшой сруб на загородном участке. Выбор подрядчика дело серьезное - определялся долго, изучил кучу материала, но все равно никак не мог определиться, пока не увидел как на соседнем участке возводят красавец-сруб. Увидев процес, пощупав материалы сомнения отпали - если и строиться, то с Сямжой. Большое спасибо ребятам из ООО "Сямженский лес" за качественно выполненную работу. Все на совесть, из лучших материалов. Большое спасибо! Рассчитываю на дальнейшее сотрудничество. 8 903 617 49 28 stovba75@mail.ru
Сергей и Александра К.
, Московская обл. Коломенский район, с. Андреевское
В 2016 году решили воплотить мечту по постройке в деревне (с. Андреевское Коломенского р-на МО) рубленую баньку. В итоге, после долгих поисков, размышлений и прикидок проект изменился - остановились на проекте бани с мансардой в 1,5 этажа. Далее начались долгие поиски подрядчиков, сравнения цен и качества. Поиски увенчались успехом - остановились на "Сямжеском лесе" и проекте "Гермес". С самого начала общения (это был Андрей Белоглазов) на нас произвело позитивное впечатление клиентоориентированность, ответственность и профессиональность Андрея, оперативная отработка наших предложений, замечаний и изменений к проекту. Все сроки соблюдаются, все договоренности выполняются…
Сергей и Наталья Пискловы
, село Таврово Белгородской области
Присоединяемся ко всем положительным отзывам о компании и их представителях. Ни одного дня не пожалели, что остановили свой выбор на компании "Сямженский лес". Все сделано быстро, качественно, без обмана!!! Вели проект от начала до самого окончания строительства бани. Постоянно были на связи. Отдельно хочется сказать и о бригаде, которая собирала баню (Артем с Юрием). Работали от зари до зари. Все сделали качественно, быстро и при этом после работы осталась чистота и порядок. Отличные специалисты ( рекомендуем) и замечательные люди! Скажем коротко - приятно иметь дело с такими специалистами и компанией "Сямженский лес"!!!!! Огромное спасибо за проделанную работу! Удачи и…
Алексей и Галина
, Краснодарский край, посёлок Вардане
Хотела бы от всей нашей семьи поблагодарить Игоря и Андрея Белоглазовых, а также всю замечательную команду, которые помогли воплотить нашу мечту с домом (шале) у моря! В наше время редкое качество искренности, четкости, идеальности всей работы начиная с человеческого общения до всего процесса работы! В этой компании есть все для воплощения уютной домашней мечты из настоящего теплого вологодского дерева! Благодарим Вас, Сямженский лес! Так держать! и, надеемся. до скорой встречи! https://vk.com/id271790177
Алексей и Юлия Горьковы.
, деревня Тимково Московской области.
Высококласная компания "Сямженский лес "европейского уровня ,начиная от проектирования проекта до бригады строителей под руководством Александра всё на наивысшем уровне. Руководство, в моём случае , по моей просьбе перенесла сроки поставки на целый месяц что дорогого стоит. Всё выполнено на наивысшем уровне. Компании огромное Спасибо. РС Буду Рекомендовать компанию "Сяженский Лес" своим друзьям и знакомым. Отзыв с карточки организации в яндекс: https://yandex.ru/profile/1613250437
Владимир О.
, поселок Алешино, Вологодский район, Вологодская область
Совсем недавно бригада закончила строительство жилого дома, и хотелось сразу же оставить отзыв о проделанной работе. Заказывали у вас домокомплект «Александра» из профилированного бруса, бригада справилась со своей задачей превосходно! Работу начали в срок, рабочие и руководство всегда были на связи, присылали отчеты о проделанной работе, в т.ч. как изготавливается и где хранится брус. Ответили на все наши интересующие вопросы по отделке, обработке бруса в дальнейшем. Работа выполнена точно в срок. Ни разу не пожалели что обратились именно к Вам! Отзыв с карточки организации в Яндекс: https://yandex.ru/profile/1613250437
Сергей
, Вологодская область, Вологодский район, поселок Ильинское.
Для наших заказчиков из поселка Ильинское, Вологодской области мы повторили дом по проекту «Янтарь» в 2023 году. Заказчики поделились с нами видеоотзывом о проделанной работе и рассказали как они узнали о нас. Стоит отметить, что проект был доработан по индивидуальному запросу заказчика: выполнили зеркальную планировку, увеличили площадь котельной и добавили выход на террасу. Финансирование строительства осуществлялось с использованием ипотеки от Сбербанка.  
Руслан Карпов
, Ленинградская обл., Всеволожский р-н., д.Углово
Решили мы с семьёй "вляпаться" в строительство. Так как очень любим баню, то сначала решили построить дом-баню(8х8+крыльцо в два этажа).Ну и в моём понимании баня должна быть рубленной.Долго искали тех людей кому могли бы доверить строительство, ездил смотрел работы, созванивался, но всё не то что надо...И вот наконец то поиски увенчались успехом...ООО "Сямженский Лес".Съездил, посмотрел,пообщался с Андреем и Игорем, показали площадку, производство, вместе сделали проект,договорились о сотрудничестве в августе 2015 и вот март 2016 и я счастливый обладатель сруба!Моему восторгу нет предела,бригада строителей(они же рубщики) профессионалы, знатоки своего дела,всё сделали в…
Наталья В.
, г. Жуковский
Моя мечта осуществилась благодаря ООО "Сямженский лес". В январе 2017 закрывала глаза и видела домик, а в июле домик стоит у меня на участке. Ничего не понимая в строительстве залезла в инет и началось... Пересмотрела множество сайтов, Сямженский лес - звучало красиво. Но за красивым названием стоят два прекрасных брата и их бригады. Терпение, профессионализм, пунктуальность... и можно продолжать до бесконечности. На все мои самые глупые вопросы всегда были ответы и помощь. Все условия прописаны в договоре. Все по плану, все во время, всегда на связи. Перед тем как выбрать эту компания обзванивала владельцев уже построенных домов - только положительные отзывы, я к ним…

Статьи по этой теме