Top.Mail.Ru

Вологодская область, Вологодский муниципальный округ, село Неверовское.

Описание проекта:

Этажность
1 этаж
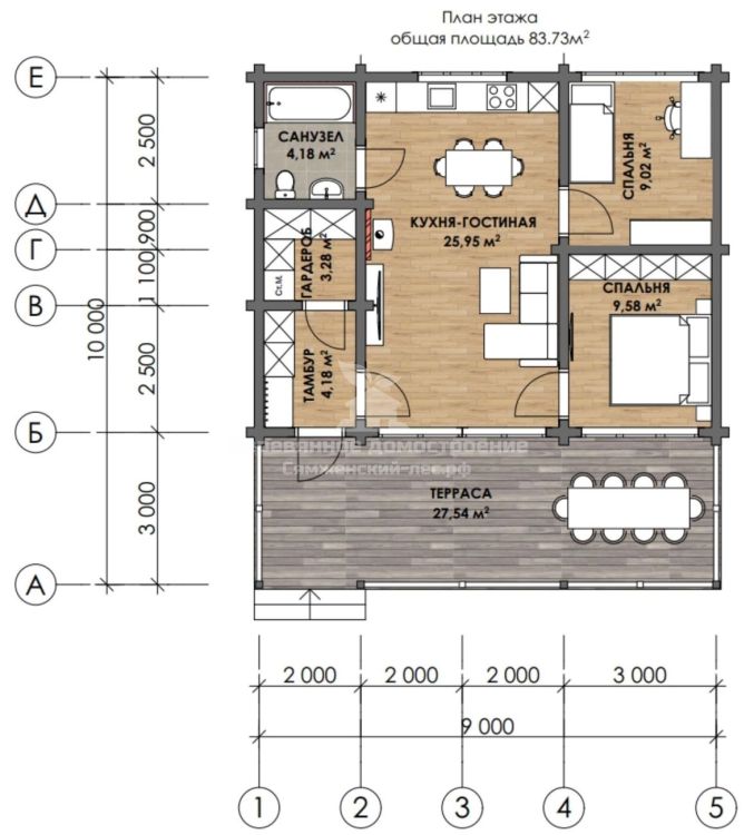
Габариты
9х10
Общая площадь
83.00 м2
Сроки
60 дней
Хочу такой же
Подробнее о проекте

Индивидуальный дом из профилированного бруса по мотивам проекта «Шале»

Перед вами — реализованный объект, разработанный на основе нашего типового проекта «Шале» с адаптацией под задачи заказчиков.

Дом спроектирован и построен для Сергея и Ксении. В процессе работы базовое решение доработали под реальный сценарий жизни: террасу разместили под общей крышей, добавили вторую спальню, предусмотрели отдельную зону для хранения и размещения инженерных коммуникаций. В результате получился компактный, но функционально выверенный дом без лишних элементов.

Объект реализован с использованием семейной ипотеки под 6% и материнского капитала в качестве первоначального взноса. Такой формат финансирования подходит не только для крупных домов, но и для проектов небольшой площади — при грамотной проработке параметров.

Строительно-монтажные работы выполнила бригада под руководством Александра Дьякова. Срок реализации — 3 недели. За это время выполнен полный цикл работ в рамках тёплого контура: монтаж свайного фундамента, сборка стенового комплекта, устройство кровли из металлочерепицы, установка окон и входной двери, утепление пола и потолка (общая толщина 250 мм). Дополнительно, по запросу заказчика, в стенах подготовлены каналы под скрытую электрику.

Дом передан заказчикам в тёплом контуре. Следующий этап — регистрация объекта и раскрытие эскроу-счёта.

В галерее представлены фотографии реализованного дома. 

Подробнее о проекте:
- Адрес строительства: Вологодская область, Вологодский муниципальный округ, село Неверовское.
- Дата установки: 15 апреля 2026.
- Габариты: 9х10
- Площадь: 83 кв.м
- Стоимость дома в комплектации “теплый контур”, как на фото (фундамент-ж/б сваи, стены из проф.бруса толщиной 190 мм, металлочерепица GrandLine, утепление пола и потолка 250 мм, окна Rehau) - 5,2 млн рублей. Цена актуальна на 20.04.2026.

Работу выполнили
Бригада Александра Дьякова

Рыбин Александр, Дьяков Александр, Дьяков Иван

Специалисты работают с рубленым бревном: подготавливают материал и собирают срубы. Контролируют каждый этап строительства, чтобы получить качественный результат. Самая опытная бригада в нашем коллективе. Мастера поддерживают высокие стандарты качества срубов компании.

Хочу такой же

Оставьте заявку и получите
консультацию специалиста

Если у вас остались вопросы по проекту, Вы можете задать их
нашему инженеру по телефону 8 800 500 62 39 или оставить
заявку на обратный звонок

Отзывы клиентов

Андрей Стовба
, Московская обл. Сергиево-Посадский район д.Шапилово
В октябре 2015 года принял решение построить небольшой сруб на загородном участке. Выбор подрядчика дело серьезное - определялся долго, изучил кучу материала, но все равно никак не мог определиться, пока не увидел как на соседнем участке возводят красавец-сруб. Увидев процес, пощупав материалы сомнения отпали - если и строиться, то с Сямжой. Большое спасибо ребятам из ООО "Сямженский лес" за качественно выполненную работу. Все на совесть, из лучших материалов. Большое спасибо! Рассчитываю на дальнейшее сотрудничество. 8 903 617 49 28 stovba75@mail.ru
Сергей и Александра К.
, Московская обл. Коломенский район, с. Андреевское
В 2016 году решили воплотить мечту по постройке в деревне (с. Андреевское Коломенского р-на МО) рубленую баньку. В итоге, после долгих поисков, размышлений и прикидок проект изменился - остановились на проекте бани с мансардой в 1,5 этажа. Далее начались долгие поиски подрядчиков, сравнения цен и качества. Поиски увенчались успехом - остановились на "Сямжеском лесе" и проекте "Гермес". С самого начала общения (это был Андрей Белоглазов) на нас произвело позитивное впечатление клиентоориентированность, ответственность и профессиональность Андрея, оперативная отработка наших предложений, замечаний и изменений к проекту. Все сроки соблюдаются, все договоренности выполняются…
Сергей и Наталья Пискловы
, село Таврово Белгородской области
Присоединяемся ко всем положительным отзывам о компании и их представителях. Ни одного дня не пожалели, что остановили свой выбор на компании "Сямженский лес". Все сделано быстро, качественно, без обмана!!! Вели проект от начала до самого окончания строительства бани. Постоянно были на связи. Отдельно хочется сказать и о бригаде, которая собирала баню (Артем с Юрием). Работали от зари до зари. Все сделали качественно, быстро и при этом после работы осталась чистота и порядок. Отличные специалисты ( рекомендуем) и замечательные люди! Скажем коротко - приятно иметь дело с такими специалистами и компанией "Сямженский лес"!!!!! Огромное спасибо за проделанную работу! Удачи и…
Алексей и Галина
, Краснодарский край, посёлок Вардане
Хотела бы от всей нашей семьи поблагодарить Игоря и Андрея Белоглазовых, а также всю замечательную команду, которые помогли воплотить нашу мечту с домом (шале) у моря! В наше время редкое качество искренности, четкости, идеальности всей работы начиная с человеческого общения до всего процесса работы! В этой компании есть все для воплощения уютной домашней мечты из настоящего теплого вологодского дерева! Благодарим Вас, Сямженский лес! Так держать! и, надеемся. до скорой встречи! https://vk.com/id271790177
Алексей и Юлия Горьковы.
, деревня Тимково Московской области.
Высококласная компания "Сямженский лес "европейского уровня ,начиная от проектирования проекта до бригады строителей под руководством Александра всё на наивысшем уровне. Руководство, в моём случае , по моей просьбе перенесла сроки поставки на целый месяц что дорогого стоит. Всё выполнено на наивысшем уровне. Компании огромное Спасибо. РС Буду Рекомендовать компанию "Сяженский Лес" своим друзьям и знакомым. Отзыв с карточки организации в яндекс: https://yandex.ru/profile/1613250437
Владимир О.
, поселок Алешино, Вологодский район, Вологодская область
Совсем недавно бригада закончила строительство жилого дома, и хотелось сразу же оставить отзыв о проделанной работе. Заказывали у вас домокомплект «Александра» из профилированного бруса, бригада справилась со своей задачей превосходно! Работу начали в срок, рабочие и руководство всегда были на связи, присылали отчеты о проделанной работе, в т.ч. как изготавливается и где хранится брус. Ответили на все наши интересующие вопросы по отделке, обработке бруса в дальнейшем. Работа выполнена точно в срок. Ни разу не пожалели что обратились именно к Вам! Отзыв с карточки организации в Яндекс: https://yandex.ru/profile/1613250437
Сергей
, Вологодская область, Вологодский район, поселок Ильинское.
Для наших заказчиков из поселка Ильинское, Вологодской области мы повторили дом по проекту «Янтарь» в 2023 году. Заказчики поделились с нами видеоотзывом о проделанной работе и рассказали как они узнали о нас. Стоит отметить, что проект был доработан по индивидуальному запросу заказчика: выполнили зеркальную планировку, увеличили площадь котельной и добавили выход на террасу. Финансирование строительства осуществлялось с использованием ипотеки от Сбербанка.  
Руслан Карпов
, Ленинградская обл., Всеволожский р-н., д.Углово
Решили мы с семьёй "вляпаться" в строительство. Так как очень любим баню, то сначала решили построить дом-баню(8х8+крыльцо в два этажа).Ну и в моём понимании баня должна быть рубленной.Долго искали тех людей кому могли бы доверить строительство, ездил смотрел работы, созванивался, но всё не то что надо...И вот наконец то поиски увенчались успехом...ООО "Сямженский Лес".Съездил, посмотрел,пообщался с Андреем и Игорем, показали площадку, производство, вместе сделали проект,договорились о сотрудничестве в августе 2015 и вот март 2016 и я счастливый обладатель сруба!Моему восторгу нет предела,бригада строителей(они же рубщики) профессионалы, знатоки своего дела,всё сделали в…
Наталья В.
, г. Жуковский
Моя мечта осуществилась благодаря ООО "Сямженский лес". В январе 2017 закрывала глаза и видела домик, а в июле домик стоит у меня на участке. Ничего не понимая в строительстве залезла в инет и началось... Пересмотрела множество сайтов, Сямженский лес - звучало красиво. Но за красивым названием стоят два прекрасных брата и их бригады. Терпение, профессионализм, пунктуальность... и можно продолжать до бесконечности. На все мои самые глупые вопросы всегда были ответы и помощь. Все условия прописаны в договоре. Все по плану, все во время, всегда на связи. Перед тем как выбрать эту компания обзванивала владельцев уже построенных домов - только положительные отзывы, я к ним…
Игорь Баранов
, деревня Тимонино, Брейтовский район Ярославской области
Строительство деревянного дома очень ответственное дело.А выбрать в наше время строительную компанию не очень просто.Можно остаться и без денег и без дома. Я выбрал и доверил строительтво своего дома по индивидуальному проекту ООО "Сямженский лес". На все мои вопросы касательно строительства дома по индивидуальному проекту , были получены профессиональные исчерпывающие ответы от Андрея Белоглазова.Огромное спасибо ему за это. Фундамент дома был залит в октябре 2017 г.Сруб был срублен из зимнего леса в конце марта 2018 г. Когда рубили дом, Андрей присылал фото и видео. По договору бревна 28-30 см, а в итоге 28-35. Доплаты не потребовали.Сруб рубила и собирала бригада…
Сергей Д.
, деревня Романово, Череповецкий район, Вологодская область.
Всем доброго времени суток! Хочу кратко поделиться впечатлениями о сотрудничестве с компанией "Сямженский лес". На первоначальном этапе специалисты компании подготовили проект и выполнили 3D моделирование без какой-либо оплаты. На все мои вопросы по индивидуальному проекту были получены профессиональные ответы от Андрея Белоглазова, который вел весь путь строительства от "картинки до реальности". Рубка, доставка и установка были выполнены на высшем уровне и в установленные сроки. Доставку и работу манипулятором выполнил сам Дмитрий Иванович Белоглазов.  Рубку сруба, возведение фундамента и сборку дома под крышу осуществил "локомотив" производства, можно так сказать…
Евгений Чернов
, СНТ Арабелла, Дмитровский район, Московская область.
Хотел бы поделиться впечатлением об опыте сотрудничества со строительной компанией ООО "Сямженский лес". Впечатления за все время были исключительно положительные. Началось все с того, что мною принято было решение о строительстве бани из рубленного бревна на дачном участке. После долгих просмотров разных сайтов и отзывов нашел эту компанию, связался с менеджером Сергеем, который в диалоге оказался очень приветливым и обходительным человеком, дал все необходимые консультации Сруб доставили на участок точно в срок. Мастера опытные, вежливые, работали аккуратно. Всего 3 человека в бригаде. Сруб непосредственно поставили за 3 дня. На участке после себя оставили порядок.…
Виталий С.
, деревня Ирдоматка, Череповецкий район, Вологодская область
Заказал о компании Сямженский лес дом из профилированного бруса. Сделали эскизный проект дома, учли все мои пожелания. От момента подписания договора на изготовление домокомплекта и до сдачи собранного дома прошло всего 3 месяца!!! При изготовлении домокомплекта присылали фото и видео отчеты с производства. Во время сборки бригадир Денис отвечал на все мои вопросы. Дом собрали ровно за 4 недели. Работали не смотря на мороз и ветер. Благодарю за отлично выполненную работу! Отзыв с карточки организации в Яндекс: https://yandex.ru/profile/1613250437  
Яна
, Вологодская область, п. Непотягово
Благодарим компанию «Сямженский лес» за наш уютный и бесподобный дом! Мечтали жить в своем доме и искали подходящие варианты готовых. Считаем, что нам очень повезло, когда встретилось объявление о продаже выставочного экземпляра компании, выстроенного «под ключ» и полностью укомплектованного по дизайнерскому проекту. Пришли, увидели и влюбились! Не знаю, как описать в двух словах, но наиболее подходящие «наверное, это мой рай». Проект дома «Скандинавия» порадовал удобной и продуманной планировкой, функциональным размещением всех необходимых для нашей семьи помещений. Снаружи весьма компактный и аккуратный дом внутри удивил просторной кухней-гостиной с высоким…
Валерий Иванович Видяев
, Московская обл. Щелковский р-н ПКИЗ Слава
В долгих поисках в сети Интернет добросовестных изготовителей деревянных бань обнаружил сайт ООО "Сямженский лес". По контактному телефону созвонился с Игорем Белоглазовым. Уточнили условия строительства. Возникло заочное обоюдное доверие и согласие.  Через неделю Игорь вместе с братом Андреем приехали к нам на участок. Еще раз уточнили проектные данные, условия, сроки и стоимость строительства. Был оформлен договор.  После чего сразу же началась рубка сруба. Ход рубки периодически показывался на сайте фирмы.  Сруб и пиломатериалы привезли досрочно. Качество рубки в чашу отличное. Диаметр бревен в основном большего размера, чем было указано в договоре.…
Лола Бурухина
, д. Ручьи Череповецкого района Вологодской области
Дорогие друзья, хочу поделиться впечатлениями о компании и качестве оказанных услуг. Наша семья с прошлго года думала о строительстве бани. Приглядывались к соедним участкам, смотрели на качество построенных домов и бань, у многих были свои недочеты, интересовались и разговаривали с другими строителями, но что-то останавливало. Мы хотели небольшую баньку из бревна. В просторах интернета наткнулись в "Сямженский лес". Почитали отзывы, решила позвонить. Разговаривала с Андреем Белоглазовым, с первых минут он расположил себя к диалогу. Доступно объяснил, что к чему и пригласил приехать посмотреть баню 5 на 5 , которая у них была уже срублена и стояла на строй площадке.…
Татьяна Орехова
, город Чехов Московская область
Доброго всем дня! Хотим поблагодарить ООО"Сямженский лес",особенно Андрея Белоглазова, бригадира Евгения и его бригаду за добросовестное отношение, качественную работу. Работают честно,быстро,профессионально,четко.Начну с самого начала:пообщались в сети,созвонились. Приехали в Сямжу.Нас встретили,накормили-напоили -спать уложили.Утром осмотрели производственную площадку и заключили договор.Первое впечатление-порядочные,хорошие люди,занимающиеся своим делом. Так как мы использовали материнский капитал , Пенсионный Фонд немного нам затянул время,но это оказалось и к лучшему- строительство перенесли на лето.Когда рубили наш дом в Сямже,регулярно присылали нам фото-и видео…
Константин Третьяков
, Архангельская область, Вельский район, город Вельск
Здравствуйте, хочу сказать огромное спасибо компании Сямженский лес, за проделанную работу по проектированию и постройке по индивидуальному проекту частного дома 8,0х8,0, для постоянного проживания, с прирубленным гаражом 4,0х8,0 из профилированного бруса камерной сушки (брус - дом 190х140, гараж 140х140) в г.Вельск, Архангельской области.  Очень понравилось человеческое отношение руководства и работников компании, начиная от первой встречи - обсуждение проекта, до самого строительства - сборки дома, все работы производились точно в срок, не выступая из рамок заключенного договора.  Особо хочу выразить благодарность директору компании Андрею Белоглазову и…
Виталий Тараканов.
, деревня Ульяновка, Вологодская область, Вологодский район.
Заказывал в «Сямженский Лес» и баню, и дом. И полностью доволен! Во-первых, адекватность общения, соблюдение договоренностей и оперативная обратная связь от ребят (для меня, не профессионала, это очень важно). Во-вторых, качество возведенных объектов (не стесняюсь - все соседи мне завидуют), и жена счастлива. В-третьих, уровень бригады (у меня был бригадир Артем) - видно, что опыт колоссальный, возвели быстро, но без спешки. Поэтому, даже не сомневайтесь - только «Сямженский Лес»! Отзыв с карточки организации в яндекс: https://yandex.ru/profile/1613250437
Алексей и Ольга Н.
, ДНП "Вишневый сад-2" Александровский район, Владимирская область
Добрый день! В 2022 году мы с супругой приняли решение строить дом из оцилиндрованного бревна. По рекомендации знакомого обратились в организацию (не буду указывать наименование), выполняющую данные работы. Посмотрели типовые варианты и выбрали подходящий. Из-за внесения изменений пришлось оплатить проект. От предложенного фундамента из трубных свай сразу отказались, т.к. участок имеет наклон. Решили пойти по более дорогому варианту из буронабивных свай с ростверками по периметру и под внутренними стенами, с внутренним утеплением, обратной засыпкой песком и с сооружением плиты. В течении года пока отливался и давал усадку фундамент нам звонили и сообщали об увеличении…
Эдуард и Евгения
, Ленинградская область, Приозерский район, Мельниковское сельское поселение, п. Мельниково
Друзья, рады поделиться с вами искренним отзывом от наших заказчиков, для которых мы построили дом по проекту «Скандинавия» в посёлке Мельниково, Ленинградская область. Эдуард и Евгения давно живут в доме из профилированного бруса и захотели такого же уюта для своей дочери. В этом видео Лариса рассказывает честное мнение о выборе нашей компании. Без сценариев и постановок, только эмоции и реальный опыт взаимодействия с нашей компанией.
Ирина Смирнова
, д.Ченцы Переславский р-н Ярославской обл.
Хочется сказать большое спасибо всему коллективу " Сямженский лес" за отлично выполненную работу по проектированию, рубке, сборке и монтажу крыши. Все работы были выполнены качественно и точно в срок. Мы будем продолжать дальнейшее сотрудничество по отделке бани и строительству дома. 8-965-267-31-18
Надежда Юрьевна В.
, г.Подольск СНТ Ветеран-2
Приемлемая цена. Смету не завышали. Все работы обговаривают предварительно. Очень высокое качество рубленного дерева и самой сборки.Мастера профессионалы - работают аккуратно, быстро и без лишнего шума и пыли. Ни одного нарекания со стороны соседей. Работой довольны. gorayon13@yandex.ru  8-926-780-48-86  
Андреев Сергей
, Поселок Важский Архангельская область
Выражаем огромную благодарность бригаде строителей под руководством Фатиева Николая (Александр, Игорь и Иван), которые в десятидневный срок возвели дом из профилированного бруса в поселке Важский Архангельской области. Бригада трудилась от рассвета до заката, благо погода способствовала этому. Очень профессиональные и дисциплинированные ребята. Отдельная благодарность руководству компании за взаимопонимание и моментальное решение всех возникающих вопросов. Надеемся в дальнейшем на сотрудничество и будем рекомендовать вас друзьям и знакомым. СПАСИБО! тел. +7 911 309 4244 почта: brodyga@mail.ru
Сергей Танайлов
, Московская область, поселение Клёновское, СНТ Гавриково.
Всем доброго суток! Хочу выразить благодарность коллективу компании Сямженский лес, за проделанную работу по установке домокомплекта из профилированного бруса 190х140 камерной сушки, по доработанному проекту "Любовь" на территории СНТ "Гавриково", г. Москва. Отдельно хочется выразить благодарность: Андрею Белоглазову за понимание и личное участие в процессе строительства; Сергею Поскотинову, за терпение на этапе проектирования; И огромная благодарность бригаде Артема Бешаля, которая своевременно и без контроля, со стороны заказчика, выполнила работы по монтажу домокомплекта. Порадовало человеческое, и в тоже время деловое отношение руководства и работников компании.…
Александр Р.
, деревня Новое Село, Тихвинский район, Ленинградская область.
Всем добрый день! Хотим отметить очень хорошую работу компании ООО "Сямженский Лес". Мы обратились в эту компанию для постройки нам дачного дома из рубленого бревна в д. Новое Село Тихвинского р-на в Лен области, и считаем что мы сделали правильный выбор. Наш заказ был выполнен компанией в согласованные сроки, оперативно и на высоком уровне. В процессе работы было видно что компания настроена на качественную работу. При выборе компании нас заинтересовало то, что данная компания на рынке по строительству домов работает давно, а значит имеет в строительстве накопленный опыт и то, что компания выполняет весь комплекс работ по строительству дома (изготовление и сборка сруба…
Александр Е.
, посёлок Васильевское, Вологодский район, Вологодская область.
Очень качественная работа . Сделано хорошо красиво , очень понравилось. Бригада выполнили всё аккуратно, весь мусор обрезки убрали. Сделали всё отлично и в срок, рекомендую компанию очень понравилось 👍. Отзыв с карточки организации в Яндекс: https://yandex.ru/profile/1613250437
Татьяна Кулакова
, Калужская область, г. Сухиничи
Мечты сбываются!!!Мы с мужем в течение 7 месяцев обращались в разные строительные компании. Просматривая в интернете проекты, звонили, консультировались. Муж при поиске зашёл на страницу Сямженского леса. Дом Скандинавия, то что нам было нужно. В течение еще 6-ти месяцев мы, просматривая разные проекты, возвращались к Сямженскому лесу. В итоге съездили в Вологду. Заключили договор. И это здорово!!! Потому что их подход, организация и в итоге за 2 неделе построенный дом, превзошли все ожидания. Наш участок почти за 1000 км. Калужская область.Спасибо профессионалам Сямженского леса!   Отзыв с карточки организации на Яндекс https://yandex.ru/sprav/1613250437/p/edit/…
Алексей Гусев
, Череповец
Большое спасибо коллективу ООО "Сямженский лес" . На первом этапе с Андреем Белоглазовым качественно доработали проект бани с террасой и пристройкой в 1,5 этажа с учетом наших пожеланий . Затем опытная бригада во главе с Александром воплотила его в жизнь ( размер 6,5м*12,5м. ) Все работы выполнили в срок , материалы качественные , работа кипела , профессионализм налицо , конечный результат оправдал все ожидания ! Готов подтвердить информацию 8-921-252-08-20, gusev.cher@mail.ru
Мария и Алексей К.
, СНТ Зареченские Просторы Можайский р-н Московской области
Добрый день дорогие друзья! Позвольте и нам поделиться с вами переполняющей нас радостью! 26 июля 2017 года мы стали счастливыми обладателями двух этажного дома-бани. ОГРОМНОЕ СПАСИБО и НИЗКИЙ ПОКЛОН Андрею и Игорю, за их работу, за то как они ведут дела и за то, что вернули веру в людей. А теперь, если можно я подробнее расскажу о нашем сотрудничестве. После того, как мы стали жертвой мошенников, враги нам стали мерещиться на каждом углу. Поэтому мы заняли позицию доверяй, но проверяй. Перелопатив просторы интернета, мы остановились на компании «Сямженский лес» потому что, никакой отрицательной информации про эту компанию мы не нашли ВООБЩЕ. Все отзывы реальных клиентов…

Статьи по этой теме

Строительство домов из профилированного бруса

Собираетесь построить дом из профилированного бруса? Избавьте себя от хлопот и доверьте решение всех вопросов опытным мастерам компании «Сямженский лес». Мы с 1991 года работаем в этой сфере и знаем, как правильно строить прочные и долговечные дома из бруса.

Как построить красивый брусовый дом с утеплением недорого?

Для того чтобы ответить на этот вопрос, нужно в первую очередь определиться с бюджетом строительства. Не стоит слишком занижать планку, иначе вы рискуете получить непрактичную постройку из плохих по качеству материалов. В то время как современный деревянный дом, сделанный с душой профессионалами своего дела, станет вашим местом силы. Именно такие дома строят по всей России мастера компании «Сямженский лес».