Top.Mail.Ru

Проект дома из профилированного бруса камерной сушки «Дом Скандинавия»

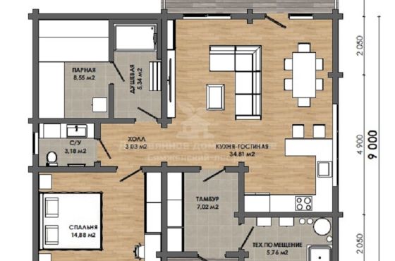
Проект дома из профилированного бруса камерной сушки Дом Скандинавия 13х13,25 1 этаж 127.47 кв.м.

Общая площадь
127.47 м2
Размер строения
13х13,25
Количество этажей
1 этаж
Технология:

Профилированный брус камерной сушки

Выбрать сечение материала:
Цены актуальны на 1 января 2026 года, подробную консультацию вы можете получить по бесплатному номеру
8-800-500-62-39 или 8-921-127-55-06 (WhatsApp/Telegram)

Планы этажей

1 этаж

Проект можно изменить под ваши пожелания

Дом Скандинавия

Деревянный коттедж «Скандинавия»

Не важно, сколько нам лет, нам всегда нужно место, которое можно назвать домом. Ведь с собственного жилища начинается история рода. Потому так важно построить коттедж, в котором навсегда поселится ваше сердце.

Именно таким жильем будет для вас новый дом от компании «Сямженский лес». Дом из бруса «Скандинавия» представляет собой одноэтажную постройку из натурального дерева, которая органично впишется в ландшафт участка. Природные материалы создают внутри уникальный микроклимат, которого невозможно достичь в каркасных или пеноблочных конструкциях.

Оригинальный проект деревянного коттеджа

Этот проект дома из бруса размером 13х13 метров имеет площадь 127 м². В трех спальнях комфортно разместится семья с двумя детьми. Благодаря кухне-гостиной (34 м²) и террасе (16,9 м²) в нем найдется достаточно места для приема гостей и родственников.

Владельцы дома из профилированного бруса приятно удивятся наличию собственного санузла и гардеробной в главной спальне. Прихожая, котельная, прачечная и общая ванная завершают внутреннюю планировку.

Заказать проект коттеджа или строительство деревянного дома под ключ

Мы построим дом из бруса «под усадку» за один месяц и завершим отделку сразу завершения усадки. Для оформления заказа позвоните нам по телефону 8 (800) 500-62-39 или свяжитесь с помощью WhatsApp/Telegram 8 (921) 127-55-06.

«Счастлив тот, кто счастлив дома», — говорил Лев Толстой. Как не согласиться с великим классиком?  

В стоимость комплектации «холодный контур» входит

Проектирование

1. Визуализация:

  • 3D-моделирование внешнего вида дома в программе House creator
  • Планировочные решения в программе House creator

2. Конструктивные решения:

  • План фундамента
  • Схема обвязки фундамента
  • План расположения балок перекрытий
  • План кровли
  • Порядовки стен (схема кладки)

3. Техническая документация:

  • Сводная спецификация деревянных конструкций
  • Подробная смета на первый этап строительства “холодный контур”

Все документы разрабатываются профессиональными проектировщиками с опытом работы более 10 лет и соответствуют необходимым строительным нормам и требованиям. При необходимости проект может быть дополнен другими разделами документации по согласованию с заказчиком.

Фундамент

1. Разработка проектной документации и схемы свайного поля с учетом особенностей грунта, конструкции и параметров будущего строения.

2. Транспортировка материалов и спецтехники:

  • Доставка железобетонных свай сечением 150х150 мм
  • Транспортировка миникопра для монтажа
  • Зона обслуживания: в радиусе 300 км от с. Сямжа Вологодской области

3. Подготовительные работы на объекте:

  • Совместная с заказчиком разметка осей фундамента
  • Определение оптимальной высоты свай относительно уровня земли

4. Монтаж свайного фундамента:

  • Забивка железобетонных свай длиной 3000 мм (возможно увеличение до 4000 мм)
  • Использование специализированной техники - миникопра
  • Контроль качества установки

5. Завершающие работы:

  • Установка металлических оголовков размером 200х200 мм
  • Антикоррозийная обработка оголовков

Важно: для объектов, расположенных далее 300 км от с. Сямжа, монтаж выполняется силами заказчика.

При этом исполнитель обеспечивает:

  • Предоставление подробного плана свайного поля
  • Методические рекомендации по монтажу
  • Инструкции по приемке выполненных работ
Домокомплект

1. Заготовка сырья. Собственная лесозаготовка в селе Сямжа Вологодской области. Использование леса только зимней заготовки хвойных пород (ель и сосна)

2. Обработка древесины:

  • Распиловка леса на брус и доски. Выполнение компенсационных пропилов для минимизации трещин
  • Сушка в конвективной сушильной камере до влажности 18-20%
  • Профильная обработка со всех сторон на медленном режиме для получения гладкой поверхности

3. Подготовка к транспортировке:

  • Упаковка деталей в пачки. Покрытие защитной пленкой от УФ-излучения
  • Размещение на деревянных поддонах для защиты от контакта с землей

4. Комплектация домокомплекта:

  • Обрезной пиломатериал естественной влажности 1-го сорта (подкладочная доска, обвязочный брус для фундамента, балки перекрытия, стропила, контробрешетка, обрешетка, доска на леса, доска для обсадных коробок)

5. Дополнительные материалы:

  • Комплектуем домокомплект необходимыми расходниками для сборки: гидроизоляция для фундамента, глухари и пружинные узлы для стяжки венцов, межвенцовый утеплитель шелтер, скользящие крепления для стропил, саморезы, гвозди, бензин, масло и т.д. Все необходимое для качественной сборки стен и кровли.
Доставка

1. Погрузка домокомплекта на производстве в селе Сямжа Вологодской области

2. Доставка домокомплекта в радиусе 550км от села Сямжа

  • осуществляется закрытыми евро фурами или манипулятором с прицепом.

3. Выгрузка домокомплекта на участке заказчика

  • осуществляется с помощью крана или манипулятора

4. Организация подъездных путей к участку и фундаменту осуществляется силами заказчика.

  • если подъездных путей нет, то разгрузка вручную невозможна, так как детали имеют большой вес.
Сборка стен и кровли

1. Подготовка основания:

  • Монтаж гидроизоляции
  • Установка подкладочной доски под первый венец

2. Возведение стен:

  • Соединение стен глухарями
  • Установка пружинных узлов для стяжки венцов
  • Постоянный контроль диагоналей, вертикального уровня, горизонтального уровня

3. Монтаж стропильной системы:

  • Установка стропил на скользящие крепления
  • Обеспечение правильного крепления

4. Монтаж кровельного пирога:

  • Монтаж ветрозащитной мембраны
  • Установка контр.обрешетки
  • Монтаж обрешетки с правильным шагом под металлочерепицу

5. Монтаж кровельного покрытия:

  • Использование металлочерепицы GrandLine
  • Покрытие металла: Satin
  • Толщина металла: 0,5 мм. Выбор цвета по желанию заказчика

6. Установка кровельных элементов:

  • Монтаж капельника
  • Установка карнизной планки
  • Монтаж торцевых планок
  • Установка коньковой планки
  • Монтаж вентиляционной ленты от насекомых

7. Контроль качества:

  • Фотофиксация всех этапов работ
  • Регулярные отчеты заказчику о ходе строительства

Все работы выполняются с соблюдением технологических требований и строительных норм для обеспечения долговечности и надежности конструкции.

Установка окон и дверей

1. Монтаж пластиковых окон на монтажную пену:

  • Производитель профиля REHAU, толщина рамы 70мм
  • Комплектация окон с качественной фурнитурой, москитными сетками, металлическим отливом снаружи
  • В окнах использованы двухкамерные стеклопакеты с мультифункцией и энергосбережением

2. Установка входной двери:

  • Монтаж металлической двери с терморазрывом
Сопровождение строительства

1. Информационное сопровождение:

  • Регулярная фото- и видеофиксация процесса строительства, отправка отчетов заказчику                         

2. Контроль строительных работ:

  • Проверка вертикальности стен и опорных столбов
  • Контроль уровня межэтажных перекрытий
  • Мониторинг состояния и правильности установки: глухарей, пружинного узла, домкратов

3. Контроль качества материалов:

  • Проверка на механические повреждения бруса, мониторинг состояния конструкций, контроль качества используемых материалов

4. Безопасность строительства:

  • Проверка соблюдения правил пожарной безопасности
  • Контроль соблюдения норм охраны труда, безопасных условий работы
Статьи по теме

Как построить красивый брусовый дом с утеплением недорого?

Для того чтобы ответить на этот вопрос, нужно в первую очередь определиться с бюджетом строительства. Не стоит слишком занижать планку, иначе вы рискуете получить непрактичную постройку из плохих по качеству материалов. В то время как современный деревянный дом, сделанный с душой профессионалами своего дела, станет вашим местом силы. Именно такие дома строят по всей России мастера компании «Сямженский лес».

Дом из бруса: плюсы и минусы

В этой статье мастера домостроительной компании «Сямженский лес» расскажут о плюсах и минусах домов из бруса, с которыми знакомы не понаслышке.

Шлифовка дома из бруса

Шлифовка сруба дома позволяет убрать недостатки древесины без использования химии. Необязательно шлифовать дома из профилированного бруса и те, которые будут в дальнейшем обшивать. А вот коттеджи из обычного пиленого бруса лучше отшлифовать.

Реализованный проект

Отзывы клиентов

Руслан Карпов
, Ленинградская обл., Всеволожский р-н., д.Углово
Решили мы с семьёй "вляпаться" в строительство. Так как очень любим баню, то сначала решили построить дом-баню(8х8+крыльцо в два этажа).Ну и в моём понимании баня должна быть рубленной.Долго искали тех людей кому могли бы доверить строительство, ездил смотрел работы, созванивался, но всё не то что надо...И вот наконец то поиски увенчались успехом...ООО "Сямженский Лес".Съездил, посмотрел,пообщался с Андреем и Игорем, показали площадку, производство, вместе сделали проект,договорились о сотрудничестве в августе 2015 и вот март 2016 и я счастливый обладатель сруба!Моему восторгу нет предела,бригада строителей(они же рубщики) профессионалы, знатоки своего дела,всё сделали в…
Наталья В.
, г. Жуковский
Моя мечта осуществилась благодаря ООО "Сямженский лес". В январе 2017 закрывала глаза и видела домик, а в июле домик стоит у меня на участке. Ничего не понимая в строительстве залезла в инет и началось... Пересмотрела множество сайтов, Сямженский лес - звучало красиво. Но за красивым названием стоят два прекрасных брата и их бригады. Терпение, профессионализм, пунктуальность... и можно продолжать до бесконечности. На все мои самые глупые вопросы всегда были ответы и помощь. Все условия прописаны в договоре. Все по плану, все во время, всегда на связи. Перед тем как выбрать эту компания обзванивала владельцев уже построенных домов - только положительные отзывы, я к ним…
Игорь Баранов
, деревня Тимонино, Брейтовский район Ярославской области
Строительство деревянного дома очень ответственное дело.А выбрать в наше время строительную компанию не очень просто.Можно остаться и без денег и без дома. Я выбрал и доверил строительтво своего дома по индивидуальному проекту ООО "Сямженский лес". На все мои вопросы касательно строительства дома по индивидуальному проекту , были получены профессиональные исчерпывающие ответы от Андрея Белоглазова.Огромное спасибо ему за это. Фундамент дома был залит в октябре 2017 г.Сруб был срублен из зимнего леса в конце марта 2018 г. Когда рубили дом, Андрей присылал фото и видео. По договору бревна 28-30 см, а в итоге 28-35. Доплаты не потребовали.Сруб рубила и собирала бригада…
Сергей Д.
, деревня Романово, Череповецкий район, Вологодская область.
Всем доброго времени суток! Хочу кратко поделиться впечатлениями о сотрудничестве с компанией "Сямженский лес". На первоначальном этапе специалисты компании подготовили проект и выполнили 3D моделирование без какой-либо оплаты. На все мои вопросы по индивидуальному проекту были получены профессиональные ответы от Андрея Белоглазова, который вел весь путь строительства от "картинки до реальности". Рубка, доставка и установка были выполнены на высшем уровне и в установленные сроки. Доставку и работу манипулятором выполнил сам Дмитрий Иванович Белоглазов.  Рубку сруба, возведение фундамента и сборку дома под крышу осуществил "локомотив" производства, можно так сказать…
Евгений Чернов
, СНТ Арабелла, Дмитровский район, Московская область.
Хотел бы поделиться впечатлением об опыте сотрудничества со строительной компанией ООО "Сямженский лес". Впечатления за все время были исключительно положительные. Началось все с того, что мною принято было решение о строительстве бани из рубленного бревна на дачном участке. После долгих просмотров разных сайтов и отзывов нашел эту компанию, связался с менеджером Сергеем, который в диалоге оказался очень приветливым и обходительным человеком, дал все необходимые консультации Сруб доставили на участок точно в срок. Мастера опытные, вежливые, работали аккуратно. Всего 3 человека в бригаде. Сруб непосредственно поставили за 3 дня. На участке после себя оставили порядок.…
Виталий С.
, деревня Ирдоматка, Череповецкий район, Вологодская область
Заказал о компании Сямженский лес дом из профилированного бруса. Сделали эскизный проект дома, учли все мои пожелания. От момента подписания договора на изготовление домокомплекта и до сдачи собранного дома прошло всего 3 месяца!!! При изготовлении домокомплекта присылали фото и видео отчеты с производства. Во время сборки бригадир Денис отвечал на все мои вопросы. Дом собрали ровно за 4 недели. Работали не смотря на мороз и ветер. Благодарю за отлично выполненную работу! Отзыв с карточки организации в Яндекс: https://yandex.ru/profile/1613250437  
Яна
, Вологодская область, п. Непотягово
Благодарим компанию «Сямженский лес» за наш уютный и бесподобный дом! Мечтали жить в своем доме и искали подходящие варианты готовых. Считаем, что нам очень повезло, когда встретилось объявление о продаже выставочного экземпляра компании, выстроенного «под ключ» и полностью укомплектованного по дизайнерскому проекту. Пришли, увидели и влюбились! Не знаю, как описать в двух словах, но наиболее подходящие «наверное, это мой рай». Проект дома «Скандинавия» порадовал удобной и продуманной планировкой, функциональным размещением всех необходимых для нашей семьи помещений. Снаружи весьма компактный и аккуратный дом внутри удивил просторной кухней-гостиной с высоким…
Валерий Иванович Видяев
, Московская обл. Щелковский р-н ПКИЗ Слава
В долгих поисках в сети Интернет добросовестных изготовителей деревянных бань обнаружил сайт ООО "Сямженский лес". По контактному телефону созвонился с Игорем Белоглазовым. Уточнили условия строительства. Возникло заочное обоюдное доверие и согласие.  Через неделю Игорь вместе с братом Андреем приехали к нам на участок. Еще раз уточнили проектные данные, условия, сроки и стоимость строительства. Был оформлен договор.  После чего сразу же началась рубка сруба. Ход рубки периодически показывался на сайте фирмы.  Сруб и пиломатериалы привезли досрочно. Качество рубки в чашу отличное. Диаметр бревен в основном большего размера, чем было указано в договоре.…
Лола Бурухина
, д. Ручьи Череповецкого района Вологодской области
Дорогие друзья, хочу поделиться впечатлениями о компании и качестве оказанных услуг. Наша семья с прошлго года думала о строительстве бани. Приглядывались к соедним участкам, смотрели на качество построенных домов и бань, у многих были свои недочеты, интересовались и разговаривали с другими строителями, но что-то останавливало. Мы хотели небольшую баньку из бревна. В просторах интернета наткнулись в "Сямженский лес". Почитали отзывы, решила позвонить. Разговаривала с Андреем Белоглазовым, с первых минут он расположил себя к диалогу. Доступно объяснил, что к чему и пригласил приехать посмотреть баню 5 на 5 , которая у них была уже срублена и стояла на строй площадке.…
Татьяна Орехова
, город Чехов Московская область
Доброго всем дня! Хотим поблагодарить ООО"Сямженский лес",особенно Андрея Белоглазова, бригадира Евгения и его бригаду за добросовестное отношение, качественную работу. Работают честно,быстро,профессионально,четко.Начну с самого начала:пообщались в сети,созвонились. Приехали в Сямжу.Нас встретили,накормили-напоили -спать уложили.Утром осмотрели производственную площадку и заключили договор.Первое впечатление-порядочные,хорошие люди,занимающиеся своим делом. Так как мы использовали материнский капитал , Пенсионный Фонд немного нам затянул время,но это оказалось и к лучшему- строительство перенесли на лето.Когда рубили наш дом в Сямже,регулярно присылали нам фото-и видео…
Константин Третьяков
, Архангельская область, Вельский район, город Вельск
Здравствуйте, хочу сказать огромное спасибо компании Сямженский лес, за проделанную работу по проектированию и постройке по индивидуальному проекту частного дома 8,0х8,0, для постоянного проживания, с прирубленным гаражом 4,0х8,0 из профилированного бруса камерной сушки (брус - дом 190х140, гараж 140х140) в г.Вельск, Архангельской области.  Очень понравилось человеческое отношение руководства и работников компании, начиная от первой встречи - обсуждение проекта, до самого строительства - сборки дома, все работы производились точно в срок, не выступая из рамок заключенного договора.  Особо хочу выразить благодарность директору компании Андрею Белоглазову и…
Виталий Тараканов.
, деревня Ульяновка, Вологодская область, Вологодский район.
Заказывал в «Сямженский Лес» и баню, и дом. И полностью доволен! Во-первых, адекватность общения, соблюдение договоренностей и оперативная обратная связь от ребят (для меня, не профессионала, это очень важно). Во-вторых, качество возведенных объектов (не стесняюсь - все соседи мне завидуют), и жена счастлива. В-третьих, уровень бригады (у меня был бригадир Артем) - видно, что опыт колоссальный, возвели быстро, но без спешки. Поэтому, даже не сомневайтесь - только «Сямженский Лес»! Отзыв с карточки организации в яндекс: https://yandex.ru/profile/1613250437
Алексей и Ольга Н.
, ДНП "Вишневый сад-2" Александровский район, Владимирская область
Добрый день! В 2022 году мы с супругой приняли решение строить дом из оцилиндрованного бревна. По рекомендации знакомого обратились в организацию (не буду указывать наименование), выполняющую данные работы. Посмотрели типовые варианты и выбрали подходящий. Из-за внесения изменений пришлось оплатить проект. От предложенного фундамента из трубных свай сразу отказались, т.к. участок имеет наклон. Решили пойти по более дорогому варианту из буронабивных свай с ростверками по периметру и под внутренними стенами, с внутренним утеплением, обратной засыпкой песком и с сооружением плиты. В течении года пока отливался и давал усадку фундамент нам звонили и сообщали об увеличении…
Эдуард и Евгения
, Ленинградская область, Приозерский район, Мельниковское сельское поселение, п. Мельниково
Друзья, рады поделиться с вами искренним отзывом от наших заказчиков, для которых мы построили дом по проекту «Скандинавия» в посёлке Мельниково, Ленинградская область. Эдуард и Евгения давно живут в доме из профилированного бруса и захотели такого же уюта для своей дочери. В этом видео Лариса рассказывает честное мнение о выборе нашей компании. Без сценариев и постановок, только эмоции и реальный опыт взаимодействия с нашей компанией.
Ирина Смирнова
, д.Ченцы Переславский р-н Ярославской обл.
Хочется сказать большое спасибо всему коллективу " Сямженский лес" за отлично выполненную работу по проектированию, рубке, сборке и монтажу крыши. Все работы были выполнены качественно и точно в срок. Мы будем продолжать дальнейшее сотрудничество по отделке бани и строительству дома. 8-965-267-31-18
Надежда Юрьевна В.
, г.Подольск СНТ Ветеран-2
Приемлемая цена. Смету не завышали. Все работы обговаривают предварительно. Очень высокое качество рубленного дерева и самой сборки.Мастера профессионалы - работают аккуратно, быстро и без лишнего шума и пыли. Ни одного нарекания со стороны соседей. Работой довольны. gorayon13@yandex.ru  8-926-780-48-86  
Андреев Сергей
, Поселок Важский Архангельская область
Выражаем огромную благодарность бригаде строителей под руководством Фатиева Николая (Александр, Игорь и Иван), которые в десятидневный срок возвели дом из профилированного бруса в поселке Важский Архангельской области. Бригада трудилась от рассвета до заката, благо погода способствовала этому. Очень профессиональные и дисциплинированные ребята. Отдельная благодарность руководству компании за взаимопонимание и моментальное решение всех возникающих вопросов. Надеемся в дальнейшем на сотрудничество и будем рекомендовать вас друзьям и знакомым. СПАСИБО! тел. +7 911 309 4244 почта: brodyga@mail.ru
Сергей Танайлов
, Московская область, поселение Клёновское, СНТ Гавриково.
Всем доброго суток! Хочу выразить благодарность коллективу компании Сямженский лес, за проделанную работу по установке домокомплекта из профилированного бруса 190х140 камерной сушки, по доработанному проекту "Любовь" на территории СНТ "Гавриково", г. Москва. Отдельно хочется выразить благодарность: Андрею Белоглазову за понимание и личное участие в процессе строительства; Сергею Поскотинову, за терпение на этапе проектирования; И огромная благодарность бригаде Артема Бешаля, которая своевременно и без контроля, со стороны заказчика, выполнила работы по монтажу домокомплекта. Порадовало человеческое, и в тоже время деловое отношение руководства и работников компании.…
Александр Р.
, деревня Новое Село, Тихвинский район, Ленинградская область.
Всем добрый день! Хотим отметить очень хорошую работу компании ООО "Сямженский Лес". Мы обратились в эту компанию для постройки нам дачного дома из рубленого бревна в д. Новое Село Тихвинского р-на в Лен области, и считаем что мы сделали правильный выбор. Наш заказ был выполнен компанией в согласованные сроки, оперативно и на высоком уровне. В процессе работы было видно что компания настроена на качественную работу. При выборе компании нас заинтересовало то, что данная компания на рынке по строительству домов работает давно, а значит имеет в строительстве накопленный опыт и то, что компания выполняет весь комплекс работ по строительству дома (изготовление и сборка сруба…
Александр Е.
, посёлок Васильевское, Вологодский район, Вологодская область.
Очень качественная работа . Сделано хорошо красиво , очень понравилось. Бригада выполнили всё аккуратно, весь мусор обрезки убрали. Сделали всё отлично и в срок, рекомендую компанию очень понравилось 👍. Отзыв с карточки организации в Яндекс: https://yandex.ru/profile/1613250437
Татьяна Кулакова
, Калужская область, г. Сухиничи
Мечты сбываются!!!Мы с мужем в течение 7 месяцев обращались в разные строительные компании. Просматривая в интернете проекты, звонили, консультировались. Муж при поиске зашёл на страницу Сямженского леса. Дом Скандинавия, то что нам было нужно. В течение еще 6-ти месяцев мы, просматривая разные проекты, возвращались к Сямженскому лесу. В итоге съездили в Вологду. Заключили договор. И это здорово!!! Потому что их подход, организация и в итоге за 2 неделе построенный дом, превзошли все ожидания. Наш участок почти за 1000 км. Калужская область.Спасибо профессионалам Сямженского леса!   Отзыв с карточки организации на Яндекс https://yandex.ru/sprav/1613250437/p/edit/…
Алексей Гусев
, Череповец
Большое спасибо коллективу ООО "Сямженский лес" . На первом этапе с Андреем Белоглазовым качественно доработали проект бани с террасой и пристройкой в 1,5 этажа с учетом наших пожеланий . Затем опытная бригада во главе с Александром воплотила его в жизнь ( размер 6,5м*12,5м. ) Все работы выполнили в срок , материалы качественные , работа кипела , профессионализм налицо , конечный результат оправдал все ожидания ! Готов подтвердить информацию 8-921-252-08-20, gusev.cher@mail.ru
Мария и Алексей К.
, СНТ Зареченские Просторы Можайский р-н Московской области
Добрый день дорогие друзья! Позвольте и нам поделиться с вами переполняющей нас радостью! 26 июля 2017 года мы стали счастливыми обладателями двух этажного дома-бани. ОГРОМНОЕ СПАСИБО и НИЗКИЙ ПОКЛОН Андрею и Игорю, за их работу, за то как они ведут дела и за то, что вернули веру в людей. А теперь, если можно я подробнее расскажу о нашем сотрудничестве. После того, как мы стали жертвой мошенников, враги нам стали мерещиться на каждом углу. Поэтому мы заняли позицию доверяй, но проверяй. Перелопатив просторы интернета, мы остановились на компании «Сямженский лес» потому что, никакой отрицательной информации про эту компанию мы не нашли ВООБЩЕ. Все отзывы реальных клиентов…
Феоктистов Вячеслав Алексеевич
, деревня Жилино Московская область
Всем доброго дня! Хочу кратко поделиться впечатлениями о сотрудничестве с компанией «Сямженский лес» и о строительстве собственного дома. Очень долго выбирал строительную компанию, ездил по северным регионам России, в том числе и по Вологодской области, но как только в интернете изучил информацию о компании «Сямженский лес», решил остановиться на ней. Мошенников в наше время очень много: предлагают одно, а по факту совсем получаешь другое, особенно от производителей Московской области. Но после моего посещения офиса компании, после общения с Андреем Белоглазовым и в особенности после информационной экскурсии с Игорем Белоглазовым по производству , у меня отпали всякие…
Василий Г.
Хочу строить летом 2020 утепленную кухню. Естественно отправляю запрос и свой проект на пересчет во все компании. Кто-то отрабатывает для галочки, абы-бы как, кто-то просит деньги за проект.... НО "Сямженский лес" меня потряс качеством проработки бесплатного проекта , скоростью отклика - ЭТО СУПЕР!!! Еще отправляют ссылку на ютуб с визуализацией твоего эскизного проекта. Не знаю про качество в дереве, но в проектировании - Ребята, Вы реально ЛУЧШИЕ! Екатерине (инженеру проектировщику) - респект! Так держать!
Юрий Тонковский
, коттеджный поселок Родионцево, Вологодский район, Вологодская область.
Выражаю благодарность коллективу компании ООО "Сямженский лес" за профессионализм, порядочность, любовь к своему делу и уважительное отношение к заказчику!Решение о строительстве дома приняли не сразу, так как это хлопотно и затратно, но желание иметь свой дом и участок было огромное!С супругой начали подбирать фирму, которой смогли бы доверить строительство. Читали отзывы, ездили в офисы разных компаний, сравнивали цены на услуги. Думали долго..., Осенью 2020 года выбрали компанию "Сямженский лес", нам бесплатно сделали проект дома, подготовили смету, которая была прозрачна!В начале декабря подписали договор, а 9.04.21 сруб дома был готов к приемке.Все очень понравилось…
Елена Щ.
, деревня Скотное, Всеволожский район, Ленинградская область.
Хотелось бы поставить отметку «Отлично» за работу всего коллектива компании «Сямженский лес». Я долго искала, кто бы нам мог построить деревянный дом в Ленинградской области, обзванивала фирмы. Звонила по Санкт-Петербургу, Ленинградской области, Карелии, Вологодской области. И как только я поговорила пять минут с Михаилом проектировщиком, я поняла, что только этой фирме я могу доверить строительство дома. Михаил-проектировщик профессионал своего дела, знает досконально все тонкости строительства. Проект получился отличный, с учетом наших личных особенностей и пожеланий. Заключили договор, все обязательства по договору выполнены в срок. Видно, что руководители дорожат…
Ирина и Геннадий
, Республика Карелия, Прионежский район, СНТ Урозеро
Ирина и Геннадий — наши заказчики, для которых мы построили дом по проекту «Северное сияние».   История интересная: Ирина и Геннадий живут на Чукотке, а дом мы строили для них в Карелии, куда они планируют переезжать на постоянное место жительства. В этом видео - честное мнением о работе с нашей командой. Смотрите отзыв из первых уст — когда доверие заказчиков оправдывается результатом! Они полностью доверились нам на всех этапах строительства — и вот итог: положительный отзыв и благодарность за проделанную работу. Мы, в свою очередь, и дальше будем помогать и консультировать Ирину и Геннадия на каждом этапе завершения строительства дома.
Марина Никулина
, д. Городок Новгородской области
Осенью 2015 года мы приобрели участок в Новгородской области и весной 2016 задумались о строительстве дома. Очень долго искали в интернете подходящий проект дома из бревна, пока не зашли на сайт ООО «Сямженский Лес». Проект «Ксения» вполне соответствовал нашим пожеланиям, и я отправила письмо.  Мне перезвонил Андрей и предложил съездить в д. Углово к Руслану, где уже установили сруб дома-бани по размерам близкий к нашему проекту. Мы поехали, не уточнив адреса, но сруб нашли сразу, и все сомнения по поводу выбора строителей отпали.  Через неделю, в конце мая мы встретились с Андреем и Игорем и подписали договор на изготовление и доставку сруба, потом подписали…
Алексей и Анастасия Жигулины
, Московская область, Троицкий район, д. Малыгино
Добрый день! С удовольствием делимся своими впечатлениями от работы с ООО"Сямженский Лес". Решившись на строительство дома для своей семьи, понимаешь всю важность, сложность и ответственность предстоящих работ. Пытаешься узнать как можно больше, понять для себя, что нужно, а что нет. На тщательный выбор проекта ушли месяцы, а на выбор подрядчика - полгода. Выбирали из нескольких десятков фирм по многим факторам - по ценам, по отзывам, по объектам. В итоге определили для себя несколько "финалистов" и ездили по построенным ими объектам, смотрели на качество, беседовали с хозяевами построенных домов. Когда настало время ехать на производственную площадку, первыми рванули к…
Сергей Поскотинов
Главный инженер-проектировщик
Звоните, ответим на все вопросы