Top.Mail.Ru

Баня, Ленинградская область, Всеволожский район, деревня Хязельки.

Описание проекта:

Этажность
1 этаж
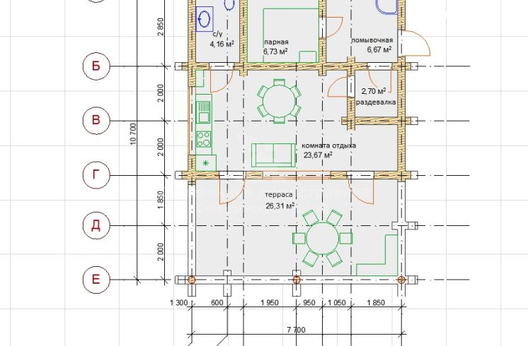
Габариты
7,7х10,7
Общая площадь
82.00 м2
Сроки
50 дней
Хочу такой же
Подробнее о проекте

Материал стен: Рубленное бревно, средний диаметр 30см.

Адрес строительства: Ленинградская область, Всеволожский район, деревня Хязельки.

Дата установки сруба: 13 октября 2019 года

Описание объекта: Ровно месяц назад мы завершили сборку бани в "диком" стиле. Электрорубанок для острожки бревен не использовали, обработку выполнили вручную, с помощью скобеля и топора. Для изготовления сруба в "диком" стиле подобрали бревна неправильной формы, с большими комлями разного диаметра. 

Фундамент на данной объекте- утепленная шведская плита(УШП). В отличие от обычной железобетонной плиты, в УШП уже смонтирован теплый пол и все трубки теплого пола выведены в бойлерную.  Данный факт осложнял сборку, так как трубки нельзя повреждать, иначе все дорогостоящие работы по заливке утепленной шведской плиты пойдут насмарку. Наш основной лесовоз со стрелой 10 метров до стен бойлерной не дотягивался и был риск при подаче бревен повредить коммуникации,  поэтому к сборке мы привлекли наш бортовой камаз- вездеход со стрелой 19 метров. С помощью двух кранов бригада Александра Дьякова за 2 дня сумела собрать сруб и приступить к монтажу кровли.

В качестве кровельного покрытия заказчик( Алексей) выбрал цементно-песчаную черепицу Braas. Для данной черепицы требуется усиленная стропильная система и нестандартная обрешетка из бруска сечением 50х50мм. Мы уже имели опыт работы с данной черепицей, поэтому сложностей в монтаже не возникло, кроме подъема черепицы на крышу. Вес одной штуки составляет  4,5 кг, для кровли 134 м.кв.  потребовалось поднять 1340 штук, что равняется массе 6 тонн. Торцевую черепицу по просьбе заказчика не стали монтировать, так как он не определился какой толщины будет использовать лобовую доску. 

На этот год строительные работы завершены, летом 2020 года можно будет приступать к отделке.

Стоимость строительства:

1)Сруб ( рубленное бревно- диаметр в вершине от 26см )- 690 000 руб. 

2)Пиломатериал- 65 000 руб. 

3)Транспортные расходы(погрузка, доставка, разгрузка) 

-Вологда- 60 000 руб. 

-Москва- 130 000 руб. 

-Санкт-Петербург- 150 000 руб. 

4)Расходные материалы- 45 000 руб. 

5)Сборка сруба и крыши (под цементно- песчаную черепицу)- 190 000 руб.

Работу выполнили
Бригада Александра Дьякова

Рыбин Александр, Дьяков Александр, Дьяков Иван

Специалисты работают с рубленым бревном: подготавливают материал и собирают срубы. Контролируют каждый этап строительства, чтобы получить качественный результат. Самая опытная бригада в нашем коллективе. Мастера поддерживают высокие стандарты качества срубов компании.

Хочу такой же

Оставьте заявку и получите
консультацию специалиста

Если у вас остались вопросы по проекту, Вы можете задать их
нашему инженеру по телефону 8 800 500 62 39 или оставить
заявку на обратный звонок

Похожие проекты

Отзывы клиентов

Валерий Иванович Видяев
, Московская обл. Щелковский р-н ПКИЗ Слава
В долгих поисках в сети Интернет добросовестных изготовителей деревянных бань обнаружил сайт ООО "Сямженский лес". По контактному телефону созвонился с Игорем Белоглазовым. Уточнили условия строительства. Возникло заочное обоюдное доверие и согласие.  Через неделю Игорь вместе с братом Андреем приехали к нам на участок. Еще раз уточнили проектные данные, условия, сроки и стоимость строительства. Был оформлен договор.  После чего сразу же началась рубка сруба. Ход рубки периодически показывался на сайте фирмы.  Сруб и пиломатериалы привезли досрочно. Качество рубки в чашу отличное. Диаметр бревен в основном большего размера, чем было указано в договоре.…
Лола Бурухина
, д. Ручьи Череповецкого района Вологодской области
Дорогие друзья, хочу поделиться впечатлениями о компании и качестве оказанных услуг. Наша семья с прошлго года думала о строительстве бани. Приглядывались к соедним участкам, смотрели на качество построенных домов и бань, у многих были свои недочеты, интересовались и разговаривали с другими строителями, но что-то останавливало. Мы хотели небольшую баньку из бревна. В просторах интернета наткнулись в "Сямженский лес". Почитали отзывы, решила позвонить. Разговаривала с Андреем Белоглазовым, с первых минут он расположил себя к диалогу. Доступно объяснил, что к чему и пригласил приехать посмотреть баню 5 на 5 , которая у них была уже срублена и стояла на строй площадке.…
Татьяна Орехова
, город Чехов Московская область
Доброго всем дня! Хотим поблагодарить ООО"Сямженский лес",особенно Андрея Белоглазова, бригадира Евгения и его бригаду за добросовестное отношение, качественную работу. Работают честно,быстро,профессионально,четко.Начну с самого начала:пообщались в сети,созвонились. Приехали в Сямжу.Нас встретили,накормили-напоили -спать уложили.Утром осмотрели производственную площадку и заключили договор.Первое впечатление-порядочные,хорошие люди,занимающиеся своим делом. Так как мы использовали материнский капитал , Пенсионный Фонд немного нам затянул время,но это оказалось и к лучшему- строительство перенесли на лето.Когда рубили наш дом в Сямже,регулярно присылали нам фото-и видео…
Константин Третьяков
, Архангельская область, Вельский район, город Вельск
Здравствуйте, хочу сказать огромное спасибо компании Сямженский лес, за проделанную работу по проектированию и постройке по индивидуальному проекту частного дома 8,0х8,0, для постоянного проживания, с прирубленным гаражом 4,0х8,0 из профилированного бруса камерной сушки (брус - дом 190х140, гараж 140х140) в г.Вельск, Архангельской области.  Очень понравилось человеческое отношение руководства и работников компании, начиная от первой встречи - обсуждение проекта, до самого строительства - сборки дома, все работы производились точно в срок, не выступая из рамок заключенного договора.  Особо хочу выразить благодарность директору компании Андрею Белоглазову и…
Виталий Тараканов.
, деревня Ульяновка, Вологодская область, Вологодский район.
Заказывал в «Сямженский Лес» и баню, и дом. И полностью доволен! Во-первых, адекватность общения, соблюдение договоренностей и оперативная обратная связь от ребят (для меня, не профессионала, это очень важно). Во-вторых, качество возведенных объектов (не стесняюсь - все соседи мне завидуют), и жена счастлива. В-третьих, уровень бригады (у меня был бригадир Артем) - видно, что опыт колоссальный, возвели быстро, но без спешки. Поэтому, даже не сомневайтесь - только «Сямженский Лес»! Отзыв с карточки организации в яндекс: https://yandex.ru/profile/1613250437
Алексей и Ольга Н.
, ДНП "Вишневый сад-2" Александровский район, Владимирская область
Добрый день! В 2022 году мы с супругой приняли решение строить дом из оцилиндрованного бревна. По рекомендации знакомого обратились в организацию (не буду указывать наименование), выполняющую данные работы. Посмотрели типовые варианты и выбрали подходящий. Из-за внесения изменений пришлось оплатить проект. От предложенного фундамента из трубных свай сразу отказались, т.к. участок имеет наклон. Решили пойти по более дорогому варианту из буронабивных свай с ростверками по периметру и под внутренними стенами, с внутренним утеплением, обратной засыпкой песком и с сооружением плиты. В течении года пока отливался и давал усадку фундамент нам звонили и сообщали об увеличении…
Эдуард и Евгения
, Ленинградская область, Приозерский район, Мельниковское сельское поселение, п. Мельниково
Друзья, рады поделиться с вами искренним отзывом от наших заказчиков, для которых мы построили дом по проекту «Скандинавия» в посёлке Мельниково, Ленинградская область. Эдуард и Евгения давно живут в доме из профилированного бруса и захотели такого же уюта для своей дочери. В этом видео Лариса рассказывает честное мнение о выборе нашей компании. Без сценариев и постановок, только эмоции и реальный опыт взаимодействия с нашей компанией.
Ирина Смирнова
, д.Ченцы Переславский р-н Ярославской обл.
Хочется сказать большое спасибо всему коллективу " Сямженский лес" за отлично выполненную работу по проектированию, рубке, сборке и монтажу крыши. Все работы были выполнены качественно и точно в срок. Мы будем продолжать дальнейшее сотрудничество по отделке бани и строительству дома. 8-965-267-31-18
Надежда Юрьевна В.
, г.Подольск СНТ Ветеран-2
Приемлемая цена. Смету не завышали. Все работы обговаривают предварительно. Очень высокое качество рубленного дерева и самой сборки.Мастера профессионалы - работают аккуратно, быстро и без лишнего шума и пыли. Ни одного нарекания со стороны соседей. Работой довольны. gorayon13@yandex.ru  8-926-780-48-86  
Андреев Сергей
, Поселок Важский Архангельская область
Выражаем огромную благодарность бригаде строителей под руководством Фатиева Николая (Александр, Игорь и Иван), которые в десятидневный срок возвели дом из профилированного бруса в поселке Важский Архангельской области. Бригада трудилась от рассвета до заката, благо погода способствовала этому. Очень профессиональные и дисциплинированные ребята. Отдельная благодарность руководству компании за взаимопонимание и моментальное решение всех возникающих вопросов. Надеемся в дальнейшем на сотрудничество и будем рекомендовать вас друзьям и знакомым. СПАСИБО! тел. +7 911 309 4244 почта: brodyga@mail.ru
Сергей Танайлов
, Московская область, поселение Клёновское, СНТ Гавриково.
Всем доброго суток! Хочу выразить благодарность коллективу компании Сямженский лес, за проделанную работу по установке домокомплекта из профилированного бруса 190х140 камерной сушки, по доработанному проекту "Любовь" на территории СНТ "Гавриково", г. Москва. Отдельно хочется выразить благодарность: Андрею Белоглазову за понимание и личное участие в процессе строительства; Сергею Поскотинову, за терпение на этапе проектирования; И огромная благодарность бригаде Артема Бешаля, которая своевременно и без контроля, со стороны заказчика, выполнила работы по монтажу домокомплекта. Порадовало человеческое, и в тоже время деловое отношение руководства и работников компании.…
Александр Р.
, деревня Новое Село, Тихвинский район, Ленинградская область.
Всем добрый день! Хотим отметить очень хорошую работу компании ООО "Сямженский Лес". Мы обратились в эту компанию для постройки нам дачного дома из рубленого бревна в д. Новое Село Тихвинского р-на в Лен области, и считаем что мы сделали правильный выбор. Наш заказ был выполнен компанией в согласованные сроки, оперативно и на высоком уровне. В процессе работы было видно что компания настроена на качественную работу. При выборе компании нас заинтересовало то, что данная компания на рынке по строительству домов работает давно, а значит имеет в строительстве накопленный опыт и то, что компания выполняет весь комплекс работ по строительству дома (изготовление и сборка сруба…
Александр Е.
, посёлок Васильевское, Вологодский район, Вологодская область.
Очень качественная работа . Сделано хорошо красиво , очень понравилось. Бригада выполнили всё аккуратно, весь мусор обрезки убрали. Сделали всё отлично и в срок, рекомендую компанию очень понравилось 👍. Отзыв с карточки организации в Яндекс: https://yandex.ru/profile/1613250437
Татьяна Кулакова
, Калужская область, г. Сухиничи
Мечты сбываются!!!Мы с мужем в течение 7 месяцев обращались в разные строительные компании. Просматривая в интернете проекты, звонили, консультировались. Муж при поиске зашёл на страницу Сямженского леса. Дом Скандинавия, то что нам было нужно. В течение еще 6-ти месяцев мы, просматривая разные проекты, возвращались к Сямженскому лесу. В итоге съездили в Вологду. Заключили договор. И это здорово!!! Потому что их подход, организация и в итоге за 2 неделе построенный дом, превзошли все ожидания. Наш участок почти за 1000 км. Калужская область.Спасибо профессионалам Сямженского леса!   Отзыв с карточки организации на Яндекс https://yandex.ru/sprav/1613250437/p/edit/…
Алексей Гусев
, Череповец
Большое спасибо коллективу ООО "Сямженский лес" . На первом этапе с Андреем Белоглазовым качественно доработали проект бани с террасой и пристройкой в 1,5 этажа с учетом наших пожеланий . Затем опытная бригада во главе с Александром воплотила его в жизнь ( размер 6,5м*12,5м. ) Все работы выполнили в срок , материалы качественные , работа кипела , профессионализм налицо , конечный результат оправдал все ожидания ! Готов подтвердить информацию 8-921-252-08-20, gusev.cher@mail.ru
Мария и Алексей К.
, СНТ Зареченские Просторы Можайский р-н Московской области
Добрый день дорогие друзья! Позвольте и нам поделиться с вами переполняющей нас радостью! 26 июля 2017 года мы стали счастливыми обладателями двух этажного дома-бани. ОГРОМНОЕ СПАСИБО и НИЗКИЙ ПОКЛОН Андрею и Игорю, за их работу, за то как они ведут дела и за то, что вернули веру в людей. А теперь, если можно я подробнее расскажу о нашем сотрудничестве. После того, как мы стали жертвой мошенников, враги нам стали мерещиться на каждом углу. Поэтому мы заняли позицию доверяй, но проверяй. Перелопатив просторы интернета, мы остановились на компании «Сямженский лес» потому что, никакой отрицательной информации про эту компанию мы не нашли ВООБЩЕ. Все отзывы реальных клиентов…
Феоктистов Вячеслав Алексеевич
, деревня Жилино Московская область
Всем доброго дня! Хочу кратко поделиться впечатлениями о сотрудничестве с компанией «Сямженский лес» и о строительстве собственного дома. Очень долго выбирал строительную компанию, ездил по северным регионам России, в том числе и по Вологодской области, но как только в интернете изучил информацию о компании «Сямженский лес», решил остановиться на ней. Мошенников в наше время очень много: предлагают одно, а по факту совсем получаешь другое, особенно от производителей Московской области. Но после моего посещения офиса компании, после общения с Андреем Белоглазовым и в особенности после информационной экскурсии с Игорем Белоглазовым по производству , у меня отпали всякие…
Василий Г.
Хочу строить летом 2020 утепленную кухню. Естественно отправляю запрос и свой проект на пересчет во все компании. Кто-то отрабатывает для галочки, абы-бы как, кто-то просит деньги за проект.... НО "Сямженский лес" меня потряс качеством проработки бесплатного проекта , скоростью отклика - ЭТО СУПЕР!!! Еще отправляют ссылку на ютуб с визуализацией твоего эскизного проекта. Не знаю про качество в дереве, но в проектировании - Ребята, Вы реально ЛУЧШИЕ! Екатерине (инженеру проектировщику) - респект! Так держать!
Юрий Тонковский
, коттеджный поселок Родионцево, Вологодский район, Вологодская область.
Выражаю благодарность коллективу компании ООО "Сямженский лес" за профессионализм, порядочность, любовь к своему делу и уважительное отношение к заказчику!Решение о строительстве дома приняли не сразу, так как это хлопотно и затратно, но желание иметь свой дом и участок было огромное!С супругой начали подбирать фирму, которой смогли бы доверить строительство. Читали отзывы, ездили в офисы разных компаний, сравнивали цены на услуги. Думали долго..., Осенью 2020 года выбрали компанию "Сямженский лес", нам бесплатно сделали проект дома, подготовили смету, которая была прозрачна!В начале декабря подписали договор, а 9.04.21 сруб дома был готов к приемке.Все очень понравилось…
Елена Щ.
, деревня Скотное, Всеволожский район, Ленинградская область.
Хотелось бы поставить отметку «Отлично» за работу всего коллектива компании «Сямженский лес». Я долго искала, кто бы нам мог построить деревянный дом в Ленинградской области, обзванивала фирмы. Звонила по Санкт-Петербургу, Ленинградской области, Карелии, Вологодской области. И как только я поговорила пять минут с Михаилом проектировщиком, я поняла, что только этой фирме я могу доверить строительство дома. Михаил-проектировщик профессионал своего дела, знает досконально все тонкости строительства. Проект получился отличный, с учетом наших личных особенностей и пожеланий. Заключили договор, все обязательства по договору выполнены в срок. Видно, что руководители дорожат…
Ирина и Геннадий
, Республика Карелия, Прионежский район, СНТ Урозеро
Ирина и Геннадий — наши заказчики, для которых мы построили дом по проекту «Северное сияние».   История интересная: Ирина и Геннадий живут на Чукотке, а дом мы строили для них в Карелии, куда они планируют переезжать на постоянное место жительства. В этом видео - честное мнением о работе с нашей командой. Смотрите отзыв из первых уст — когда доверие заказчиков оправдывается результатом! Они полностью доверились нам на всех этапах строительства — и вот итог: положительный отзыв и благодарность за проделанную работу. Мы, в свою очередь, и дальше будем помогать и консультировать Ирину и Геннадия на каждом этапе завершения строительства дома.
Марина Никулина
, д. Городок Новгородской области
Осенью 2015 года мы приобрели участок в Новгородской области и весной 2016 задумались о строительстве дома. Очень долго искали в интернете подходящий проект дома из бревна, пока не зашли на сайт ООО «Сямженский Лес». Проект «Ксения» вполне соответствовал нашим пожеланиям, и я отправила письмо.  Мне перезвонил Андрей и предложил съездить в д. Углово к Руслану, где уже установили сруб дома-бани по размерам близкий к нашему проекту. Мы поехали, не уточнив адреса, но сруб нашли сразу, и все сомнения по поводу выбора строителей отпали.  Через неделю, в конце мая мы встретились с Андреем и Игорем и подписали договор на изготовление и доставку сруба, потом подписали…
Алексей и Анастасия Жигулины
, Московская область, Троицкий район, д. Малыгино
Добрый день! С удовольствием делимся своими впечатлениями от работы с ООО"Сямженский Лес". Решившись на строительство дома для своей семьи, понимаешь всю важность, сложность и ответственность предстоящих работ. Пытаешься узнать как можно больше, понять для себя, что нужно, а что нет. На тщательный выбор проекта ушли месяцы, а на выбор подрядчика - полгода. Выбирали из нескольких десятков фирм по многим факторам - по ценам, по отзывам, по объектам. В итоге определили для себя несколько "финалистов" и ездили по построенным ими объектам, смотрели на качество, беседовали с хозяевами построенных домов. Когда настало время ехать на производственную площадку, первыми рванули к…
Андрей и Елена Распутины
, город Тотьма, Вологодская область
Андрей оставил для нас видео-отзыв о сотрудничестве с нами, видео вы можете посмотреть по ссылке ниже: https://youtu.be/7FxAvhD_HpE почта: a_rasputin@mail.ru  
Герман и Татьяна Акуловы
, деревня Ивашево, Ногинский район, Московская область.
Всем доброго дня. Хотели бы от всей семьи поблагодарить компанию «Сямженский лес» и лично Андрея и Игоря Белоглазовых за проделанную работу по возведению бани из оцилиндровонного бревна на нашем участке в М.О. Ногинском районе д. Ивашево. Познакомились мы с Андреем и Игорем на выставке в «Крокус Экспо» осенью 2019г. Очень оперативно была предоставлена смета на строительство бани (фундамент по проекту возведен ранее). Были предоставлены на выбор для ознакомления несколько готовых близлежащих объектов, построенных компанией «Сямженский лес». Мы съездили в г. Орехово-Зуево МО на объект, пообщались с заказчиками, получили положительные отзывы и решили о дальнейшем…
Белоусов О.
, ДПК Ольшаники, Выборгский район, Ленинградская область.
Заказывали у компании «Сямженский лес» сруб дома из бревна ручной рубки , диаметр 28-30 см. Первоначально заказ хотели отдать другому подрядчику, но в последний момент передумали и не пожалели. Работы все были выполнены в срок, даже немного с опережением, стоимость зафиксировна в договоре и не менялась, никаких доп. расходов. На протяжении строительства нам направляли фото и видео отчеты с производственной площадки. Сборка дома и монтаж металлочерепицы заняло около двух недель, после стройки все убрали. В течении всего времени были на связи и оперативно решали все вопросы. Качество на высшем уровне! На этом наше сотрудничество не закончено, впереди внутренняя отделка и…
Светлана Ш.
, деревня Княжево, Котласский район, Архангельская область
Здравствуйте. Искали компанию, которая самостоятельно заготавливает лес и производит современный строительный материал, более выгодный по цене в сравнении с клееным брусом. А также займется возведением дома. Остановились на компании ООО «Сямженский лес», так как на официальном сайте максимально подробно и доступно предоставлена вся информация о возможностях этой компании, есть реальные положительные отзывы и очень много отснято видео с построенных объектов. На основании наших эскизов компания разработала индивидуальный проект и построила дом в два этажа из профилированного бруса камерной сушки сечением 190мм х190мм. Хотим выразить огромную благодарность ВСЕМУ коллективу…
Кирилл Шибалов
, Вологодская область, Вологодский район, коттеджный посёлок Облака
Я пол года искал компанию подрядчика для строительства дома из газобетона, пообщался с различными представителями этого направления строительства и, мягко говоря, не был доволен общением. В связи с этим, решил тот же проект реализовать в профилированном брусе, тем более, что у компании "Сямженский лес" есть в готовых проектах именно то что мы хотели - "Скандинавия"!В начале декабря мы в первый раз обсудили проект с Андреем, а уже в конце согласовали проект и подписали договор (в семейную ВТБ с эскроу). Изменения в типовой проект (отказ от постирочной в пользу увеличения двух санузлов, добавление нижнего венца бруса для теплого пола и т.д.) делали бесплатно.10 января было…
Карина Саватьева
, Московская обл, г.Серпухов
Хочу рассказать о своем доме по индивидуальному проекту. Сруб я заказала заблаговременно зимой, из зимнего леса. Бревна были хорошо обработаны и правильно подобраны. Летом бригада мастеров установила дом под крышу. Очень довольна работой. Ребята молодые, энергичные, подгонять не надо. Готова предоставить информацию: c-karina@bk.ru
Марина и Сергей
, д. Дубки Владимирская обл.
Присоединяемся к положительным отзывам о компании Сямженский лес. Мы встречались с Андреем и Игорем глубокой весной, ещё снег лежал на участке. Встретились и ознакомились с подъездом к нашему участку, ребята предложили оценить их работу в Сергиево-Посадском р-не. Мы съездили и нам понравилось, там же и подписали договор. Наш проект дома Михаил был уменьшен, Андрей всегда на связи, все объяснил и предоставил проект в 3D. Нам пошли на встречу в поэтапной оплате, спасибо им за это. Бригада Александра рубили и собирали дом, мы довольны. Сроки все выполнены согласно договору, так же что для нас было немаловажно сумма по договору фиксированная. Желаем процветания и не потерять…

Статьи по этой теме

Что лучше: деревянный дом из бруса или бревна?

Что лучше: дом из бревна или бруса? Ответить на этот вопрос однозначно сложно. Кто любит ровные стены, тому больше подойдет брус. Если же вы предпочитаете круглые стены и атмосферу деревянного дома, вам лучше выбрать рубленое или оцилиндрованное бревно.

Заказать рубленный дом

Если вы хотите заказать строительство рубленного дома, то обратились по адресу. Наша домостроительная компания «Сямженский Лес» уже 30 лет занимается лесозаготовкой и постройкой добротных срубов из северного бревна. Работая на совесть, мы создаем красивые и теплые дома по технологии ручной рубки, помогая каждому получить свой комфортный уютный уголок.