Профилированный брус камерной сушки
8-800-500-62-39 или 8-921-127-55-06 (WhatsApp/Telegram)
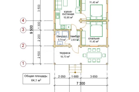
Проект дома из профилированного бруса камерной сушки «Вадим»
Одноэтажный просторный дом 6х7 м из профилированного бруса камерной сушки от производителя – удачный выбор для круглогодичного или сезонного проживания за городом или установки на дачном участке. Общая площадь – 42 м². В доме одна комната с нишей и санузел, крыша скатная, есть терраса. Стены утеплены и обработаны специальными антисептическими составами.

Рассматривая готовые проекты домов из профилированного бруса, проработанные в деталях архитекторами, можно выбрать подходящий вариант и заказать детальную смету. Не нашли подходящий коттедж? Можно внести любые изменения в типовой проект или обсудить строительство по индивидуальному эскизу.


Связаться с представителями компании и обсудить детали сотрудничества можно по контактным телефонам.
По такому проекту построен наш выставочный дом-офис в городе Вологда по адресу: Окружное шоссе д.18 (парковка ТЦ Аксон). Вы всегда можете посетить его и увидеть проект "Вадим" вживую.
В стоимость комплектации «холодный контур» входит
 
				1. Визуализация:
- 3D-моделирование внешнего вида дома в программе House creator
- Планировочные решения в программе House creator
2. Конструктивные решения:
- План фундамента
- Схема обвязки фундамента
- План расположения балок перекрытий
- План кровли
- Порядовки стен (схема кладки)
3. Техническая документация:
- Сводная спецификация деревянных конструкций
- Подробная смета на первый этап строительства “холодный контур”
Все документы разрабатываются профессиональными проектировщиками с опытом работы более 10 лет и соответствуют необходимым строительным нормам и требованиям. При необходимости проект может быть дополнен другими разделами документации по согласованию с заказчиком.
 
				1. Разработка проектной документации и схемы свайного поля с учетом особенностей грунта, конструкции и параметров будущего строения.
2. Транспортировка материалов и спецтехники:
- Доставка железобетонных свай сечением 150х150 мм
- Транспортировка миникопра для монтажа
- Зона обслуживания: в радиусе 300 км от с. Сямжа Вологодской области
3. Подготовительные работы на объекте:
- Совместная с заказчиком разметка осей фундамента
- Определение оптимальной высоты свай относительно уровня земли
4. Монтаж свайного фундамента:
- Забивка железобетонных свай длиной 3000 мм (возможно увеличение до 4000 мм)
- Использование специализированной техники - миникопра
- Контроль качества установки
5. Завершающие работы:
- Установка металлических оголовков размером 200х200 мм
- Антикоррозийная обработка оголовков
Важно: для объектов, расположенных далее 300 км от с. Сямжа, монтаж выполняется силами заказчика.
При этом исполнитель обеспечивает:
- Предоставление подробного плана свайного поля
- Методические рекомендации по монтажу
- Инструкции по приемке выполненных работ
 
				1. Заготовка сырья. Собственная лесозаготовка в селе Сямжа Вологодской области. Использование леса только зимней заготовки хвойных пород (ель и сосна)
2. Обработка древесины:
- Распиловка леса на брус и доски. Выполнение компенсационных пропилов для минимизации трещин
- Сушка в конвективной сушильной камере до влажности 18-20%
- Профильная обработка со всех сторон на медленном режиме для получения гладкой поверхности
3. Подготовка к транспортировке:
- Упаковка деталей в пачки. Покрытие защитной пленкой от УФ-излучения
- Размещение на деревянных поддонах для защиты от контакта с землей
4. Комплектация домокомплекта:
- Обрезной пиломатериал естественной влажности 1-го сорта (подкладочная доска, обвязочный брус для фундамента, балки перекрытия, стропила, контробрешетка, обрешетка, доска на леса, доска для обсадных коробок)
5. Дополнительные материалы:
- Комплектуем домокомплект необходимыми расходниками для сборки: гидроизоляция для фундамента, глухари и пружинные узлы для стяжки венцов, межвенцовый утеплитель шелтер, скользящие крепления для стропил, саморезы, гвозди, бензин, масло и т.д. Все необходимое для качественной сборки стен и кровли.
 
				1. Погрузка домокомплекта на производстве в селе Сямжа Вологодской области
2. Доставка домокомплекта в радиусе 550км от села Сямжа
- осуществляется закрытыми евро фурами или манипулятором с прицепом.
3. Выгрузка домокомплекта на участке заказчика
- осуществляется с помощью крана или манипулятора
4. Организация подъездных путей к участку и фундаменту осуществляется силами заказчика.
- если подъездных путей нет, то разгрузка вручную невозможна, так как детали имеют большой вес.
 
				1. Подготовка основания:
- Монтаж гидроизоляции
- Установка подкладочной доски под первый венец
2. Возведение стен:
- Соединение стен глухарями
- Установка пружинных узлов для стяжки венцов
- Постоянный контроль диагоналей, вертикального уровня, горизонтального уровня
3. Монтаж стропильной системы:
- Установка стропил на скользящие крепления
- Обеспечение правильного крепления
4. Монтаж кровельного пирога:
- Монтаж ветрозащитной мембраны
- Установка контр.обрешетки
- Монтаж обрешетки с правильным шагом под металлочерепицу
5. Монтаж кровельного покрытия:
- Использование металлочерепицы GrandLine
- Покрытие металла: Satin
- Толщина металла: 0,5 мм. Выбор цвета по желанию заказчика
6. Установка кровельных элементов:
- Монтаж капельника
- Установка карнизной планки
- Монтаж торцевых планок
- Установка коньковой планки
- Монтаж вентиляционной ленты от насекомых
7. Контроль качества:
- Фотофиксация всех этапов работ
- Регулярные отчеты заказчику о ходе строительства
Все работы выполняются с соблюдением технологических требований и строительных норм для обеспечения долговечности и надежности конструкции.
 
				1. Монтаж пластиковых окон на монтажную пену:
- Производитель профиля REHAU, толщина рамы 70мм
- Комплектация окон с качественной фурнитурой, москитными сетками, металлическим отливом снаружи
- В окнах использованы двухкамерные стеклопакеты с мультифункцией и энергосбережением
2. Установка входной двери:
- Монтаж металлической двери с терморазрывом
1. Информационное сопровождение:
- Регулярная фото- и видеофиксация процесса строительства, отправка отчетов заказчику
2. Контроль строительных работ:
- Проверка вертикальности стен и опорных столбов
- Контроль уровня межэтажных перекрытий
- Мониторинг состояния и правильности установки: глухарей, пружинного узла, домкратов
3. Контроль качества материалов:
- Проверка на механические повреждения бруса, мониторинг состояния конструкций, контроль качества используемых материалов
4. Безопасность строительства:
- Проверка соблюдения правил пожарной безопасности
- Контроль соблюдения норм охраны труда, безопасных условий работы
Другие проекты деревянных домов и бань
Смотреть все проектыСухой брус камерной сушки
Для того чтобы готовый дом из сухого бруса камерной сушки оставался красивым и теплым много лет, важно грамотно подобрать материал для строительства. Решить этот вопрос быстро и по выгодной стоимости помогут специалисты домостроительной компании «Сямженский лес». Мы занимаемся производством домокомплектов из бруса, гарантируя качество каждой единицы материала.
Как избежать промерзания углов в деревянном доме? Виды соединений: в чашу и в теплый угол
Из какого бы материала вы ни строили дом, существует риск больших теплопотерь в углах. Для того чтобы сделать угол дома из профилированного бруса теплым, специалисты компании «Сямженский лес» применяют два основных способа соединения венцов: в чашу и в теплый угол.
Домокомплекты из бруса от производителя: этапы производства
Построить надежный, крепкий и долговечный дом можно только из качественного материала. Компания «Сямженский лес» заготавливает древесину зимой – рубка деревьев проходит с декабря по март. Такой период выбран неслучайно. В зимние месяцы под воздействием низких температур останавливается сокодвижение, а значит, брус высохнет равномерно и быстро.
 
						 
							 
						 
 
 
 
 
 
                 
                 
                 
 
 
 
             
             
             
             
             
             
             
 
     
    
Отзывы клиентов