Top.Mail.Ru

Ярославская область, город Ярославль.

Описание проекта:

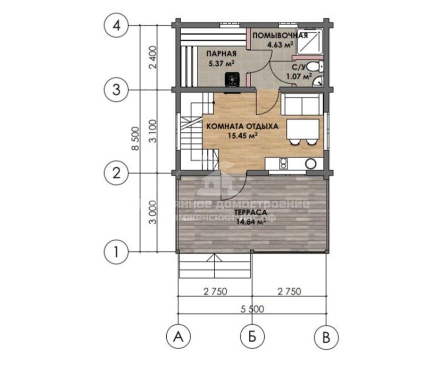
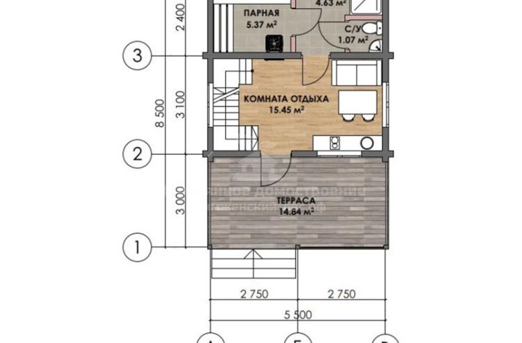
Этажность
2 этажа
Габариты
5,5х8,5
Общая площадь
68.00 м2
Сроки
60 дней
Хочу такой же
Подробнее о проекте

- Адрес строительства: Ярославская область, город Ярославль.
- Дата установки: 25 марта 2026.
- Габариты: 5,5х8,5
- Площадь: 68 кв.м
- Стоимость дом-бани в комплектации “теплый контур”, как на фото (фундамент-ж/б сваи, стены из проф.бруса толщиной 190 мм, металлочерепица GrandLine, утепление перекрытий 250 мм, окна Рехау ) - 3,6 млн рублей. Цена актуальна на 30.03.2026.

Этот дом Владимир строит для родителей. Участок — в черте Ярославль, прямо на берегу река Волга. Место красивое, но с характером: сложные подъездные пути и серьёзный перепад высот. Об этом объекте мы уже рассказывали осенью.

Несмотря на все нюансы, задачу закрыли:
— дом под крышу поставили в феврале
— сделали паузу на изготовление окон
— дождались подходящей погоды для монтажа
— и завершили объект

В основе — проект «Солнечная» из нашего каталога. Вместе с Владимиром и его отцом, Виктором Аркадьевичем, адаптировали его под задачи семьи:
отзеркалили планировку и увеличили террасу на метр.

Отдельно скажем про подход заказчика.
Перед стартом Владимир провёл полноценную проверку: изучил отзывы, финансовые отчёты, проверил компанию и руководителей на наличие долгов и судебных дел. Приезжал к нам в Вологду, лично общался, ездил на объекты к клиентам, которые живут в наших домах уже третий год.

Потому что строил не просто дом — строил для родителей.
А значит, всё должно быть без компромиссов.

Спасибо Владимиру и его семье за доверие. Мы свою часть сделали: качественно и в срок.

Если вы тоже хотите строить без сомнений и с пониманием, за что платите — напишите нам. Покажем реальные объекты, познакомим с клиентами и разложим всё по полочкам.

Хочу такой же

Оставьте заявку и получите
консультацию специалиста

Если у вас остались вопросы по проекту, Вы можете задать их
нашему инженеру по телефону 8 800 500 62 39 или оставить
заявку на обратный звонок

Отзывы клиентов

Адаменко Виктор
, Ярославская обл, Переславский р-н, д.Красногор
Все хорошо! Спасибо! Отделку бани доверю только этим ребятам! Готов подтвердить информацию! тел.: +7-925-277-06-20
Дмитрий Р.
, д.Аграфенино Калужская область
Заказывал через "Сямженский Лес" сруб дома-бани из профилированного бруса камерной сушки 140*190 близ деревни Аграфенино в Калужской области.  Прежде всего хочу присоединиться ко всем позитивным отзывам про эту компанию - все написано верно и справедливо.  Вкратце их можно охарактеризовать так - профессиональная компания, учитывающая все пожелания клиентов и делающая свою работу качественно и в запланированные сроки. Работники самостоятельные и надежные, внимательны к мелочам.  На начальном этапе выбирал среди многих компаний, отметая тех, кто делает проект и смету по заданным мной параметрам "на коленке", а также не реагирует на твои замечания и просьбы.…
Дмитрий и Наталья Шорины
, Владимирская область, Александровский район, коттеджный поселок Тургенево
Идея и дизайн бани с комнатой отдыха возникла у нас довольно давно, за это время мы успели основательно ознакомиться с предложениями на рынке, но в итоге наш выбор пал на компанию "Сямженский лес", в том числе благодаря большому числу проектов представленных на их сайте. Собственно с этим выбором мы не ошиблись, остались довольны всеми этапами нашего сотрудничества. По нашему дизайну проектировщик компании прислал нам смету и изготовил проект. За 3-4 недели был изготовлен сруб, при этом постоянно получали подробные отчеты по процессу изготовления. Еще за 3 дня баню собрали на нашем участке. В результате баня получилась ровно такой, как мы ее представляли. Если думаете о…
Алексей
, Дом, Московская область, Ногинский район, деревня Ельня
Доброго времени суток. Пишу свой отзыв о компании ООО "Сямженский лес" спустя почти пол года после окончания строительства, дабы эйфория в первые месяцы после постройки дома, вряд ли позволила бы дать объективную оценку.В итоге,эйфория прошла,а хорошие впечатления от работы этой компании остались.  В январе 2018 года начали поиск фирмы для постройки дома. Для меня этот этап строительства оказался самым напряжённым и времязатратным, так как в Москве и области очень много фирм предлагают свои услуги. В связи с таким изобилием приходит и осознание того, что добросовестных и заслуживающих внимания среди них не так уж и много. Изучив рекомендации по выбору строительной…
Борис и Татьяна С.
, село Константиново, Рязанская область.
Хочу поблагодарить коллектив компании "Сямженский лес" за профессионализм, трудолюбие, любовь к своему делу и своим заказчикам. Мы обратились в эту компанию осенью 2019 с готовым проектом и уже построенным фундаментом. Это была не первая строительная фирма, в которую мы обращались. Предыдущая компания оказалась не добросовестной и мы остались без дома. Случайно увидев рекламу "Сямженского леса" в интернете, проекты и уже построенные дома, я заинтересовалась. Вся информация про саму компанию "Сямженский лес" и про каждого сотрудника была в открытом доступе. Очень оперативно ознакомившись с нашим проектом и учитывая пожелания, нам была представлена смета, которая нас…
Сергей С.
, деревня Солодово, Московская область, Волоколамский городской округ
Долго выбирал компанию, которая изготовит и поставит сруб из бруса. Нашел компанию через Интернет, понравилось, что полный отчет с видео и фото всех этапов, от распиловки, сушки и упаковки домокомплекта. Много положительных отзывов о компании с номерами телефонов, фото и адресами установленных домов. Из отзывов можно понять, что сделаны они реальными людьми по реальным объектам. После посещения строящегося объекта и общения с бригадиром Артёмом сомнений не осталось, решил строить с компанией Сямженский лес и с бригадой Артема. Коллектив компании молодые ребята, все знают своё дело, приятные в общении. Михаил выполнил эскизный проект, подсказал какие-то моменты по…
Дмитрий и Марина
, деревня Тамбицы, Медвежьегорский район, республика Карелия
Видеоотзыв от Дмитрия и Марины, наших заказчиков из Карелии, деревня Тамбицы. Сруб установили в далеком 2018 году, после этого заказчики взяли паузу на 5 лет. В прошлом году сделали отделку снаружи и внутри, выполнили монтаж коммуникаций. Впереди финишная прямая — чистовая внутренняя отделка осенью 2025 года.
Адаменко Виктор
, Ярославская обл, Переславский р-н, д.Красногор
Все хорошо!!!  Готов подтвердить информацию +7-925-277-06-20
Андрей Володькин
, Клин Московской области
В середине лета 2016 года встал вопрос о постройке бани на участке,и начались поиски компании, к которой мог бы я обратиться.Но рынок сейчас настолько обширен, что это затянулось,до того момента пока не наткнулся на сайт "Сямженский лес",и начала вырисовываться полная картина. На сайте почитал отзывы,и позвонил. Андрей доступным языком все объяснил,рассказал,и что не мало важно, помог с проектом.После переговоров и обсуждений, Андрей пригласил в гости непосредственно посмотреть, как происходит заготовка леса и весь процесс вцелом.Это не маловажно многим,кто еще не доверяет людям.Встретили как пологается) горячим обедом и чаем.Посмотрев все,заключили договор и ,обсудив…
Наталья Егорова
, Московская область, Дмитровский район, деревня Филимоново
Выбор компании «Сямженский Лес» для строительства бани был для нашей семьи не случайным, уже имелся положительный опыт сотрудничества с этой компанией у коллеги по работе и соседей. На всех этапах строительства бани (бесплатное проектирование индивидуального проекта, заключение договора, доставка, сборка домокомплекта, монтаж кровли) мы имели дело с высококомпетентными сотрудниками, знающими свое дело на «5+». результатом остались довольны, ждем 2 месяца, чтобы можно было начать внутреннюю отделку, также с бригадой компании "Сямженский Лес".  8-917-515-03-61 Наталья почта: egorova_nata@inbox.ru  
Поликарпов Вадим
, Ленинградская область, Всеволожский район, КП Солнечная Долина
Крайне благодарен каждому сотруднику компании Сямженский лес за профессионализм, качество и оперативность.  Более года выбирали компанию, которая подготовит проект и выполнит строительство дома. На первоначальном этапе (фундаменте) решили обратиться к иной профильной компании и подготовить проект дома, но получили не полноценный результат (фундамент отличный, а проект дома имеет ряд ошибок и не обоснованных решений).  Приятно были удивлены полученному предложению специалистов компании Сямженский лес, которые оперативно подготовили отредактированный проект и выполнили 3D моделирование без какой-либо оплаты.  Этапы строительства дома удивили еще больше.…
Алексей и Ольга Д.
, Ленинградская область, Кингисеппский район, деревня Среднее Райково.
Хочу выразить благодарность коллективу компании "Сямженский лес", за хорошо выполненную работу по установке домокомплекта из профилированного бруса 190х140 камерной сушки, в деревне Среднее Райково, Кингисеппского района Ленинградской обл. Отдельно хочется выразить благодарность: Андрею Белоглазову, Сергею Поскотинову и бригаде Артема Бешеля, которая качественно и в срок выполнила работы по монтажу домокомплекта. Хочется подчеркнуть человеческое, и в тоже время деловое отношение руководства и работников компании при выполнении всех этапов работ. Прекрасно поставлена работа по проектированию и доставке домокомплекта. На сайте выложены реальные цены, а не рекламные "…
Юлия С.
, село Тарутино, Жуковский район, Калужская область
Строила баню в июле 23г., все прошло замечательно, рубленное бревно, построено по проекту, все отклонения со мной согласовывали. Когда выбирала компанию, пугало очень большое количество положительных отзывов, сразу кажется, что все куплено. На самом деле реальные отзывы, реальные люди, которые без ума от своих домов. Ездила смотрела построенные дома, сама выбрала их на карте и общалась с людьми. Минус наверно только один, стройматериалы берут с запасом и цены на доски - процентов на 10-20 выше рынка. Ну всегда есть возможность заказать это самим. По рубке - все отлично, вместо 24 диаметра в договоре - по факту у меня 28-30, для меня это плюс, но вдруг для кого-то это…
Валерий и Анна
, Вологодская область, Сокольский район, деревня Большой Кривец.
Для наших заказчиков, Валерия и Анны, построили дом по проекту «Марина» в 2023. Заказчики остались довольны и поделились с нами видео отзывом.Идея построить небольшой дом на берегу реки Сухоны пришла семейной паре достаточно давно. Анна и Валерий выбрали проект «Марина» из нашего каталога проектов. Фундамент заказчик залил самостоятельно, выбрав мелкозаглубленную ленту. Как только раствор набрал нужную прочность, мы привезли готовый домокомплект и приступили к сборке. Весь процесс занял 2 недели, включая покрытие крыши металлочерепицей и установку обсадных коробок на проемы.  Приглашаем вас в нашу выставочную баню, где мы всегда готовы обсудить все вопросы…
Леонид Кожокарь
, Тверская обл, г. Бологое
Сруб заказал в июле 2015 года.Договор заключили через интернет.Сруб срубили и привезли через месяц.Сруб собирал сам,порадовало качество рубки.Бревна точно подобраны по диаметру.Спасибо за работу.Готов предоставить информацию dreammakers@mail.ru
Елена Соболева
, Московская обл. Можайский район СНТ Крылатки
Дорогие друзья! Хочу поделиться с вами нашей маленькой историей. У нас очень большая семья и в ней было принято решение о строительстве на даче в Можайском районе новой летней кухни. Мы очень долго и тщательно искали на просторах интернета строительную компанию, которая бы смогла осуществить нашу мечту. После долгих поисков случайно наткнулись на сайт строительной компании Сямженский лес. Тут и остановились, чему несказанно рады! Предварительный проект нашего дома был у нас готов. Однако, при детальном рассмотрении специалистами компании в нем были выявлены некоторые недочеты и проект немного изменили и улучшили. Огромную благодарность хочется выразить Андрею, который не…
Наталья и Александр Симаковы
, Ивановская область, город Тейково
Наша история поиска строительной компании и строительства дома из рубленного бревна практически созвучна со многими положительными отзывами клиентов, партнёров или друзей компании ООО "Сямженский лес" написанными ранее. Поэтому историю трёхлетнего поиска строительной компании мы пропустим, ведь главное было найти и не разочароваться, не обмануться. И нам повезло мы стали клиентами и надеюсь друзьями компании ООО "Сямженский лес". В данном отзыве хочется выразить огромную признательность и сказать спасибо руководителю компании ООО "Сямженский лес" Андрею Белоглазову за проделанную работу по проектированию дома, организацию всего процесса изготовления и сборки сруба (дома…
Михайлов Алексей
, Московская область, Дмитровский район, деревня Редькино
РЕБЯТА, СПАСИБО БОЛЬШОЕ. Все четко, быстро, качественно! РЕКОМЕНДУЮ!!!!! mikhaylov.lesha@gmail.com
Александр Бирюков
, город Полярные Зори, Мурманская область.
Компания ООО «Сямженский лес» выполнила строительство дома в Мурманской области в г.Полярные Зори. Хотелось отметить наивысшее качество материала, профессионализм бригады по сборке и качество сборки, соблюдение сроков изготовления домокомплекта, доставки и сборки. Огромное спасибо компании. Буду заказывать баню;) Отзыв с https://yandex.ru/profile/1613250437
Елена Х.
, деревня Логиново, Павлово-Посадский городской округ, Московская область.
Построили большой терем в Сентябре 2023г. Бревно рубленое, отличного качества, дом смонтировали за неделю! Все остатки аккуратно сложили, опилки собрали и все за собой в вагончике убрали. Спасибо! На дом смотрю и Душа поет!!! Отзыв с карточки организации в Яндекс: https://yandex.ru/profile/1613250437
Алексей и Александра
, Московская область, посёлок Шаховская.
"Мы несколько лет искали компанию, которая построит для нас дом. Спрашивали у знакомых, ходили на выставки деревянного домостроения, но всегда было что-то не то.В интернете я увидела сайт компании Сямженский лес и решила позвонить…. После общения с инженером-проектировщиком Михаилом у меня не осталось сомнения, что Сямженский лес - именно та компания, которую мы искали.Михаил всегда был на связи, оперативно отвечал на вопросы, предлагал лучшие решения, очень компетентный специалист. Хочу поблагодарить его за проявленное терпение и индивидуальный подход. Михаил - настоящий эксперт!Проект согласован 👌, все этапы прозрачны и понятны. В январе нам на участок привезли…
Владимир Михайлович Чикунов
, Владимирская обл, Петушинский р-н, СНТ Восход
Заказ по доставке, установке сруба и материалов был выполнен качественно и в срок. Работа бригады оценивается на отлично, работали эффективно и качетсвенно. Качество постановленного сруба бани-отличное. Рекомендую ООО "Сямженский лес" для будующих заказчиков. тел. 8-985-338-99-64  novokosino88@mail.ru
Виталий Т.
, Вологодская область, Вологодский район, д. Ульяновка
"Всплыл как подснежник" - решение о постройке бани созрело моментально, в конце мая. Переживал, что у подрядчиков и леса не будет, и времени. Закинул проект для расчетов в несколько компаний Вологодской области. Что отличило "Сямженский Лес": 1) Отзывчивость и ответственный подход братьев Андрея и Игоря - тут и множество советов (и по фундаменту, и по покраске, и по отделке), и 24 часа на связи, и оперативность ответов. 2) Профессиональный подход, отличающийся от подхода других подрядчиков - оперативно был готов и проект и крайне подробная смета. Корректив в проект вносил много, да и материал выбирал по "цена - качество" - Андрей терпеливо откликался на любые изменения.…
Юрий и Елена Баруздины
, д. Палкино Грязовецкого района Вологодской области
Благодарим компанию "Сямженский лес" за качественную, аккуратную и оперативную работу по изготовлению и сборке сруба. Очень понравилась открытость и быстрое решение всех возникающих в процессе проектирования и строительства вопросов.Отдельная благодарность бригаде Николая, которая приятно удивила не только нас, заказчиков, но и соседей своей работоспособностью и чистоплотностью. Готовы рекомендовать компанию "Сямженский лес" другим потенциальным заказчикам. Молодцы! Ссылка на страницу в Вконтакте: https://vk.com/id19459277
Рудольф
, Ленинградская область, Всеволжский район, КП Оранжерейка
Присоединяюсь ко всем положительным отзывам. Профессиональное отношение к делу абсолютно всех сотрудников. Ведение проекта, сроки, качество сборки все на очень высоком уровне.  Проект вела Екатерина Шилова, строила бригада Александра Дьякова --- спасибо за вашу работу! 89213146244@yandex.ru
Дмитрий и Марина С.
, деревня Тамбицы, Медвежьегорский район, республика Карелия.
Два года назад мы заключили договор с Компанией "Сямженский лес" на строительство дома в деревне Тамбицы Медвежьегорского района Карелии. В том же 2018 году мастерами Компании был установлен сруб под усадку. В ноябре этого года пришло время очередного этапа - монтаж кровли. С невероятной скоростью, всего за 4 дня, бригада Александра Дьякова смонтировала кровлю из металлочерепицы площадью более 250 кв. метров со сложным профилем. С отменным качеством, отмеченным не только нами, но и местными жителями, совсем не чуждыми плотницкому делу. В это же время вошли работы по демонтажу временной кровли, монтажу и демонтажу лесов, тщательной уборке мусора. И даже сходить на рыбалку…
Сергей К.
, деревня Алешино, Пушкинский городской округ, Московская область
Всем добрый день ! Парни просто волшебники, принял работу 14.11.23. Сделали за 2 недели, думаю, было бы быстрее, но погода внесла коррективы. Спасибо, им огромное, Теперь, если что по дереву, это в Сямженский лес. Парни Андрей, Михаил, Денис, Денис, Александр - вы настоящие профессионалы!!! Отзыв с карточки организации в Яндекс: https://yandex.ru/profile/1613250437
Юрий и Виктория
, Вологодская область, Вологодский район, коттеджный поселок Родионцево.
В 2021 году построили для Юрия и его семьи дом из оцилиндрованного бревна диаметром 240 мм северного леса. Заказчики остались довольны и поделились с нами видеоотзывом о проделанной работе. Сборку сруба мы завершили 9 апреля 2021 года, крышу покрыли металлочерепицей «каскад», которую в народе называют «шоколадной плиткой». По запросу заказчика, смонтировали флюгер с аистами. В доме, на крыше которого свил гнездо аист, будут царить согласие и процветание, звучать счастливый детский смех.  
Андрей Стовба
, Московская обл. Сергиево-Посадский район д.Шапилово
В октябре 2015 года принял решение построить небольшой сруб на загородном участке. Выбор подрядчика дело серьезное - определялся долго, изучил кучу материала, но все равно никак не мог определиться, пока не увидел как на соседнем участке возводят красавец-сруб. Увидев процес, пощупав материалы сомнения отпали - если и строиться, то с Сямжой. Большое спасибо ребятам из ООО "Сямженский лес" за качественно выполненную работу. Все на совесть, из лучших материалов. Большое спасибо! Рассчитываю на дальнейшее сотрудничество. 8 903 617 49 28 stovba75@mail.ru
Сергей и Александра К.
, Московская обл. Коломенский район, с. Андреевское
В 2016 году решили воплотить мечту по постройке в деревне (с. Андреевское Коломенского р-на МО) рубленую баньку. В итоге, после долгих поисков, размышлений и прикидок проект изменился - остановились на проекте бани с мансардой в 1,5 этажа. Далее начались долгие поиски подрядчиков, сравнения цен и качества. Поиски увенчались успехом - остановились на "Сямжеском лесе" и проекте "Гермес". С самого начала общения (это был Андрей Белоглазов) на нас произвело позитивное впечатление клиентоориентированность, ответственность и профессиональность Андрея, оперативная отработка наших предложений, замечаний и изменений к проекту. Все сроки соблюдаются, все договоренности выполняются…

Статьи по этой теме

Домокомплект из профилированного бруса

Изготовление домокомплекта из профилированного бруса — ответственный этап, определяющий надежность и важные характеристики дома: теплоизоляция, внешний вид, долговечность. Именно поэтому на производстве компании «Сямженский лес» работают только опытные мастера, которые ответственно подходят к процессу изготовления и сборки домокомплектов по типовым и индивидуальным проектам.

Три фактора, которые нужно учесть при строительстве и эксплуатации дачного дома из бруса

Для того чтобы построить дачный дом из бруса, который послужит и вам, и вашим детям, нужно обратить внимание на сечение бруса и технологию, продумать проект. Компания «Сямженский лес» более 20 лет строит деревянные дома из бруса, поэтому не понаслышке знает, как делать это качественно и надежно.

Дом из бруса: плюсы и минусы

В этой статье мастера домостроительной компании «Сямженский лес» расскажут о плюсах и минусах домов из бруса, с которыми знакомы не понаслышке.