Top.Mail.Ru

Строительный год 2026 для нас начался с проверки на прочность.

09.02.2026

Строительный год 2026 для нас начался с проверки на прочность.

Не большим домом и не сложным объектом — а небольшой баней 6х9 из профилированного бруса в Московской области.

На первый взгляд всё просто:
лаконичная форма, невысокие стены, минимальная комплектация.

Но именно такие объекты лучше всего показывают, как компания работает на самом деле, без скидок на масштаб.

Заказчица Екатерина из Москвы выбирала подрядчика вдумчиво и долго. Всё лето — поездки по производствам, выезды на строящиеся объекты, осмотры в сопровождении технадзора. Не на словах, а по факту: качество бруса, сборки, отношение к деталям.

Решающим стал выезд прошлым летом на объект в Ногинском районе, где работала бригада Евгения Муравьёва.

Посмотрели дом вживую, задали вопросы, проверили узлы — и выбор был сделан. Строиться — с нами и именно с этой бригадой.
Для стен выбрали максимальное сечение профилированного бруса — 190х190 мм.

Домокомплект доставили и выгрузили ещё до праздников.
А с 12 января началась сборка. Хотя, если честно, сначала была не сборка, а подготовка участка:
— два дня расчистки снега (в Подмосковье его оказалось больше, чем в Вологде);
— ручной перенос целой фуры материалов к фундаменту — подъездов для тяжёлой техники нет;
— аккуратная подрезка веток рядом стоящих сосен, каждый спил — только после согласования с технадзором. Задача — сохранить деревья и при этом получить пространство для работы.

Когда участок был готов, процесс пошёл быстрее.
Но добавилась ещё одна особенность — технадзор заказчика решил внести изменения в проект уже после изготовления и доставки домокомплекта.

Мы спокойно к этому отнеслись.
С технадзорами мы работаем давно: строим по проекту, по нормативам, все узлы согласовываем заранее. В этом случае потребовались дополнительные согласования и переработка проекта — меняли высоты проёмов, расположение и узлы крепления балок.

Это заняло время, но для нас важнее результат, чем скорость «любой ценой».
Итог:
— заказчица Екатерина довольна,
— технадзор доволен,
— мы — тоже.

За три недели бригада Евгения Муравьёва полностью справилась с объектом.

А отдельное эстетическое удовольствие — крыша с металлическим кликфальцем глубокого зелёного цвета. На фоне высоких сосен она смотрится так, будто была здесь всегда.
Иногда именно небольшие проекты лучше всего показывают, как мы строим и зачем нам это качество.

Подробнее о проекте:
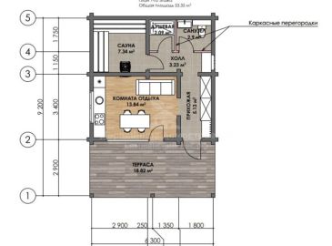
- Адрес строительства: Московская область, Наро-Фоминский район, д. Алабино.
- Дата установки: 09 февраля 2026.
- Габариты: 6х9
- Площадь: 53 кв.м
- Стоимость бани в комплектации, как на фото (фундамент-ж/б плита-заказчик залил самостоятельно, стены из проф.бруса толщиной 190мм, кровля кликфальц GrandLine, обсадные коробки для окон и дверей) - 2,4 млн рублей. Цена актуальна на 09.02.2025.