Top.Mail.Ru

Строим дом по арктической ипотеке 2% в Мурманской области!

13.10.2025

Строим дом по арктической ипотеке 2% в Мурманской области!

 

Бригада Александра Дьякова преодолела 1400 километров и прибыла в Мончегорск.

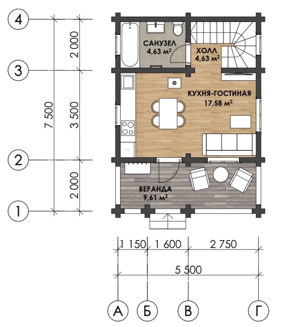
 Фуру с материалами успешно выгрузили — заказчик заранее подготовил свайный фундамент, и мы начинаем сборку компактного дома 5,5×7,5 м.

 

Световой день на Севере уже короткий, поэтому устанавливаем мощные прожекторы, чтобы завершить сборку вовремя. Дом возводим в комплектации «тёплый контур» — с утеплением перекрытий, установкой окон и крышей из металлочерепицы.

 

Проект реализуется с использованием арктической ипотеки под 2% и эскроу-счёта — надёжно, выгодно и доступно для жителей северных регионов.

 

Свяжитесь с нами — и мы расскажем, как начать строительство вашего дома по арктической ипотеке 2%!

- Звоните/пишите нам в WhatsApp/ Telegram +7-921-125-82-40 

- Звоните по бесплатному телефону 8-800-500-62-39

 

Мы поможем с оформлением ипотеки, подбором проекта и строительством вашего будущего дома на Севере!