Top.Mail.Ru

Пришло время сдавать зимние объекты и рассказывать их истории.

06.04.2026

Еще один дом сдан.

Со стороны может показаться, что мы строим по дому в неделю. Но за каждым таким объектом — не спринт, а полгода системной работы команды и заказчика: от первого звонка до передачи ключей. Всю зиму мы не «на печи сидели» — строили. А теперь пришло время сдавать зимние объекты и рассказывать их истории.

Эти 6 месяцев пролетают быстро, но внутри — ежедневная работа:

— 1 месяц — вместе с заказчиком разработали проект
— 2 месяца — сделали фундамент, изготовили домокомплект, заранее заказали окна, кровлю, утеплитель и все расходники, доставили всё на участок
— 2 месяца — собрали дом, установили окна, утеплили перекрытия
— 1 месяц — регистрация дома, подготовка документов и раскрытие эскроу-счета (если строительство в ипотеку)

Заказчик Андрей с семьей живут в Архангельской области, а дом строили в поселке Васильевское — туда они скоро переедут. Почти весь процесс прошел дистанционно: встречались всего дважды — на подписании договора и на сдаче дома.

Чтобы не было тревоги за стройку, каждую неделю отправляли фото и видеоотчеты, фиксировали скрытые работы и установили камеры видеонаблюдения на участке. Поэтому Андрей видел весь процесс и спокойно наблюдал, как растет их дом.

По комплектации: формально это не «тёплый контур». По просьбе заказчика утеплили кровлю и потолки, а по полу сделали самое сложное — подготовили платформу: ветрозащитная мембрана, сетка от грызунов, балки. Теперь не нужно лезть под фундамент — останется уложить утеплитель между балок и проклеить пароизоляцию.

Дом сдан — двигаемся дальше.
Уже на следующей неделе покажем новый объект — в Сокольском районе Вологодской области.

Солнце выходит, и на стройках становится жарко — и в прямом, и в переносном смысле.

 

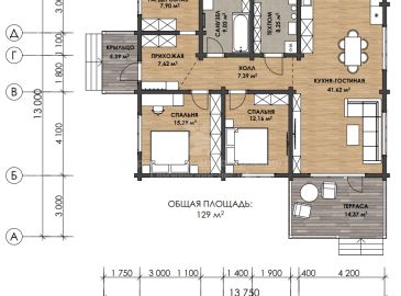
Подробнее о проекте:
- Адрес строительства: Вологодская область, Вологодский муниципальный округ, поселок Васильевское.
- Дата установки: 02 апреля 2026.
- Габариты: 13х14

- Площадь: 129 кв.м
- Стоимость дома в комплектации, как на фото (фундамент-ж/б сваи, стены из проф.бруса толщиной 190 мм, металлочерепица GrandLine, утепление потолка 250 мм, окна Veka) - 6,9 млн рублей. Цена актуальна на 06.04.2026.