Top.Mail.Ru

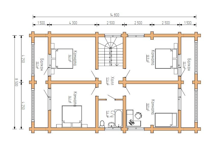
Начинаем рубить дом 14,8х15,5 из рубленного бревна для Кирилла в с. Знаменское Владимирской области

05.04.2017

1) Дом рубим по индивидуальному проекту Заказчика.

2) Общая площадь дома составляет 350 м.кв.

3)Материал стен- Рубленное бревно.Диаметр бревна 260-300мм