Top.Mail.Ru

Когда стройка — это не про «красиво на картинке».

16.02.2026

Иногда стройка — это не про «красиво на картинке».
Это про ветер, минусовую температуру и ответственность за тёплый контур.

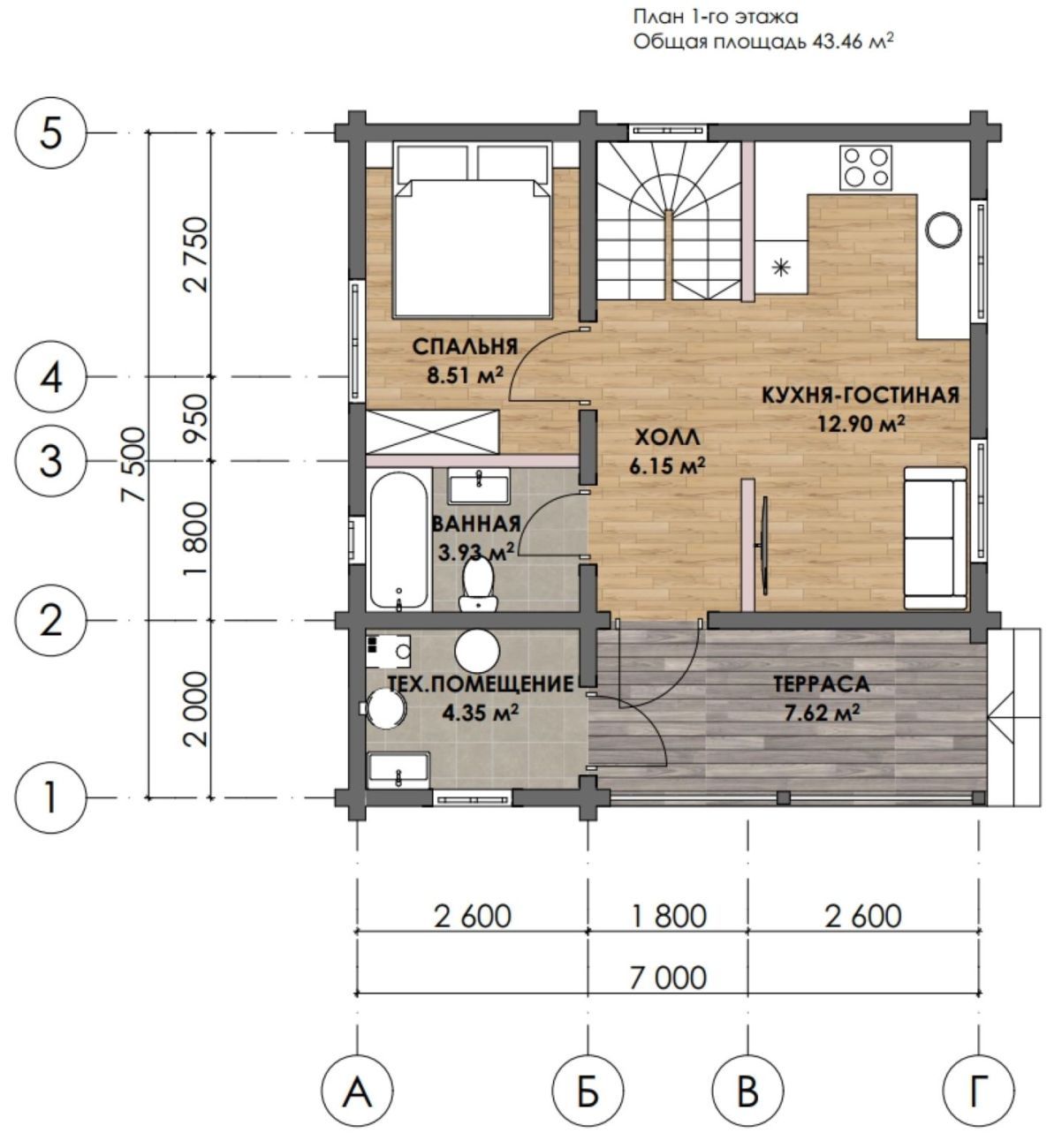
В г. Коряжма Архангельской области мы построили двухэтажный дом 7х7,5 из профилированного бруса.
За основу взяли наш проект «Весенний» и доработали его под задачи заказчика.

Дом реализован через эскроу-счёт и семейную ипотеку 6% от Сбера — с понятной финансовой моделью и безопасными расчётами.

Срок строительства — 3 недели.
Бригада Александра Дьякова работала в холодную и ветреную погоду, но задачу выполнила: дом сдан в тёплом контуре.

Что важно по конструктиву:

— Перекрытия утеплены на 250 мм каменной ватой: 200 мм по балкам + 50 мм перекрёстное утепление.
— Использовали сухие строганные балки. Пока не было кровли — укрывали плёнкой и делали сплошной настил из досок, чтобы защитить конструкцию от снега.
— Окна устанавливали на морозостойкую пену.
— В цоколе смонтировали металлическую сетку от грызунов сразу при установке обвязочного бруса. Это трудоёмко, но позволяет уложить мембрану и сетку единым контуром без лишних стыков — надёжность закладывается не на фасаде, а в перекрытиях.

Отдельно — про взаимодействие.

Заказчик Александр сам работает в строительстве. Он регулярно присутствовал на объекте, контролировал процесс. Для нас это норма: мы не «прячем» скрытые работы и спокойно показываем каждый этап.

Более того, понимая условия работы в холодный период, Александр снял для бригады квартиру, чтобы ребята могли восстановиться после смены.
Когда заказчик и подрядчик находятся по одну сторону задачи — результат всегда сильнее.

Этот дом — не самый большой.
Но он показательный: по организации, по конструктиву и по тому, как должна выстраиваться стройка, если цель — качество, а не просто «сдать объект».

 

Подробнее о проекте:

- Адрес строительства: Архангельская область, г. Коряжма

- Дата установки: 13 февраля 2026.

- Габариты: 7х7,5

- Площадь: 75 кв.м

- Стоимость дома в комплектации теплый контур, как на фото (фундамент - ж/б сваи, стены из проф.бруса толщиной 190 мм, металлочерепица GrandLine, окна Рехау, утепление пола и кровли 250мм) - 4,7 млн рублей. Цена актуальна на 16.02.2026

 

Для консультации по вопросу строительства:

- Звоните/пишите в Max +7-921-125-82-40

- Звоните по бесплатному телефону 8-800-500-62-39