Top.Mail.Ru

Индивидуальный дом из бруса по мотивам «Шале»: кейс реализации

20.04.2026

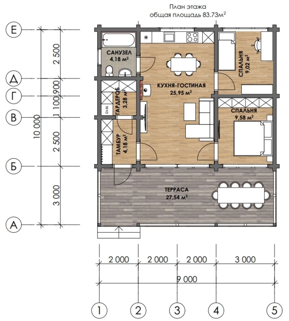
Перед вами — индивидуальный проект из профилированного бруса, который мы разработали вместе с Сергеем и Ксенией. За основу взяли «Шале» из нашего каталога, но аккуратно адаптировали под реальную жизнь заказчиков:
террасу увели под общую крышу, добавили вторую спальню, предусмотрели отдельное место под хранение и все коммуникации. В итоге получился не просто дом, а продуманное пространство без лишнего и случайного.

Отдельное удовольствие — такие проекты с вовлечёнными заказчиками. В этот раз Сергей не только принимал дом, но и стал оператором в обзоре, а Андрей Белоглазов провёл полноценную экскурсию по объекту. Когда смотришь на свой дом через камеру — начинаешь замечать детали, которые в обычный момент ускользают. Это всегда усиливает ощущение «дом готов».

Дом реализован с использованием семейной ипотеки под 6% и материнского капитала в качестве первоначального взноса. И да — даже компактные дома подходят под такие условия, если всё грамотно спланировано.

По строительству:
бригада Александра Дьякова уложилась в 3 недели. За это время — сваи, коробка, кровля из металлочерепицы, окна, входная дверь, утепление пола и потолка (250 мм), плюс подготовка каналов под скрытую электрику по запросу заказчика. Сдали в тёплом контуре — дальше регистрация и раскрытие эскроу.

Подробнее о проекте:
- Адрес строительства: Вологодская область, Вологодский муниципальный округ, село Неверовское.
- Дата установки: 15 апреля 2026.
- Габариты: 9х10
- Площадь: 83 кв.м
- Стоимость дома в комплектации “теплый контур”, как на фото (фундамент-ж/б сваи, стены из проф.бруса толщиной 190 мм, металлочерепица GrandLine, утепление пола и потолка 250 мм, окна Rehau) - 5,2 млн рублей. Цена актуальна на 20.04.2026.

Для консультации по вопросу строительства:
- Звоните/пишите в Макс +7-921-125-82-40
- Звоните по бесплатному телефону 8-800-500-62-39