Top.Mail.Ru

Дом по арктической ипотеке в Мурманской области: из Вологды в Мончегорск за 15 дней.

27.10.2025

Дом по арктической ипотеке в Мурманской области: из Вологды в Мончегорск за 15 дней.

Завершили сборку дома 5,5×7,5 м в городе Мончегорск по программе арктической ипотеки 2% от Сбера. Дом построен в комплектации «тёплый контур» — с утеплением перекрытий, установленными окнами и крышей из металлочерепицы.

Все материалы, включая окна, доставили из Вологды — аккуратно и вовремя. Опытная бригада Александра Дьякова собрала дом за 15 дней. Заказчик Сергей на протяжении стройки был на месте и участвовал в каждом этапе. По его просьбе в цоколе сделали сплошной настил для защиты от куниц и установили привезённую им металлическую дверь.

Строим дома по арктической ипотеке в любых регионах Севера.
Если вы планируете собственный дом — напишите нам, расскажем, как всё организовать надёжно.

Подробнее о проекте:
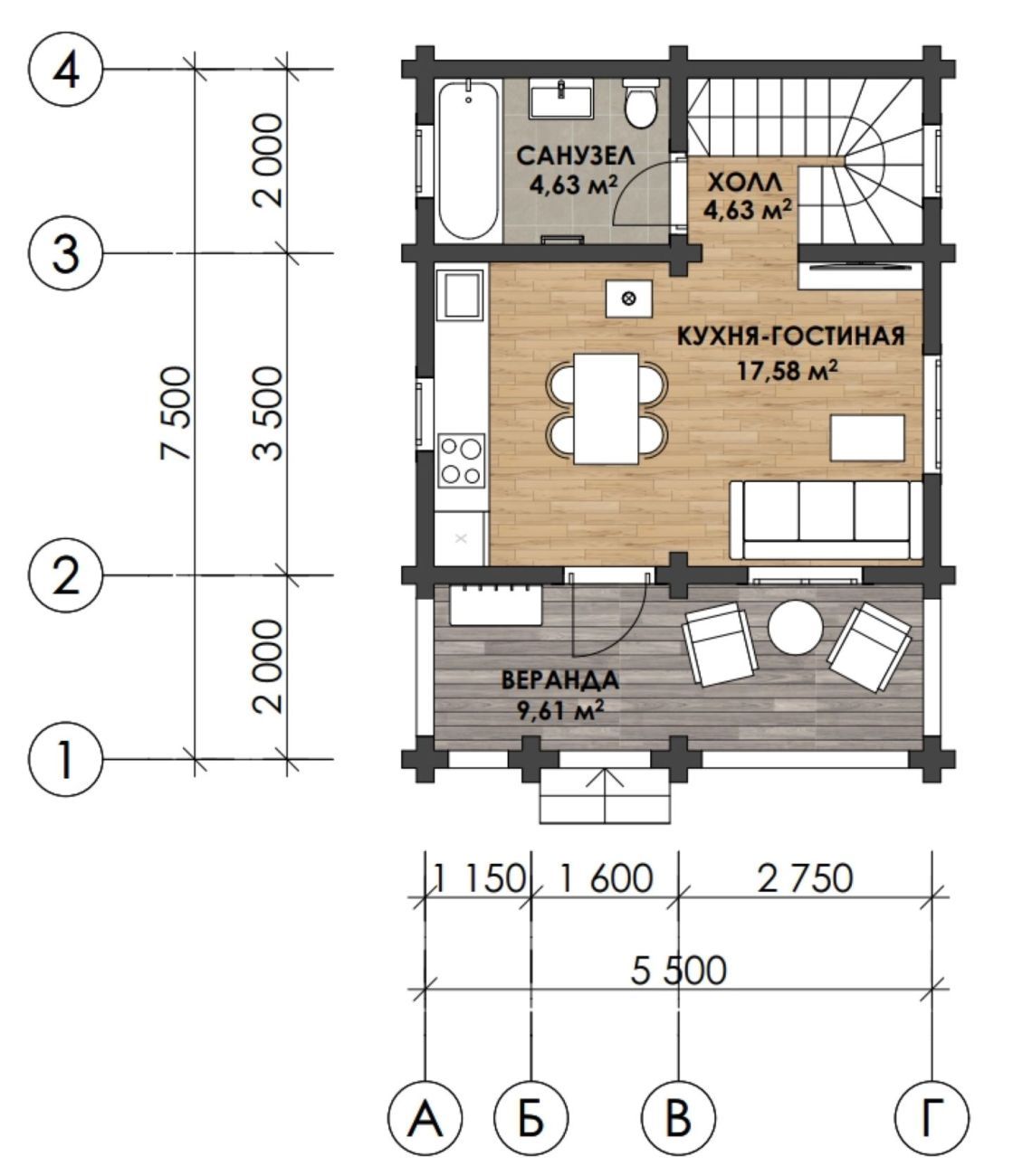
- Адрес строительства: Мурманская область, г. Мончегорск
- Дата установки: 25 октября 2025 года.
- Габариты: 7,5 х 5,5
- Площадь: 41,2 кв.м
- Стоимость дома в комплектации «теплый контур» как на фото (фундамент заказчик сделал сам - 3,9млн.руб.

Для консультации по вопросу строительства:
- Звоните/пишите в WhatsApp/ Telegram +7-921-125-82-40
- Звоните по бесплатному телефону 8-800-500-62-39