Top.Mail.Ru

Дом и баня на берегу Шексны в деревне Кабачино

27.04.2026

Этот проект — пример того, как участок напрямую влияет на архитектуру и решения по дому.

Объект расположен в деревне Кабачино, на возвышенности с панорамным видом на реку Шексна и монастырь на противоположном берегу. Участок удалённый и труднодоступный, но именно это создаёт ощущение уединения и полной перезагрузки от городской среды.

Для заказчика и его семьи здесь построили одноэтажный дом и баню. Локация выбрана не случайно: владелец — увлечённый рыбак. Участок даёт доступ сразу к нескольким направлениям — озеру Белое и Шекснинскому водохранилищу, а также позволяет рыбачить прямо с берега.

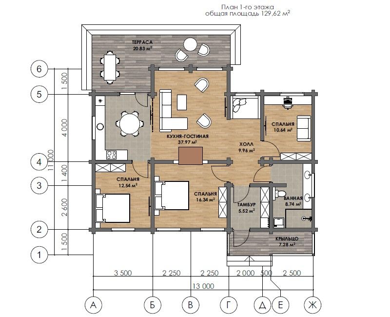
Дом выполнен из клееного бруса — стабильного и технологичного материала, который хорошо подходит для современных проектов с большими пролётами и остеклением. Архитектура дома ориентирована на раскрытие вида: предусмотрено большое остекление и открытая терраса.

За основу проекта взято решение, которое ранее уже реализовывалось нашей компанией, и было адаптировано под конкретный участок и задачи семьи.

Баня построена из профилированного бруса по проекту «Лесная», с доработками:
— увеличены габариты
— углублена терраса
— изменено расположение входа (перенесён на центральную часть)

Строительные работы начались в феврале. Для обеспечения логистики материалов было принято решение дождаться устойчивых морозов, чтобы организовать доставку по промёрзшей дороге.

Фундамент выполнен на железобетонных сваях. Сборка велась поэтапно: сначала дом, затем баня.

Несмотря на сложные погодные условия, включая сильный ветер, бригада выполнила весь объём работ за 2 месяца.

Дом сдан в комплектации «тёплый контур»:
— утепление пола и потолка 250 мм
— кровля из металлочерепицы
— установлены окна и входная дверь

Баня реализована в базовой комплектации — без утепления и установки окон, с возможностью дальнейшего дооснащения по желанию заказчика.

Этот проект наглядно показывает, как при правильной работе с участком и задачами клиента можно создать не просто дом, а комфортное пространство для жизни и отдыха.